Ellis & Co says ..
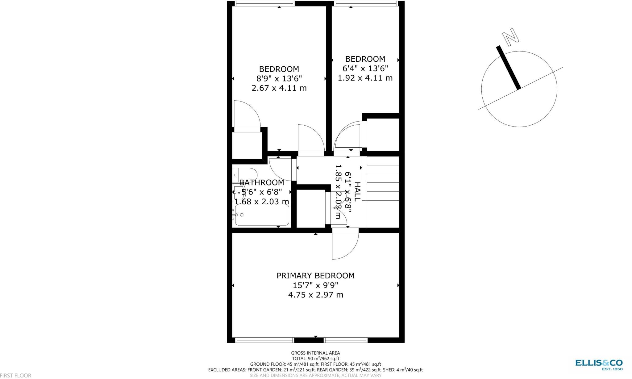
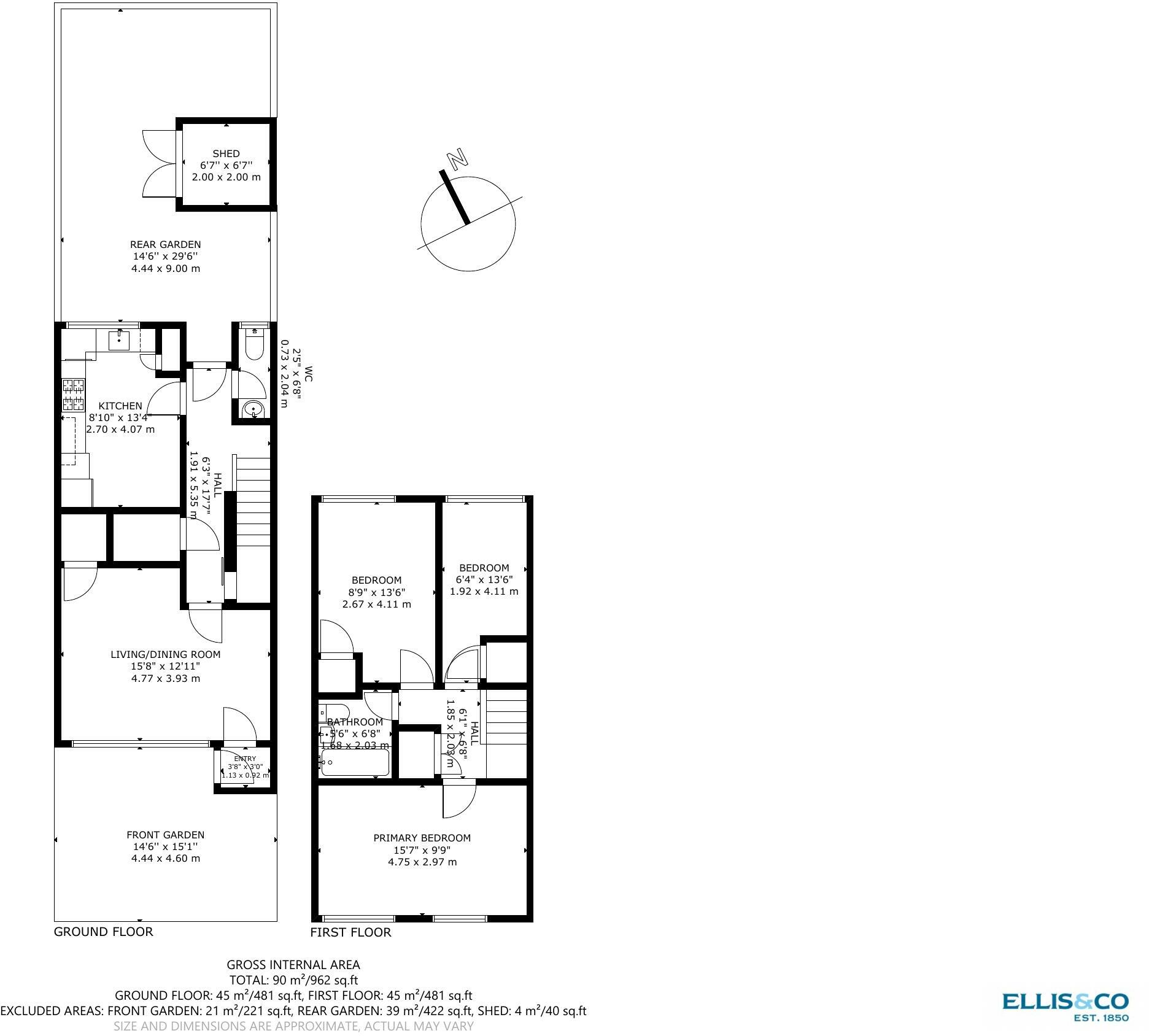
Ellis and co presents this end-of-terrace house which offers a perfect blend of contemporary living and period features. Boasting a generous 962 square feet of living space, this property comprises three bedrooms, a spacious reception room, and a family bathroom.
Property Oracle says ..
This three-bedroom, one-bathroom house located in Gervase Close, Wembley, HA9, is listed for £500,000. The property boasts approximately 968.75 square feet of living space. The provided images reveal a property that is in need of significant modernisation. The interior features outdated carpeting, wallpaper, and kitchen fixtures. The bathroom also appears dated. The exterior shows a small garden and appears to be in reasonable condition. The location in Wembley offers convenience with access to various amenities and schools, albeit the specific area’s desirability may be less than optimal parts of Wembley. While transportation links are reasonably close, the precise proximity is not detailed, making the assessment less accurate. The price seems ambitious given the required renovations. Buyers should factor in substantial refurbishment costs to make this property suitable for modern living. A thorough professional survey is highly recommended before purchase. Further details regarding the land size would provide a better understanding of the property’s total value. Overall, the property offers potential value for a buyer prepared to undertake a comprehensive renovation project. This will allow them to capitalise on the location, and improve the property to be sold at market price.
Therefore, we give this property 5 / 10. *Disclaimer: This is our option and does constitute a recommendation or financial advice. Do your own research. *
- Price
- 7
- Condition
- 4
- Location
- 6
- Land
- 5
- Bedrooms
- 3
- Bathrooms
- 1
- Sqft (est)
- 968.75
The heatmap indicates the level of crime in the area. The color of the heatmap indicates the crime severity and recency.
Metrics Year-on-Year
- Average area value
- 626,246.00 £Increased by 2.14 %
- Est sale value
- 585,125.00 £Increased by 5.78 %
- Average area rental value
- 2,336.00 £/moIncreased by 26.00 %
- Est letting value
- 1,937.50 £/moIncreased by 100.00 %
- Est rental Yield
- 4.48 %Increased by 23.42 %
- Crime Rate
- 12.00 %Unchanged by 0.00 %
Agent Activity
Ellis & Co created the listing.
Nearby Schools
| Name | Type | Ofsted | Distance |
|---|---|---|---|
| St Nicholas School | Other Independent School | 0.43 KM | |
| St Margaret Clitherow Rc Primary School | Academy Converter | 0.53 KM | |
| Chalkhill Primary School | Community School | Good | 0.70 KM |
| Willows Children'S Centre | Children's Centre | 0.70 KM | |
| Lycee International De Londres | Other Independent School | 1.04 KM |
Images
Nearby Streets
| Name | Average Price | Average Sqft | Distance |
|---|---|---|---|
| Ken Way | £ 365,000 | 0 | 0.00 KM |
| Daisy Close | £ 0 | 0 | 0.00 KM |
| Neasden Lane North | £ 0 | 0 | 0.00 KM |
| Chesham Street | £ 190,000 | 0 | 0.00 KM |
| Rawlings Crescent | £ 0 | 0 | 0.00 KM |
Nearby Transport
| Name | NLC | TLC | Distance |
|---|---|---|---|
| Stonebridge Park | 1454 | SBP | 2.54 KM |
| Wembley Stadium | 1509 | WCX | 2.55 KM |
| Harlesden | 1521 | HDN | 3.19 KM |
| Hendon | 1522 | HEN | 3.38 KM |
| Wembley Central | 1423 | WMB | 3.75 KM |
Nearby Listings
| Address | Price | Type | Score | Distance |
|---|---|---|---|---|
| Gervase Close, Wembley, HA9 | £ 500,000 | BUY | 5 / 10 | 0.00 KM |
| 64 Barnes Wallis Court, Barnhill Road, Wembley HA9 9DW | £ 180,000 | BUY | 5 / 10 | 0.07 KM |
| 51 Barnes Wallis Court, Barnhill Road, Wembley HA9 9DN | £ 190,000 | BUY | 5 / 10 | 0.07 KM |
| Gervase Close, Wembley, Middlesex HA9 | £ 450,000 | BUY | 5 / 10 | 0.08 KM |
| Wembley Park | £ 260,000 | BUY | 7 / 10 | 0.11 KM |
Nearby Properties
| Address | Price | Distance |
|---|---|---|
| 14 Gervase Close | £ 220,000 | 0.02 KM |
| 18 Gervase Close | £ 138,000 | 0.05 KM |
| 10 Gervase Close | £ 240,000 | 0.05 KM |
| 5 Poplar Grove | £ 184,000 | 0.14 KM |
| 18 Poplar Grove | £ 230,000 | 0.14 KM |