MA
Whittaker Drive, Horley, Surrey, RH6
By Mayhew Estates
£ 415,000
Reviews
3 out of 5 stars
Mayhew Estates says ..
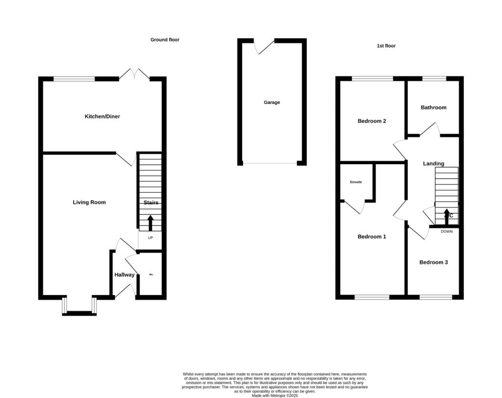
OFFERED TO THE MARKET ON A PRICE GUIDE OF £415,000 - £440,000. NO CHAIN! A well presented three bedroom terrace house situated on the popular 'Acres' development in Horley.
Property Oracle says ..
Therefore, we give this property 7 / 10. *Disclaimer: This is our option and does constitute a recommendation or financial advice. Do your own research. *
- Price
- 8
- Condition
- 8
- Location
- 7
- Land
- 6
- Bedrooms
- 3
- Bathrooms
- 2
- Sqft (est)
- 1,070.00
The heatmap indicates the level of crime in the area. The color of the heatmap indicates the crime severity and recency.
Metrics Year-on-Year
- Average area value
- 599,545.00 £Increased by 35.17 %
- Est sale value
- 538,210.00 £Increased by 19.76 %
- Average area rental value
- 1,964.00 £/moIncreased by 8.15 %
- Est letting value
- 1,070.00 £/moUnchanged by 0.00 %
- Est rental Yield
- 3.93 %Decreased by 19.96 %
- Crime Rate
- 11.00 %Unchanged by 0.00 %
from 443,539.00 £
from 449,400.00 £
from 1,816.00 £/mo
from 1,070.00 £/mo
from 4.91 %
from 11.00 %
Agent Activity
Mayhew Estates created the listing.
Nearby Schools
| Name | Type | Ofsted | Distance |
|---|---|---|---|
| Trinity Oaks Church Of England Primary School | Voluntary Aided School | Good | 0.46 KM |
| Langshott Primary School | Community School | Good | 1.18 KM |
| Oakwood School | Community School | Good | 1.30 KM |
| Yattendon School | Foundation School | Good | 1.97 KM |
| Horley Infant School | Community School | Good | 2.02 KM |
Images
Nearby Streets
| Name | Average Price | Average Sqft | Distance |
|---|---|---|---|
| Burgess Road | £ 0 | 0 | 0.00 KM |
| Honeysuckle Close | £ 0 | 0 | 0.00 KM |
| generic bridge | £ 0 | 0 | 0.00 KM |
| Maizecroft | £ 235,000 | 0 | 0.00 KM |
| Meadowside | £ 0 | 0 | 0.00 KM |
Nearby Transport
| Name | NLC | TLC | Distance |
|---|---|---|---|
| Horley | 5365 | HOR | 2.08 KM |
| Salfords (Surrey) | 5380 | SAF | 2.92 KM |
| Gatwick Airport | 5416 | GTW | 3.14 KM |
| Nutfield | 5476 | NUF | 5.35 KM |
| Earlswood (Surrey) | 5414 | ELD | 5.83 KM |
Nearby Listings
| Address | Price | Type | Score | Distance |
|---|---|---|---|---|
| Whittaker Drive, Horley, Surrey, RH6 | £ 785,000 | BUY | Unknown | 0.00 KM |
| Whittaker Drive, Horley, Surrey, RH6 | £ 415,000 | BUY | 7 / 10 | 0.00 KM |
| Whittaker Drive, Horley, Surrey, RH6 | £ 700,000 | BUY | 8 / 10 | 0.00 KM |
| Burgess Road, Horley, Surrey, RH6 | £ 500,000 | BUY | 7 / 10 | 0.03 KM |
| Burgess Road, Horley, Surrey | £ 314,000 | BUY | 8 / 10 | 0.07 KM |
Nearby Properties
| Address | Price | Distance |
|---|---|---|
| 4 Whittaker Drive | £ 275,000 | 0.00 KM |
| 88 Whittaker Drive | £ 715,000 | 0.00 KM |
| 42 Whittaker Drive | £ 385,000 | 0.00 KM |
| 82 Whittaker Drive | £ 649,950 | 0.00 KM |
| 26 Whittaker Drive | £ 635,000 | 0.00 KM |