Shortlands Green, Maidstone
By Honeydell Estate Agents Ltd
£ 200,000
Reviews
3 out of 5 stars
Honeydell Estate Agents Ltd says ..
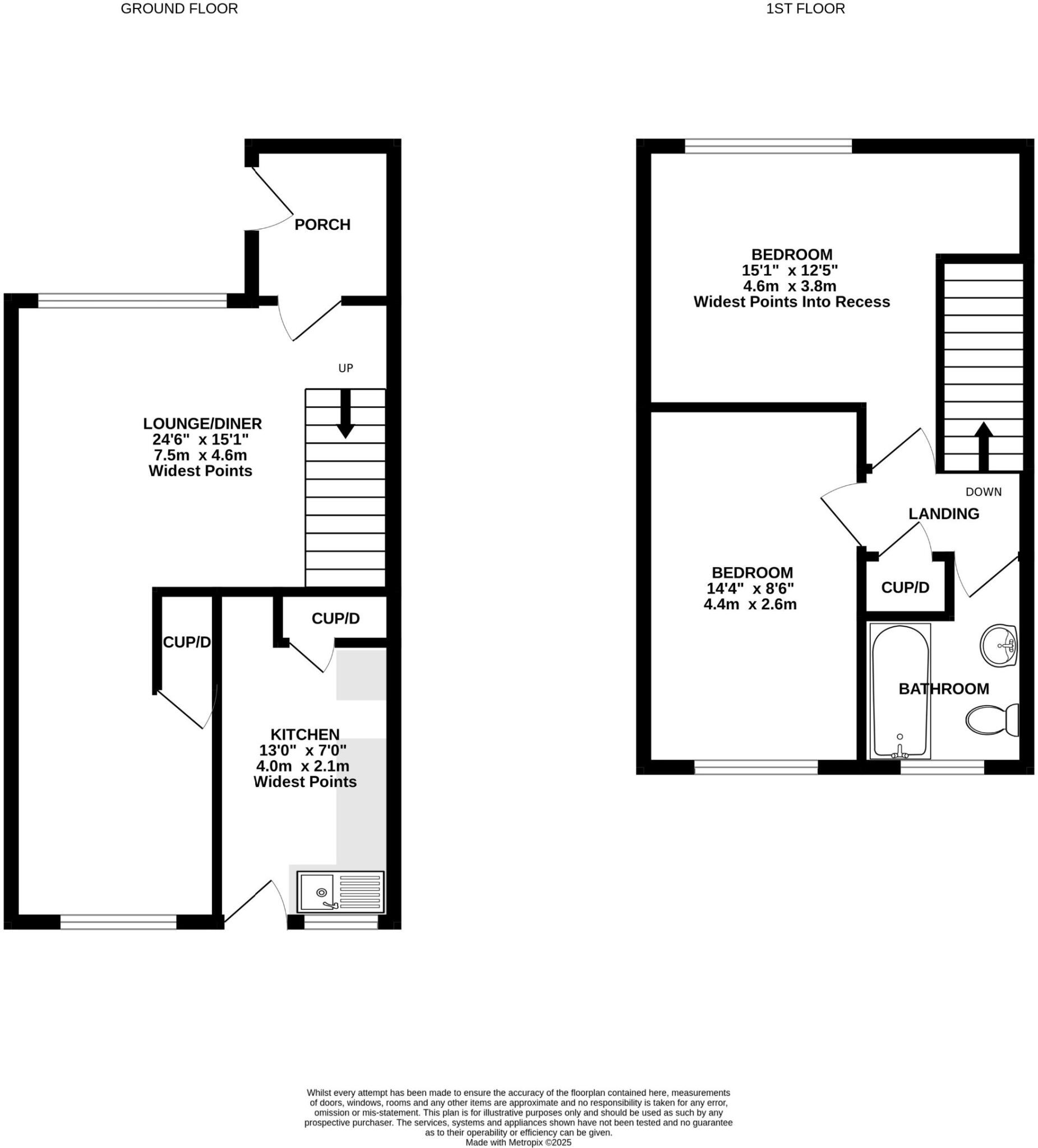
Guide Price £200,000 - £220,000 Offered to the market with no onward chain, this well-presented two-bedroom mid-terraced home is an ideal purchase for first-time buyers or those seeking a reliable investment opportunity.
Property Oracle says ..
This is a two-bedroom terraced property located in Park Wood, Maidstone. The property is in reasonable condition, but the kitchen and bathroom are dated and in need of renovation. The property has a garden and is located close to several schools. The list price of £200,000 seems reasonable given the location, condition, and size of the property. The property is located over 4km from the nearest train station. The property is marketed by Honeydell Estate Agents Ltd.
Therefore, we give this property 6 / 10. *Disclaimer: This is our option and does constitute a recommendation or financial advice. Do your own research. *
- Price
- 8
- Condition
- 5
- Location
- 6
- Land
- 7
- Bedrooms
- 2
- Bathrooms
- 1
- Sqft (est)
- 773.06
The heatmap indicates the level of crime in the area. The color of the heatmap indicates the crime severity and recency.
Metrics Year-on-Year
- Average area value
- 306,667.00 £Unchanged by 0.00 %
- Est sale value
- 441,417.26 £Increased by 30.66 %
- Average area rental value
- 1,900.00 £/moIncreased by 61.70 %
- Est letting value
- 2,319.18 £/moIncreased by 200.00 %
- Est rental Yield
- 7.43 %Increased by 61.52 %
- Crime Rate
- 18.00 %Unchanged by 0.00 %
Agent Activity
Honeydell Estate Agents Ltd created the listing.
Nearby Schools
| Name | Type | Ofsted | Distance |
|---|---|---|---|
| Tree Tops Primary Academy | Academy Sponsor Led | Good | 0.33 KM |
| The Holy Family Catholic Primary School | Academy Sponsor Led | Requires improvement | 0.55 KM |
| The Meadow Children'S Centre | Children's Centre | 0.72 KM | |
| Senacre Wood Primary School | Community School | Good | 0.72 KM |
| Langley Park Primary Academy | Academy Sponsor Led | Good | 0.96 KM |
Images
Nearby Streets
| Name | Average Price | Average Sqft | Distance |
|---|---|---|---|
| Bell Road | £ 0 | 0 | 0.00 KM |
| Paygate | £ 375,000 | 0 | 0.00 KM |
| Dudley Close | £ 0 | 0 | 0.00 KM |
| A274 | £ 550,000 | 0 | 0.00 KM |
| Sycamore Road | £ 250,000 | 0 | 0.00 KM |
Nearby Transport
| Name | NLC | TLC | Distance |
|---|---|---|---|
| Bearsted | 5091 | BSD | 4.28 KM |
| Maidstone West | 5222 | MDW | 5.66 KM |
| Maidstone East | 5115 | MDE | 5.70 KM |
| Maidstone Barracks | 5237 | MDB | 6.26 KM |
| Staplehurst | 5228 | SPU | 7.95 KM |
Nearby Listings
| Address | Price | Type | Score | Distance |
|---|---|---|---|---|
| Shortlands Green, Maidstone | £ 200,000 | BUY | 6 / 10 | 0.00 KM |
| Francis Lane, Maidstone | £ 230,000 | BUY | Unknown | 0.08 KM |
| Sutton Road, Maidstone, Kent | £ 350,000 | BUY | 7 / 10 | 0.10 KM |
| Sutton Road, Maidstone, Kent | £ 350,000 | BUY | 8 / 10 | 0.10 KM |
| Sutton Road, Maidstone, ME15 | £ 350,000 | BUY | 7 / 10 | 0.11 KM |
Nearby Properties
| Address | Price | Distance |
|---|---|---|
| 81 Bell Road | £ 115,000 | 0.08 KM |
| 77 Bell Road | £ 118,250 | 0.08 KM |
| 71 Wallis Avenue | £ 170,000 | 0.15 KM |
| 69 Wallis Avenue | £ 213,500 | 0.15 KM |
| 73 Wallis Avenue | £ 343,000 | 0.15 KM |