Anning Crescent, Alphington, EX2
By Fraser & Wheeler
£ 387,500
Reviews
3 out of 5 stars
Fraser & Wheeler says ..
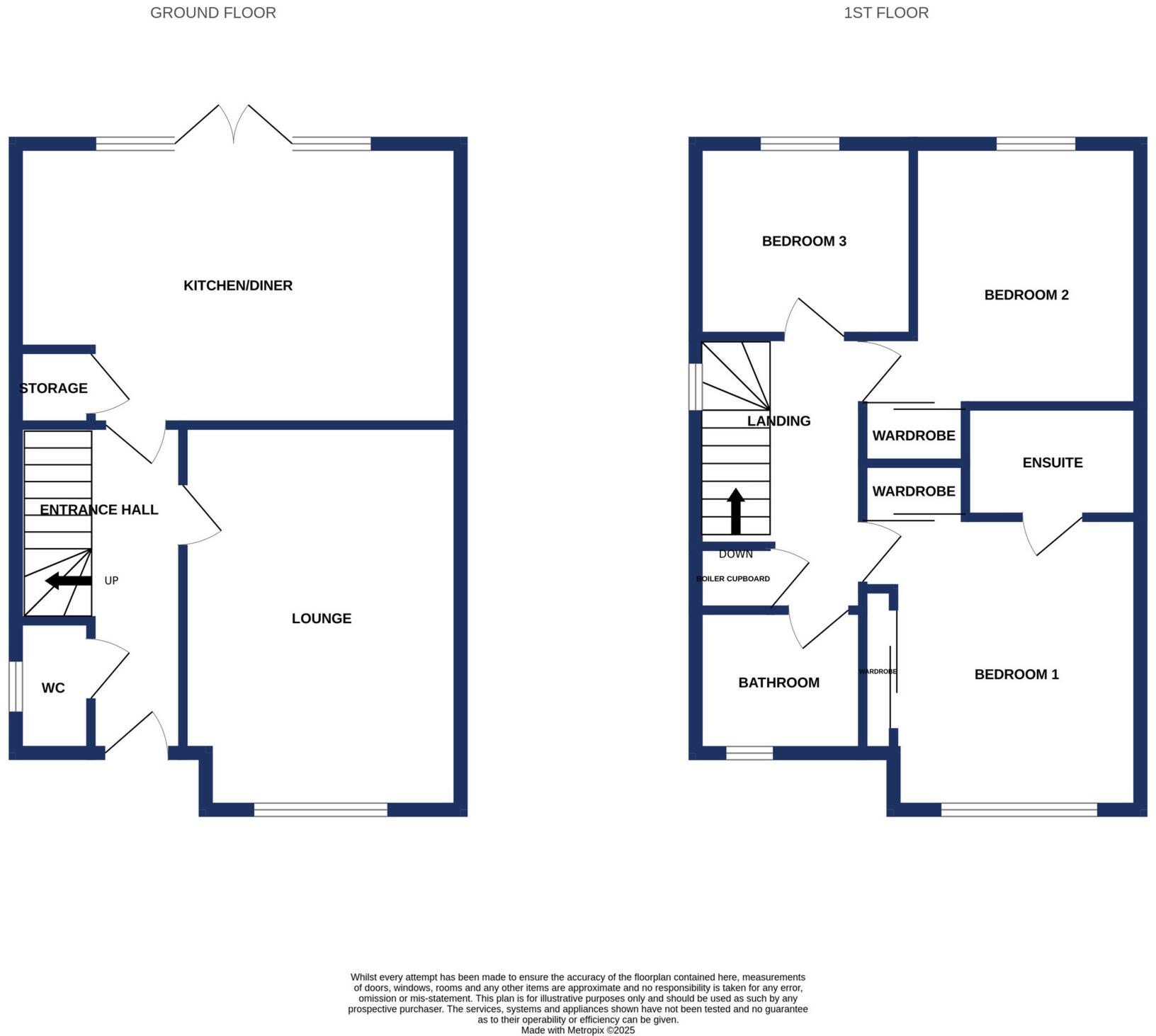
A fantastic opportunity to acquire this three bedroom semi detached property situated on the popular and sought-after development of St Michaels Meadow in Alphington. This lovely LETCHWORTH style property has good size living accommodation, modern fitted kitchen and bathroom, master en-suite with...
Property Oracle says ..
This is a well-presented semi-detached property in the popular Alphington area of Exeter. The house benefits from a modern kitchen and bathrooms, a good-sized garden, and off-street parking. The property is conveniently located for local schools and amenities, and is within easy reach of Exeter city centre. The property is in good condition and would make an ideal family home.
Therefore, we give this property 7 / 10. *Disclaimer: This is our option and does constitute a recommendation or financial advice. Do your own research. *
- Price
- 7
- Condition
- 9
- Location
- 7
- Land
- 7
- Bedrooms
- 3
- Bathrooms
- 2
- Sqft (est)
- 1,105.00
The heatmap indicates the level of crime in the area. The color of the heatmap indicates the crime severity and recency.
Metrics Year-on-Year
- Average area value
- 298,045.00 £Decreased by 18.28 %
- Est sale value
- 365,755.00 £Decreased by 4.61 %
- Average area rental value
- 1,425.00 £/moIncreased by 1.79 %
- Est letting value
- 1,105.00 £/moUnchanged by 0.00 %
- Est rental Yield
- 5.74 %Increased by 24.51 %
- Crime Rate
- 10.00 %Unchanged by 0.00 %
Agent Activity
Fraser & Wheeler created the listing.
Nearby Schools
| Name | Type | Ofsted | Distance |
|---|---|---|---|
| Alphington Primary School | Academy Converter | Good | 0.99 KM |
| West Exe School | Academy Sponsor Led | 1.71 KM | |
| The Outdoors School | Other Independent Special School | Requires improvement | 1.76 KM |
| St Thomas Primary School | Academy Converter | Good | 2.46 KM |
| Exeter Royal Academy For Deaf Education | Special Post 16 Institution | Requires improvement | 2.57 KM |
Images
Nearby Streets
| Name | Average Price | Average Sqft | Distance |
|---|---|---|---|
| Chudleigh Road | £ 358,328 | 0 | 0.00 KM |
| Crago Close | £ 0 | 0 | 0.00 KM |
| Rowland Way | £ 0 | 0 | 0.00 KM |
| Admiral Vernon Close | £ 0 | 0 | 0.00 KM |
| Fairfield Road | £ 286,488 | 0 | 0.00 KM |
Nearby Transport
| Name | NLC | TLC | Distance |
|---|---|---|---|
| Exeter St Thomas | 3414 | EXT | 2.67 KM |
| Exeter Central | 5755 | EXC | 3.58 KM |
| Exeter St David'S | 3410 | EXD | 4.10 KM |
| St James Park (Exeter) | 5751 | SJP | 4.22 KM |
| Polsloe Bridge | 3422 | POL | 5.23 KM |
Nearby Listings
| Address | Price | Type | Score | Distance |
|---|---|---|---|---|
| Anning Crescent, Alphington, EX2 | £ 387,500 | BUY | 7 / 10 | 0.00 KM |
| Steeple Drive, Alphington, Exeter, EX2 | £ 325,000 | BUY | 7 / 10 | 0.12 KM |
| Steeple Drive, Exeter EX2 8FL | £ 450,000 | BUY | 6 / 10 | 0.18 KM |
| Wesley Way, Exeter, Devon, EX2 | £ 268,000 | BUY | 7 / 10 | 0.19 KM |
| Chantry Meadow, Alphington, Exeter, EX2 | £ 170,000 | BUY | 7 / 10 | 0.23 KM |
Nearby Properties
| Address | Price | Distance |
|---|---|---|
| 3 Pulpit Walk | £ 185,000 | 0.10 KM |
| 2 Pulpit Walk | £ 320,000 | 0.10 KM |
| 9 Pulpit Walk | £ 375,000 | 0.10 KM |
| 17 Pulpit Walk | £ 460,000 | 0.10 KM |
| 5 Pulpit Walk | £ 485,000 | 0.10 KM |