Berkeley Avenue, Reading, Berkshire, RG1
By Prospect Estate Agency
£ 400,000
Reviews
3 out of 5 stars
Prospect Estate Agency says ..
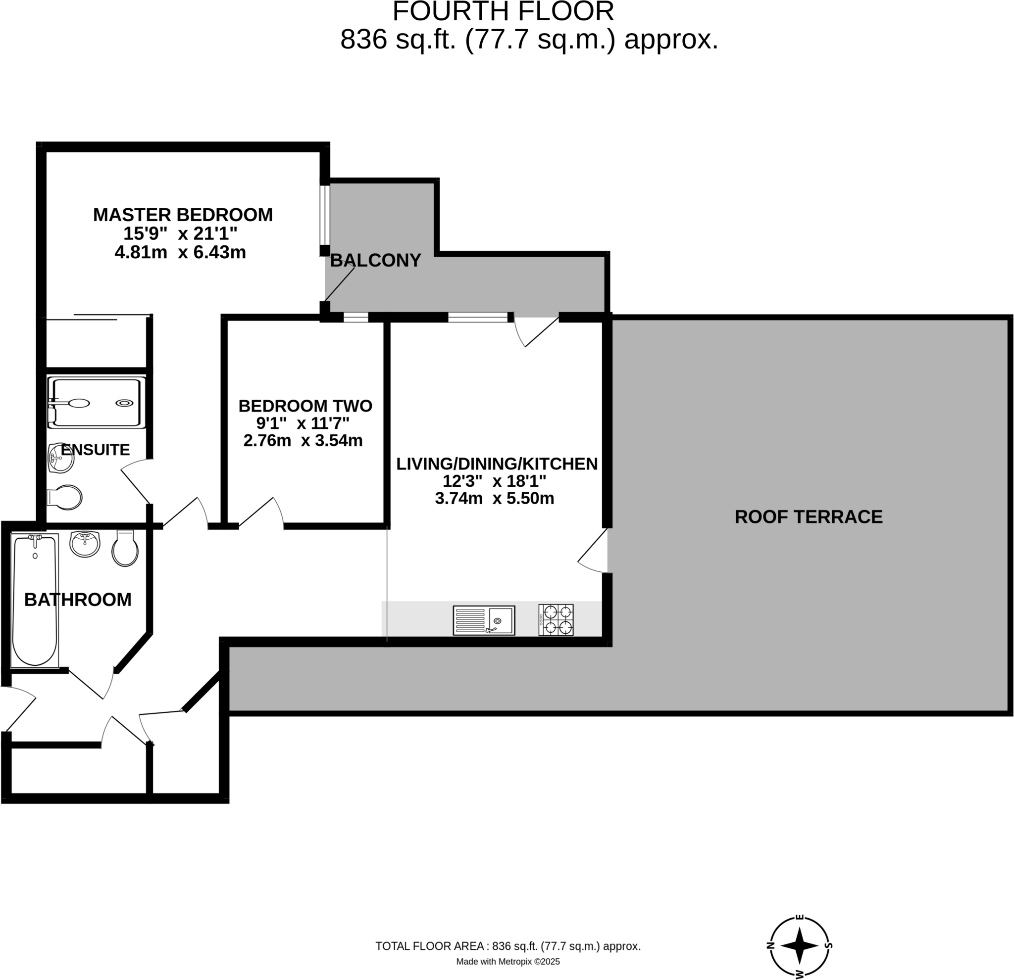
Set in the highly sought after Riverside View development, this rarely available apartment was built by Weston Homes and has been finished to an impeccable standard throughout. Ideal for a first time buyer, the accommodation briefly comprises: entrance hall with storage, a modern three...
Property Oracle says ..
This property is a modern, well-presented 2-bedroom, 2-bathroom apartment in Reading, Berkshire. It benefits from a large private balcony or terrace and is conveniently located near schools and Reading train station. The list price is slightly higher than the average for the area, but this may be justified by its modern condition and the private outdoor space. More information on comparable property sizes would allow for a more precise price comparison.
Therefore, we give this property 7 / 10. *Disclaimer: This is our option and does constitute a recommendation or financial advice. Do your own research. *
- Price
- 7
- Condition
- 9
- Location
- 8
- Land
- 6
- Bedrooms
- 2
- Bathrooms
- 2
- Sqft (est)
- 836.36
The heatmap indicates the level of crime in the area. The color of the heatmap indicates the crime severity and recency.
Metrics Year-on-Year
- Average area value
- 382,304.00 £Increased by 10.41 %
- Est sale value
- 355,453.00 £Increased by 23.91 %
- Average area rental value
- 1,370.00 £/moIncreased by 3.55 %
- Est letting value
- 836.36 £/moUnchanged by 0.00 %
- Est rental Yield
- 4.30 %Decreased by 6.32 %
- Crime Rate
- 3.00 %Unchanged by 0.00 %
Agent Activity
Prospect Estate Agency created the listing.
Nearby Schools
| Name | Type | Ofsted | Distance |
|---|---|---|---|
| Katesgrove Primary School | Community School | Good | 0.31 KM |
| Coley Primary School | Community School | Good | 0.49 KM |
| New Christ Church Church Of England Primary School | Academy Converter | 0.72 KM | |
| Kendrick School | Academy Converter | 1.17 KM | |
| The Palmer Primary Academy | Academy Sponsor Led | Good | 1.19 KM |
Images
Nearby Streets
| Name | Average Price | Average Sqft | Distance |
|---|---|---|---|
| Elgar Road | £ 0 | 0 | 0.00 KM |
| Lynden Mews | £ 165,000 | 0 | 0.00 KM |
| Centurion Close | £ 287,500 | 0 | 0.00 KM |
| Cheriton Court | £ 215,000 | 0 | 0.00 KM |
| Mount Street | £ 0 | 0 | 0.00 KM |
Nearby Transport
| Name | NLC | TLC | Distance |
|---|---|---|---|
| Reading | 3149 | RDG | 1.30 KM |
| Reading West | 3160 | RDW | 1.99 KM |
| Earley | 5694 | EAR | 6.25 KM |
| Tilehurst | 3154 | TLH | 6.72 KM |
| Winnersh Triangle | 5698 | WTI | 9.24 KM |
Nearby Listings
| Address | Price | Type | Score | Distance |
|---|---|---|---|---|
| Berkeley Avenue, Reading, Berkshire, RG1 | £ 400,000 | BUY | 7 / 10 | 0.00 KM |
| Berkeley Avenue, Reading, Berkshire, RG1 | £ 375,000 | BUY | 8 / 10 | 0.01 KM |
| Berkeley Avenue, Reading, RG1 | £ 325,000 | BUY | Unknown | 0.01 KM |
| Berkeley Avenue, Reading | £ 375,000 | BUY | 7 / 10 | 0.01 KM |
| Berkeley Avenue, Reading, Berkshire, RG1 | £ 375,000 | BUY | Unknown | 0.06 KM |
Nearby Properties
| Address | Price | Distance |
|---|---|---|
| 22 Elgar Road | £ 227,500 | 0.13 KM |
| 30 Elgar Road | £ 452,000 | 0.13 KM |
| 38 Elgar Road | £ 452,800 | 0.13 KM |
| 18 Elgar Road | £ 200,000 | 0.13 KM |
| 28 Elgar Road | £ 205,000 | 0.13 KM |