Withycombe Park Drive, Exmouth, EX8 4EJ
By Pennys
£ 575,000
Reviews
3 out of 5 stars
Pennys says ..
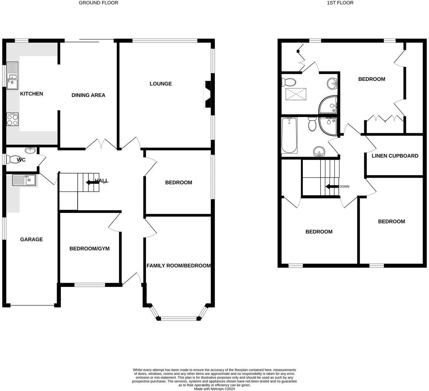
A High Quality and Beautifully Presented Detached House Offering Adaptable Accommodation Enjoying A Desirable Location With Colourful Gardens, Parking And Garage/Utility
Property Oracle says ..
This property is a 4 bedroom, 2 bathroom detached house located in Withycombe Park Drive, Exmouth. The location is desirable, being within proximity to local schools and transportation links. The property itself appears to be in excellent condition, having undergone recent modernisation. It benefits from a good-sized garden and offers ample space both internally and externally. The list price is slightly above the average price per square foot for the area, however, considering the condition, location, and additional features such as the garage and home gym, it represents reasonable value.
Therefore, we give this property 7 / 10. *Disclaimer: This is our option and does constitute a recommendation or financial advice. Do your own research. *
- Price
- 7
- Condition
- 9
- Location
- 8
- Land
- 7
- Bedrooms
- 4
- Bathrooms
- 2
- Sqft (est)
- 1,420.00
The heatmap indicates the level of crime in the area. The color of the heatmap indicates the crime severity and recency.
Metrics Year-on-Year
- Average area value
- 412,759.00 £Increased by 3.22 %
- Est sale value
- 566,580.00 £Increased by 2.31 %
- Average area rental value
- 1,432.00 £/moDecreased by 13.89 %
- Est letting value
- 1,420.00 £/moUnchanged by 0.00 %
- Est rental Yield
- 4.16 %Decreased by 16.63 %
- Crime Rate
- 7.00 %Unchanged by 0.00 %
Agent Activity
Pennys marked this listing as sold.
Pennys created the listing.
Nearby Schools
| Name | Type | Ofsted | Distance |
|---|---|---|---|
| Bassetts Farm Primary School | Foundation School | Good | 0.30 KM |
| Brixington Primary Academy | Academy Sponsor Led | Requires improvement | 1.21 KM |
| Marpool Primary School | Foundation School | Good | 1.44 KM |
| Littleham Church Of England Primary School | Voluntary Controlled School | Requires improvement | 1.57 KM |
| Exmouth & District Children'S Centre | Children's Centre | 1.64 KM |
Images
Nearby Streets
| Name | Average Price | Average Sqft | Distance |
|---|---|---|---|
| Copse | £ 0 | 0 | 0.00 KM |
| Martins Road | £ 220,000 | 0 | 0.00 KM |
| Spencer Close | £ 485,000 | 0 | 0.00 KM |
| Copperfield Close | £ 385,000 | 0 | 0.00 KM |
| Somerville Close | £ 0 | 0 | 0.00 KM |
Nearby Transport
| Name | NLC | TLC | Distance |
|---|---|---|---|
| Exmouth | 5756 | EXM | 3.82 KM |
| Lympstone Village | 5761 | LYM | 5.43 KM |
| Lympstone Commando | 5762 | LYC | 6.99 KM |
| Starcross | 3413 | SCS | 7.16 KM |
| Exton | 5760 | EXN | 7.61 KM |
Nearby Listings
| Address | Price | Type | Score | Distance |
|---|---|---|---|---|
| Withycombe Park Drive, Exmouth, EX8 4EJ | £ 575,000 | BUY | 7 / 10 | 0.00 KM |
| Withycombe Park Drive, Exmouth | £ 389,950 | BUY | 6 / 10 | 0.00 KM |
| St. Johns Road, Exmouth, EX8 4EA | £ 329,950 | BUY | 6 / 10 | 0.09 KM |
| St Johns Road, Exmouth | £ 475,000 | BUY | 6 / 10 | 0.14 KM |
| Meadow View Road, Exmouth | £ 184,950 | BUY | 6 / 10 | 0.17 KM |
Nearby Properties
| Address | Price | Distance |
|---|---|---|
| 4 Withycombe Park Drive | £ 190,250 | 0.01 KM |
| 8 Withycombe Park Drive | £ 259,000 | 0.01 KM |
| 2 Withycombe Park Drive | £ 303,000 | 0.01 KM |
| 7 Withycombe Park Drive | £ 246,000 | 0.01 KM |
| 11 Withycombe Park Drive | £ 220,000 | 0.01 KM |