Development Opportunity- Hockley, Birmingham
By Allen Heritage
£ 730,000
Reviews
2 out of 5 stars
Allen Heritage says ..
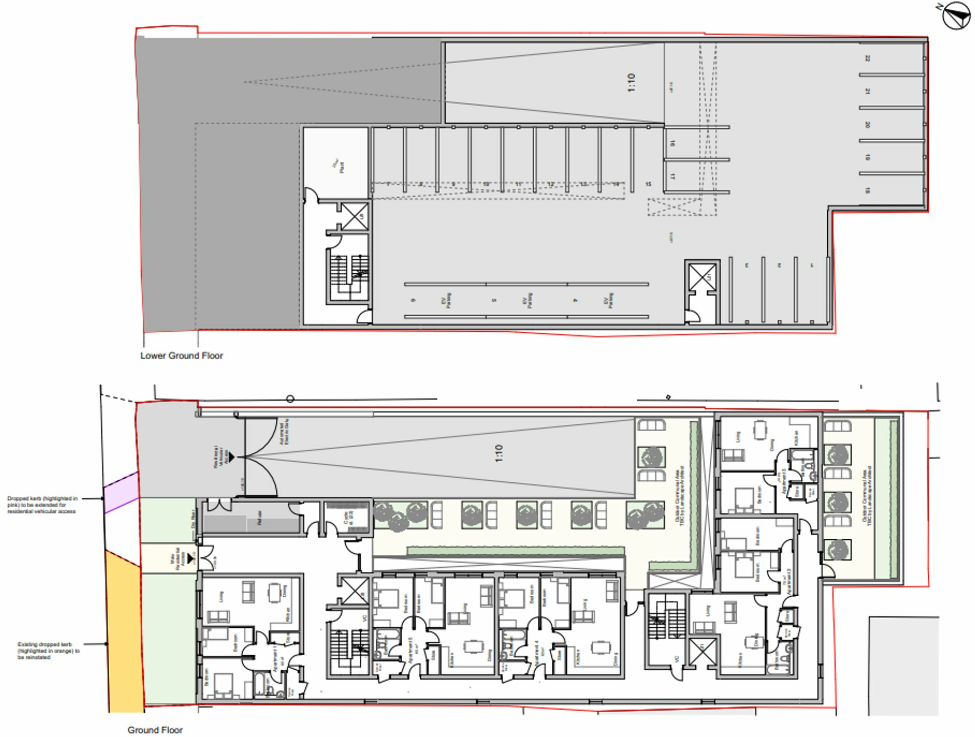
Planning permission approved for the demolition of the existing building to create twenty-two apartments.
Property Oracle says ..
This property in Lozells, Birmingham, is presented as a development opportunity. The existing building is dilapidated and requires demolition, as evidenced by the provided photographs. Planning permission has already been obtained for a 22-apartment complex. The location is relatively convenient, with several well-regarded schools nearby and good public transport links to Birmingham city centre. However, the area does have some drawbacks, including higher-than-average crime rates. The list price of £730,000 is substantial, and while potentially profitable upon completion of the development, it is difficult to assess the true value without further comparable data on land sales in the same area. The lack of detailed plot size information and absence of bathroom and bedroom details for the existing structure hinder a more precise analysis. Buyers should conduct thorough due diligence, including a detailed cost-benefit analysis, before proceeding with the purchase.
Therefore, we give this property 5 / 10. *Disclaimer: This is our option and does constitute a recommendation or financial advice. Do your own research. *
- Price
- 6
- Condition
- 4
- Location
- 7
- Land
- 5
- Bedrooms
- 0
- Bathrooms
- 0
- Sqft (est)
- 1,700.00
The heatmap indicates the level of crime in the area. The color of the heatmap indicates the crime severity and recency.
Metrics Year-on-Year
- Average area value
- 210,398.00 £Decreased by 9.64 %
- Est sale value
- 426,700.00 £Increased by 22.44 %
- Average area rental value
- 1,204.00 £/moIncreased by 43.33 %
- Est letting value
- 1,700.00 £/mo
- Est rental Yield
- 6.87 %Increased by 58.66 %
- Crime Rate
- 3.00 %Unchanged by 0.00 %
Agent Activity
Allen Heritage marked this listing as sold.
Allen Heritage created the listing.
Nearby Schools
| Name | Type | Ofsted | Distance |
|---|---|---|---|
| St Francis Catholic Primary School | Voluntary Aided School | Good | 0.14 KM |
| Anglesey Primary School | Community School | Good | 0.39 KM |
| Values Academy | Other Independent Special School | Good | 0.55 KM |
| Nishkam High School | Free Schools | Outstanding | 0.65 KM |
| The Lambs Christian School | Other Independent School | Outstanding | 0.87 KM |
Images
Nearby Streets
| Name | Average Price | Average Sqft | Distance |
|---|---|---|---|
| Nursery Road | £ 0 | 0 | 0.00 KM |
| Brougham Street | £ 0 | 0 | 0.00 KM |
| Farm Street | £ 220,000 | 0 | 0.00 KM |
| Villa Street | £ 0 | 0 | 0.00 KM |
| Newtown Drive | £ 0 | 0 | 0.00 KM |
Nearby Transport
| Name | NLC | TLC | Distance |
|---|---|---|---|
| Jewellery Quarter | 1097 | JEQ | 0.87 KM |
| Birmingham Snow Hill | 1006 | BSW | 2.19 KM |
| Perry Barr | 1128 | PRY | 2.47 KM |
| Birmingham New Street | 1127 | BHM | 2.59 KM |
| Five Ways | 4503 | FWY | 2.91 KM |
Nearby Listings
| Address | Price | Type | Score | Distance |
|---|---|---|---|---|
| Development Opportunity- Hockley, Birmingham | £ 730,000 | BUY | 5 / 10 | 0.00 KM |
| Church Street, Birmingham, B19 | £ 190,000 | BUY | Unknown | 0.27 KM |
| James House, Newtown Drive, Birmingham, West Midlands, B19 | £ 75,000 | BUY | 5 / 10 | 0.30 KM |
| Farm Croft, Birmingham | £ 135,000 | BUY | Unknown | 0.32 KM |
| George Street, Lozells, Birmingham | £ 180,000 | BUY | 6 / 10 | 0.49 KM |
Nearby Properties
| Address | Price | Distance |
|---|---|---|
| 80 Brougham Street | £ 144,000 | 0.12 KM |
| 107 Villa Street | £ 63,000 | 0.13 KM |
| 84 Villa Street | £ 115,000 | 0.19 KM |
| 76 Villa Street | £ 160,000 | 0.19 KM |
| 78 Villa Street | £ 190,000 | 0.20 KM |