Willowmead Drive, Prestbury, Macclesfield
By Gascoigne Halman
£ 995,000
Reviews
3 out of 5 stars
Gascoigne Halman says ..
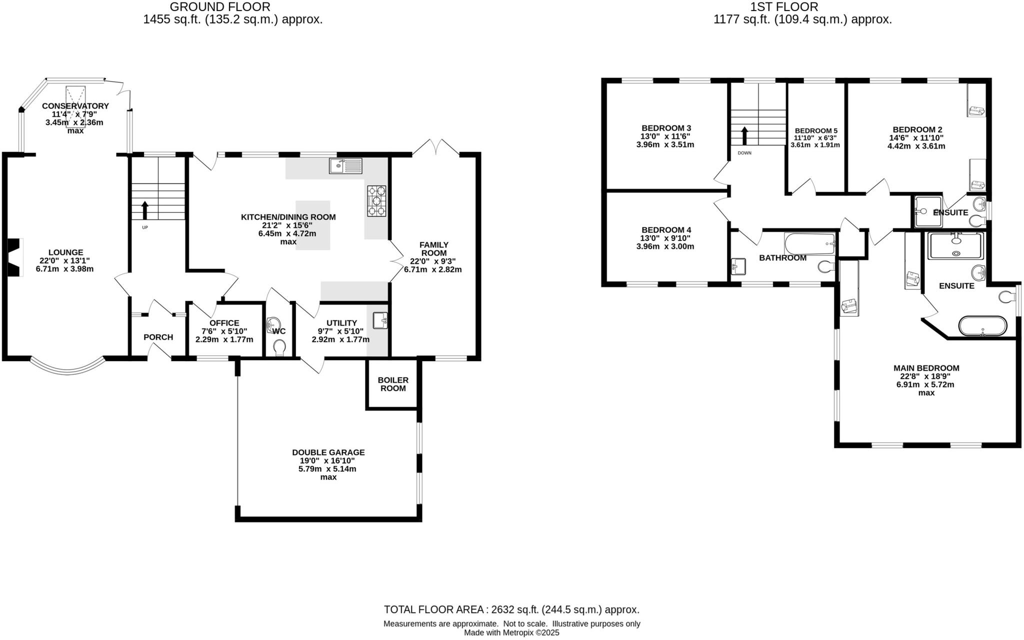
An immaculately extended and beautifully presented detached family home, offering approximately 2,632 sq ft of well-balanced living space with far-reaching views over the Bollin Valley, just a short stroll from Prestbury Village
Property Oracle says ..
This is a detached property located on Willowmead Drive in Prestbury, Cheshire. It features five bedrooms and three bathrooms, making it suitable for a family. The property appears to be well-maintained, with a modern kitchen and a good-sized garden. The location is desirable, with good access to local amenities, schools, and transportation. While the property is in generally good condition, some areas could benefit from modernisation. The price is in line with the average for the area, making it a reasonable investment.
Therefore, we give this property 7 / 10. *Disclaimer: This is our option and does constitute a recommendation or financial advice. Do your own research. *
- Price
- 7
- Condition
- 7
- Location
- 8
- Land
- 8
- Bedrooms
- 5
- Bathrooms
- 3
The heatmap indicates the level of crime in the area. The color of the heatmap indicates the crime severity and recency.
Metrics Year-on-Year
- Average area value
- 1,007,500.00 £Decreased by 19.91 %
- Average area rental value
- 2,733.00 £/moDecreased by 61.29 %
- Est rental Yield
- 3.26 %Decreased by 51.63 %
- Crime Rate
- 3.00 %Unchanged by 0.00 %
Agent Activity
Gascoigne Halman created the listing.
Nearby Schools
| Name | Type | Ofsted | Distance |
|---|---|---|---|
| Upton Priory School | Academy Converter | Good | 1.35 KM |
| Prestbury Cofe Primary School | Voluntary Aided School | Good | 1.38 KM |
| Bollinbrook Cofe (A) Primary School | Voluntary Aided School | Requires improvement | 1.69 KM |
| The Fallibroome Academy | Academy Converter | Outstanding | 1.99 KM |
| St Alban'S Catholic Primary School, A Voluntary Academy | Academy Converter | 2.03 KM |
Images
Nearby Streets
| Name | Average Price | Average Sqft | Distance |
|---|---|---|---|
| Willow Way | £ 695,000 | 0 | 0.00 KM |
| Prestbury Golf Club | £ 1,795,000 | 0 | 0.00 KM |
| Pearl Street | £ 525,000 | 0 | 0.00 KM |
| Springfields | £ 1,274,975 | 0 | 0.00 KM |
| Bramble Close | £ 0 | 0 | 0.00 KM |
Nearby Transport
| Name | NLC | TLC | Distance |
|---|---|---|---|
| Prestbury | 2875 | PRB | 1.42 KM |
| Macclesfield | 2871 | MAC | 3.68 KM |
| Adlington (Cheshire) | 2939 | ADC | 4.57 KM |
| Poynton | 2874 | PYT | 7.87 KM |
| Bramhall | 2944 | BML | 9.06 KM |
Nearby Listings
| Address | Price | Type | Score | Distance |
|---|---|---|---|---|
| Willowmead Drive, Prestbury, Macclesfield | £ 995,000 | BUY | 7 / 10 | 0.00 KM |
| Willowmead Drive, Prestbury | £ 995,000 | BUY | Unknown | 0.03 KM |
| Willowmead Drive, Prestbury, Macclesfield, Cheshire, SK10 | £ 779,950 | BUY | 8 / 10 | 0.08 KM |
| Willowmead Drive, Prestbury, Macclesfield | £ 779,950 | BUY | 7 / 10 | 0.08 KM |
| Southfield, Prestbury, Macclesfield, Cheshire, SK10 | £ 775,000 | BUY | 8 / 10 | 0.10 KM |
Nearby Properties
| Address | Price | Distance |
|---|---|---|
| 44 Willowmead Drive | £ 380,000 | 0.05 KM |
| 37a Willowmead Drive | £ 479,000 | 0.05 KM |
| 56 Willowmead Drive | £ 535,000 | 0.05 KM |
| 50 Willowmead Drive | £ 500,000 | 0.05 KM |
| 52 Willowmead Drive | £ 537,000 | 0.05 KM |