Bradleys says ..
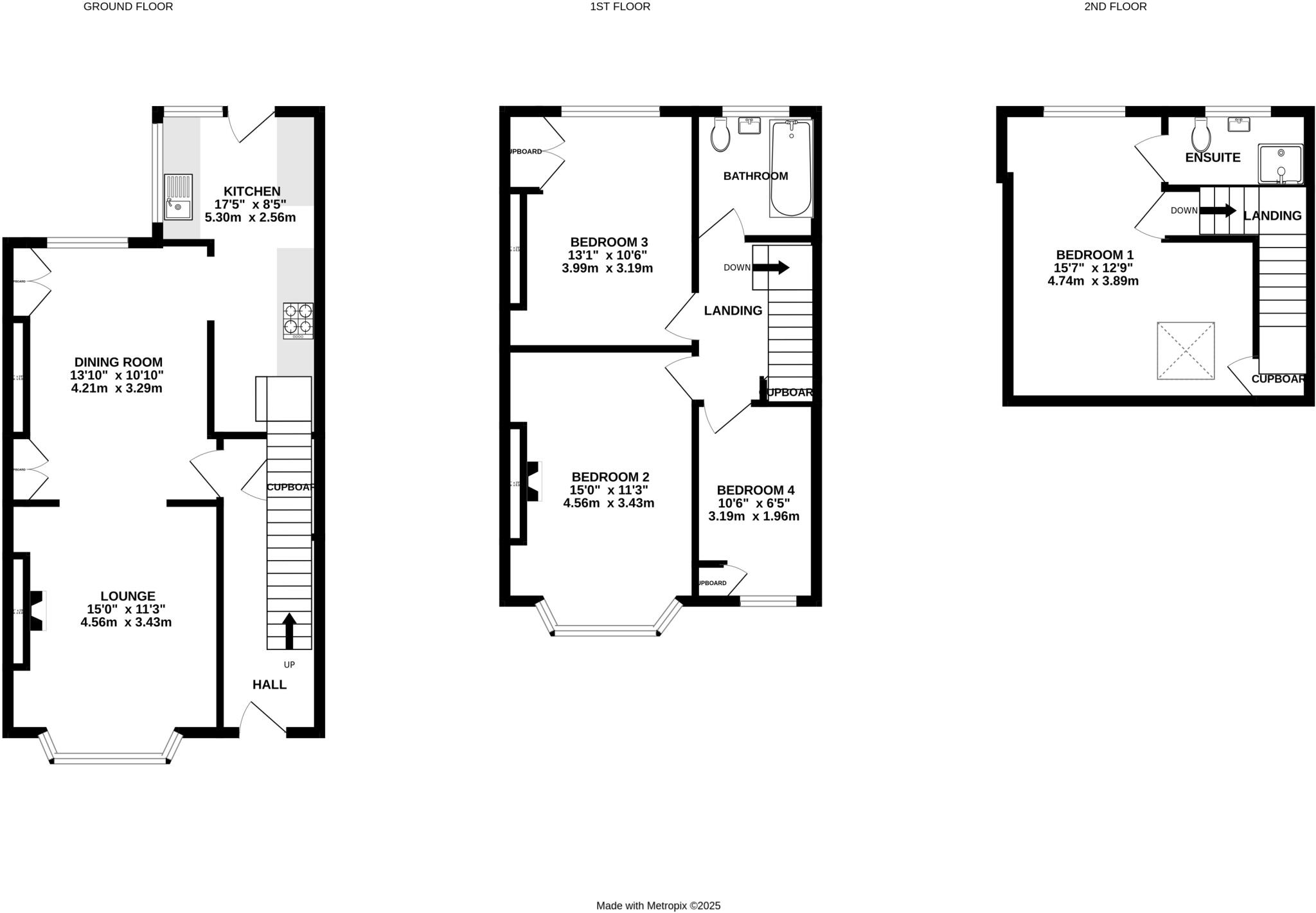
A FOUR BEDROOM MID TERRACE FAMILY RESIDENCE Located on the outskirts St. Marychurch and within close proximity to local shops, schools and transport links is the spacious four bedroom mid terrace house. This property sits back from the road beyond a walled and fenced private fore garden...
Property Oracle says ..
This property is a four-bedroom, two-bathroom terraced house located in St Marychurch, Torquay. The location benefits from being close to several schools, including St Cuthbert Mayne School (Good Ofsted rating) and Homelands Primary School (Good Ofsted rating), both within a short distance. The proximity to train stations such as Torre and Torquay offers convenient transportation links. The property itself appears well-maintained from the photos provided, with a modern kitchen and updated bathrooms. The presence of a garden is a positive feature. However, a definitive assessment of the overall condition requires an in-person inspection. The list price of £275,000 is slightly above the average price of £300,134 for the area, but considering the property’s size (4,065.53 sqft) and features, it could be considered reasonable. A comparison to similar properties in the vicinity would provide a clearer picture. The lack of plot size information prevents a precise land score.
Therefore, we give this property 7 / 10. *Disclaimer: This is our option and does constitute a recommendation or financial advice. Do your own research. *
- Price
- 6
- Condition
- 7
- Location
- 8
- Land
- 7
- Bedrooms
- 4
- Bathrooms
- 2
- Sqft (est)
- 4,065.53
The heatmap indicates the level of crime in the area. The color of the heatmap indicates the crime severity and recency.
Metrics Year-on-Year
- Average area value
- 396,809.00 £Increased by 30.40 %
- Est sale value
- 947,268.49 £Decreased by 15.88 %
- Average area rental value
- 892.00 £/moDecreased by 10.80 %
- Est letting value
- 0.00 £/mo
- Est rental Yield
- 2.70 %Decreased by 31.47 %
- Crime Rate
- 0.00 %
Agent Activity
Bradleys created the listing.
Nearby Schools
| Name | Type | Ofsted | Distance |
|---|---|---|---|
| St Cuthbert Mayne School | Voluntary Aided School | Good | 0.27 KM |
| Homelands Primary School | Community School | Good | 0.66 KM |
| St Margaret'S Academy | Academy Converter | Good | 0.68 KM |
| Phoenix Bay School | Other Independent Special School | 0.69 KM | |
| Priory Roman Catholic Primary School, Torquay | Academy Converter | Requires improvement | 0.79 KM |
Images
Nearby Streets
| Name | Average Price | Average Sqft | Distance |
|---|---|---|---|
| Third Avenue | £ 0 | 0 | 0.00 KM |
| Greenway Close | £ 250,000 | 0 | 0.00 KM |
| Shirburn Road | £ 0 | 0 | 0.00 KM |
| Lymington Road | £ 0 | 0 | 0.00 KM |
| Rue Orchard Lodge | £ 250,000 | 0 | 0.00 KM |
Nearby Transport
| Name | NLC | TLC | Distance |
|---|---|---|---|
| Torre | 3432 | TRR | 1.76 KM |
| Torquay | 3434 | TQY | 2.61 KM |
| Paignton | 3427 | PGN | 6.34 KM |
| Teignmouth | 3430 | TGM | 8.46 KM |
| Newton Abbot | 3426 | NTA | 8.94 KM |
Nearby Listings
| Address | Price | Type | Score | Distance |
|---|---|---|---|---|
| Westhill Road, Torquay, Devon | £ 275,000 | BUY | 7 / 10 | 0.00 KM |
| Westhill Road, Torquay, TQ1 4PE | £ 280,000 | BUY | 6 / 10 | 0.00 KM |
| Westhill Road, Torquay, Devon | £ 184,250 | BUY | 7 / 10 | 0.01 KM |
| Westhill Road, Torquay, TQ1 | £ 200,000 | BUY | 6 / 10 | 0.08 KM |
| Teignmouth Road, Torquay, TQ1 | £ 250,000 | BUY | 6 / 10 | 0.14 KM |
Nearby Properties
| Address | Price | Distance |
|---|---|---|
| 53 Westhill Road | £ 165,000 | 0.01 KM |
| 61 Westhill Road | £ 170,000 | 0.01 KM |
| 41 Westhill Road | £ 278,500 | 0.01 KM |
| 15 Westhill Road | £ 158,500 | 0.01 KM |
| 13 Westhill Road | £ 170,000 | 0.01 KM |