North Road, St Andrews, Bristol, BS6
Howard logo

North Road, St Andrews, Bristol, BS6

By Howard

£ 750,000

Reviews

2 out of 5 stars

Howard says ..

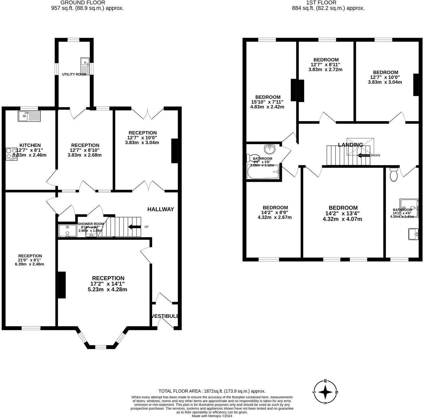
A very large 5 to 7 bedroom Victorian terraced house situated on a quiet residential street just off the Gloucester Road with its independent shops, cafes, bars and restaurants. Used previously as a seven bedroom student let currently with three bathrooms, a well equipped kitchen, separate dinin...

Property Oracle says ..

This property is a seven-bedroom, three-bathroom terraced house located on North Road in St Andrews, Bristol. The location is excellent, with several outstanding-rated schools within a kilometer and convenient access to public transportation. The property itself is a period property that appears to be in need of significant renovation. While it has a garden, it is currently overgrown and unkempt. The list price of £750,000 is higher than the average price for the area, but comparable properties on North Road have sold for similar prices. Given the need for extensive renovation, the value for money is questionable. However, the property’s size, location, and period features could make it attractive to buyers willing to undertake a renovation project.

Therefore, we give this property 5 / 10. *Disclaimer: This is our option and does constitute a recommendation or financial advice. Do your own research. *

Price
5
Condition
3
Location
9
Land
4
Bedrooms
7
Bathrooms
3
Sqft (est)
1,257.00
Lot (est)
1,872.00

The heatmap indicates the level of crime in the area. The color of the heatmap indicates the crime severity and recency.

Metrics Year-on-Year

Average area value
445,205.00 £
Decreased by 3.69 %
from 462,259.00 £
Est sale value
810,765.00 £
Increased by 20.34 %
from 673,752.00 £
Average area rental value
1,836.00 £/mo
Increased by 4.79 %
from 1,752.00 £/mo
Est letting value
2,514.00 £/mo
Unchanged by 0.00 %
from 2,514.00 £/mo
Est rental Yield
4.95 %
Increased by 8.79 %
from 4.55 %
Crime Rate
4.00 %
Unchanged by 0.00 %
from 4.00 %

Agent Activity

  • Howard created the listing.

Nearby Schools

NameTypeOfstedDistance
Montpelier High SchoolAcademy Sponsor LedOutstanding0.72 KM
Bishop Road Primary SchoolCommunity SchoolOutstanding0.72 KM
The Dolphin SchoolAcademy Sponsor LedGood0.83 KM
Sefton Park Junior SchoolCommunity SchoolGood0.91 KM
Sefton Park Infant SchoolCommunity SchoolGood0.91 KM

Images

Picture No. 21 Picture No. 27 Picture No. 33 Picture No. 18 Picture No. 32 Picture No. 26 Picture No. 20 Picture No. 24 Picture No. 29 Picture No. 19 Picture No. 25 Picture No. 23 Picture No. 31 Picture No. 17 Picture No. 06 Picture No. 30 Picture No. 07 Google Maps Image

Nearby Streets

NameAverage PriceAverage SqftDistance
Princes' Place £ 400,00000.00 KM
Berkeley Court £ 725,00000.00 KM
Wesley Road £ 895,00000.00 KM
Wesley Road £ 000.00 KM
Burghley Road £ 450,00000.00 KM

Nearby Transport

NameNLCTLCDistance
Montpelier3203MTP0.67 KM
Redland3247RDA1.16 KM
Clifton Down3202CFN2.59 KM
Stapleton Road3250SRD2.77 KM
Bristol Temple Meads3231BRI2.96 KM

Nearby Listings

AddressPriceTypeScoreDistance
North Road, St. Andrews, Bristol, BS6 £ 800,000BUY4 / 100.00 KM
North Road, St Andrews, Bristol, BS6 £ 750,000BUY5 / 100.00 KM
North Road, St. Andrews, Bristol, BS6 £ 250,000BUY6 / 100.00 KM
North Road, St. Andrews £ 850,000BUY7 / 100.04 KM
North Road, St. Andrews, Bristol £ 750,000BUY8 / 100.08 KM

Nearby Properties

AddressPriceDistance
139 North Road £ 640,5000.01 KM
121 North Road £ 586,0000.01 KM
135 North Road £ 595,2500.01 KM
173 North Road £ 517,5000.01 KM
143 North Road £ 686,0000.01 KM