Pearsons says ..
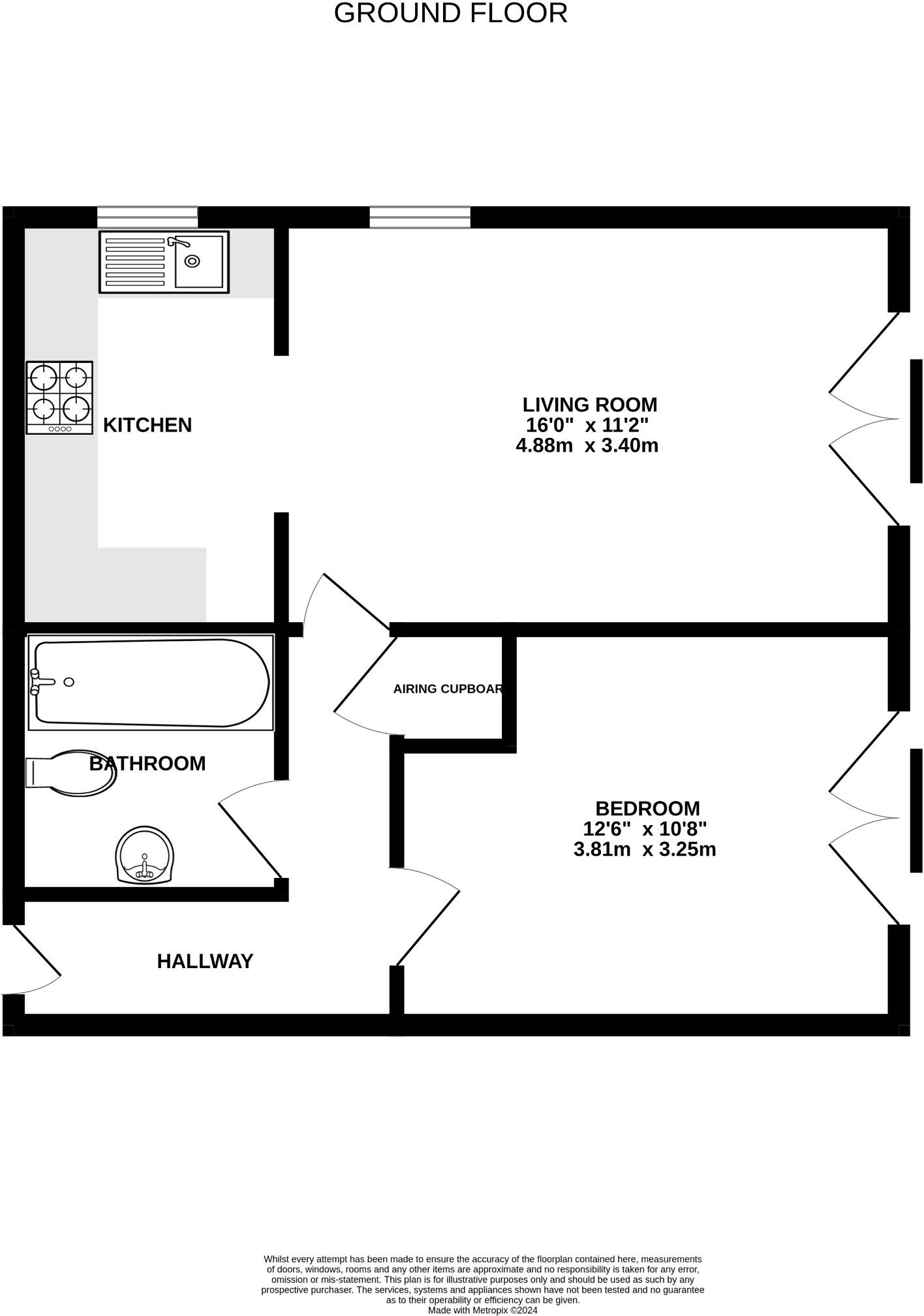
A beautifully presented one bedroom first floor apartment which has had upgrades by its present owner, including a new kitchen and bathroom and new boiler in 2019. The property's accommodation briefly comprises; communal entrance hall with security entrance system and stairs to first floor, priva...
Property Oracle says ..
This one-bedroom apartment in Saxe Court, Knowle Village, Winchester, is presented in good condition, with a modern and recently renovated interior featuring a new kitchen and bathroom. The property benefits from being located within a desirable residential area, Knowle Village, and is relatively close to Fareham railway station, providing convenient transport links. The apartment itself is well-presented, and the photos showcase a clean and stylish living space. However, it is important to note that the property lacks any significant outdoor space and the overall plot size is very small. The price of £170,000 seems to be at the lower end for the area, making it a potentially attractive option for first-time buyers or investors looking for a move-in-ready property in a sought-after location. The lack of external space and small plot size will be a factor for buyers that desire this kind of amenity.
Therefore, we give this property 5 / 10. *Disclaimer: This is our option and does constitute a recommendation or financial advice. Do your own research. *
- Price
- 7
- Condition
- 8
- Location
- 7
- Land
- 1
- Bedrooms
- 1
- Bathrooms
- 1
- Sqft (est)
- 566.94
The heatmap indicates the level of crime in the area. The color of the heatmap indicates the crime severity and recency.
Metrics Year-on-Year
- Average area value
- 224,091.00 £Decreased by 51.86 %
- Est sale value
- 176,318.34 £Decreased by 24.88 %
- Average area rental value
- 1,581.00 £/moIncreased by 20.59 %
- Est letting value
- 1,133.88 £/moIncreased by 100.00 %
- Est rental Yield
- 8.47 %Increased by 150.59 %
- Crime Rate
- 25.00 %Unchanged by 0.00 %
Agent Activity
Pearsons marked this listing as sold.
Pearsons created the listing.
Nearby Schools
| Name | Type | Ofsted | Distance |
|---|---|---|---|
| Orchard Lea Junior School | Community School | Good | 1.78 KM |
| Orchard Lea Infant School | Community School | Good | 1.89 KM |
| Oak Meadow Children'S Centre | Children's Centre | 2.39 KM | |
| St Columba Ce Primary School | Academy Sponsor Led | 2.48 KM | |
| Uplands Primary School | Community School | Good | 2.61 KM |
Images
Nearby Streets
| Name | Average Price | Average Sqft | Distance |
|---|---|---|---|
| Saxe Court | £ 0 | 0 | 0.00 KM |
| Noctule Court | £ 0 | 0 | 0.00 KM |
| Farm Cottages | £ 635,000 | 0 | 0.00 KM |
Nearby Transport
| Name | NLC | TLC | Distance |
|---|---|---|---|
| Fareham | 5900 | FRM | 3.34 KM |
| Swanwick | 5920 | SNW | 6.97 KM |
| Botley | 5894 | BOE | 7.36 KM |
| Portchester | 5928 | PTC | 9.43 KM |
Nearby Listings
| Address | Price | Type | Score | Distance |
|---|---|---|---|---|
| SAXE COURT, KNOWLE VILLAGE | £ 170,000 | BUY | 5 / 10 | 0.00 KM |
| Knowle, Fareham | £ 260,000 | BUY | Unknown | 0.03 KM |
| Saxe court, Boundary Walk | £ 170,000 | BUY | 5 / 10 | 0.04 KM |
| Boundary Walk, Knowle | £ 165,000 | BUY | 5 / 10 | 0.04 KM |
| Boundary Walk, Knowle | £ 190,000 | BUY | 5 / 10 | 0.04 KM |
Nearby Properties
| Address | Price | Distance |
|---|---|---|
| 19 Boundary Walk | £ 379,950 | 0.05 KM |
| 17 Boundary Walk | £ 410,000 | 0.05 KM |
| 21 Boundary Walk | £ 405,000 | 0.05 KM |
| 15 Boundary Walk | £ 410,000 | 0.05 KM |
| 3 Boundary Walk | £ 161,950 | 0.05 KM |