Plovers Rise, Radstock
Barons Property Centre Ltd logo

Plovers Rise, Radstock

By Barons Property Centre Ltd

£ 489,000

Reviews

3 out of 5 stars

Barons Property Centre Ltd says ..

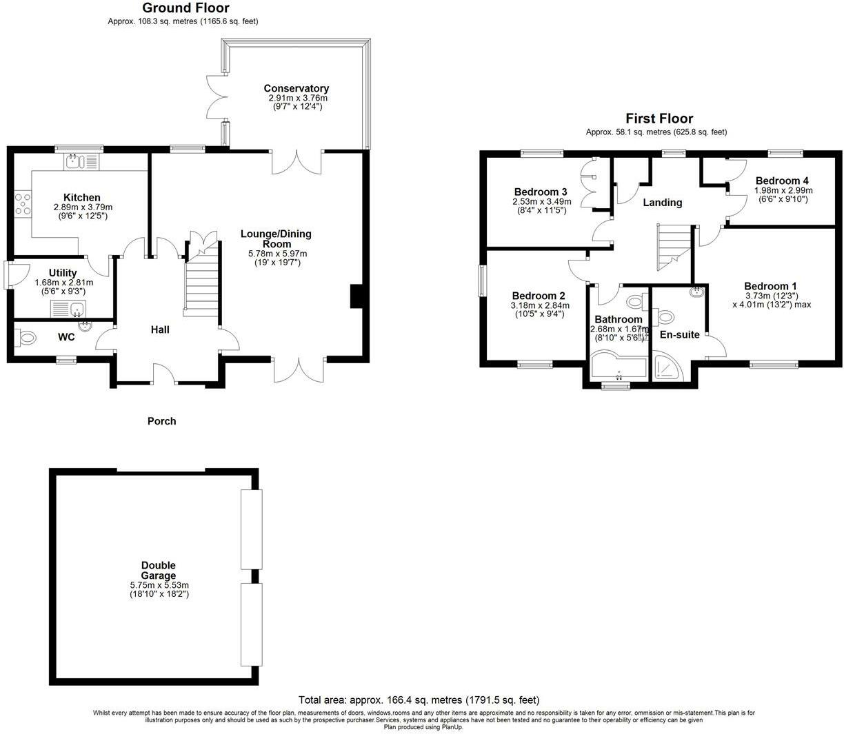
Barons are DELIGHTED to welcome to the market this WELL PRESENTED spacious family home. Located close to local amenities and close commuting distance to the City Of Bath. The property comprises a bright and airy living room, a kitchen, utility room, cloakroom and a lovely spacious conservatory. O...

Property Oracle says ..

This four-bedroom, three-bathroom property in Radstock, Somerset, is presented as a spacious family home in good condition. The images showcase a modern kitchen with ample storage and a bright living area with a wood-burning stove. The inclusion of a conservatory suggests ample natural light and a pleasant place to relax. The garden is a decent size with a patio area, providing usable outdoor space. Proximity to several schools, though with varying Ofsted ratings, may make it attractive to families. The lack of detailed information on local transportation makes accurate assessment in that area difficult. Furthermore, without access to accurate square footage data for nearby comparable properties, a precise assessment of the property’s price per square foot and whether it represents good value is not possible. The property seems to be overall a well maintained family home in a good location. However, further analysis is necessary to reach a full conclusion on the exact market value.

Therefore, we give this property 6 / 10. *Disclaimer: This is our option and does constitute a recommendation or financial advice. Do your own research. *

Price
7
Condition
7
Location
7
Land
6
Bedrooms
4
Bathrooms
3
Sqft (est)
1,791.50

The heatmap indicates the level of crime in the area. The color of the heatmap indicates the crime severity and recency.

Metrics Year-on-Year

Average area value
312,990.00 £
Increased by 5.60 %
from 296,406.00 £
Est sale value
721,974.50 £
Increased by 58.04 %
from 456,832.50 £
Average area rental value
788.00 £/mo
Decreased by 18.76 %
from 970.00 £/mo
Est letting value
1,791.50 £/mo
from 0.00 £/mo
Est rental Yield
3.02 %
Decreased by 23.16 %
from 3.93 %
Crime Rate
16.00 %
Unchanged by 0.00 %
from 16.00 %

Agent Activity

  • Barons Property Centre Ltd created the listing.

Nearby Schools

NameTypeOfstedDistance
Trinity Church SchoolAcademy ConverterGood0.33 KM
St Nicholas Church SchoolAcademy Converter0.74 KM
Radstock Children'S CentreChildren's Centre0.91 KM
Writhlington SchoolAcademy ConverterRequires improvement1.42 KM
Mendip Studio SchoolStudio SchoolsGood1.48 KM

Images

Conservatory WC Bedroom One Bedroom One En-Suite Bedroom Three Garden Front Conservatory Living Room Kitchen Kitchen Log Burner Living Room / Dining Room Dining Area Bedroom Two Bathroom Rear Garden Double garage Boundary 1-Plovers-Drive-04172025_133953.jpg 1-Plovers-Drive-04172025_134804.jpg 1-Plovers-Drive-04172025_141242.jpg 1-Plovers-Drive-04172025_141307.jpg 1-Plovers-Drive-04172025_141425.jpg 1-Plovers-Drive-04172025_141611.jpg Kitchen Kitchen Dining Area

Nearby Streets

NameAverage PriceAverage SqftDistance
Abbey View £ 000.00 KM
Pine Court £ 000.00 KM
Vale View £ 000.00 KM
Riverside Cottages £ 000.00 KM
Sheepwash Bridge £ 159,95000.00 KM

Nearby Listings

AddressPriceTypeScoreDistance
Plovers Rise, Radstock £ 489,000BUY6 / 100.00 KM
Daneacre Road, Radstock £ 230,000BUY7 / 100.05 KM
Morley Terrace, Radstock £ 675,000BUY7 / 100.07 KM
Stoneable Road, Radstock £ 289,950BUYUnknown0.09 KM
Daneacre Road, Radstock £ 230,000BUY7 / 100.09 KM

Nearby Properties

AddressPriceDistance
3 Plovers Rise £ 295,0000.01 KM
33 Daneacre Road £ 250,0000.05 KM
29 Daneacre Road £ 198,0000.05 KM
21 Daneacre Road £ 174,5000.05 KM
23 Daneacre Road £ 140,0000.05 KM