Yopa says ..
Fantastic 5-bed period property on Wolseley Rd, Plymouth. Fully let with income of £24,936 pa, potential to exceed £30,000 with added bathroom. Features large kitchen/diner, sunny rear courtyard, and garage. Close to shops, transport & amenities. Great investment opportunity!
Property Oracle says ..
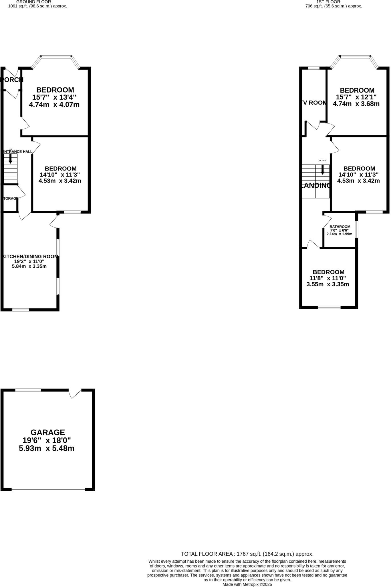
This property is a 5 bedroom, 1 bathroom terraced house located on Wolseley Road in St Budeaux, Plymouth. The property benefits from being close to local amenities and transport links, with several schools within a short distance. The asking price of £250,000 is slightly higher than the average price for the area (£219,483), but given the size of the property (1767 sq ft) and the number of bedrooms, it could represent good value for money, particularly for families or those looking for a rental investment opportunity. The property appears to be in reasonable condition, although some minor renovations may be needed. The property has a small, paved garden area.
Therefore, we give this property 5 / 10. *Disclaimer: This is our option and does constitute a recommendation or financial advice. Do your own research. *
- Price
- 6
- Condition
- 7
- Location
- 7
- Land
- 3
- Bedrooms
- 5
- Bathrooms
- 1
- Sqft (est)
- 1,767.43
The heatmap indicates the level of crime in the area. The color of the heatmap indicates the crime severity and recency.
Metrics Year-on-Year
- Average area value
- 210,833.00 £Increased by 5.82 %
- Est sale value
- 433,020.35 £Increased by 13.43 %
- Average area rental value
- 925.00 £/moDecreased by 21.81 %
- Est letting value
- 1,767.43 £/moUnchanged by 0.00 %
- Est rental Yield
- 5.26 %Decreased by 26.23 %
- Crime Rate
- 9.00 %Unchanged by 0.00 %
Agent Activity
Yopa created the listing.
Nearby Schools
| Name | Type | Ofsted | Distance |
|---|---|---|---|
| St Paul'S Roman Catholic Primary School | Academy Sponsor Led | Good | 0.26 KM |
| Riverside Community Primary School | Foundation School | Good | 0.53 KM |
| Tamar Folk (For Our Local Kids) Children'S Centre | Children's Centre | 0.56 KM | |
| Victoria Road Primary | Academy Converter | 0.59 KM | |
| Oneschool Global Uk Plymouth Campus | Other Independent School | 0.76 KM |
Images
Nearby Streets
| Name | Average Price | Average Sqft | Distance |
|---|---|---|---|
| Old Farm Road | £ 0 | 0 | 0.00 KM |
| Green Gates | £ 0 | 0 | 0.00 KM |
| Bridwell Lane North | £ 0 | 0 | 0.00 KM |
| Clifford Close | £ 200,000 | 0 | 0.00 KM |
| Second Avenue | £ 145,000 | 0 | 0.00 KM |
Nearby Transport
| Name | NLC | TLC | Distance |
|---|---|---|---|
| St Budeaux Victoria Road | 3592 | SBV | 0.37 KM |
| St Budeaux Ferry Road | 3590 | SBF | 0.44 KM |
| Keyham | 3571 | KEY | 1.85 KM |
| Saltash | 3587 | STS | 2.11 KM |
| Dockyard (Devonport) | 3588 | DOC | 2.77 KM |
Nearby Listings
| Address | Price | Type | Score | Distance |
|---|---|---|---|---|
| Wolseley Road, Plymouth, PL5 | £ 250,000 | BUY | 5 / 10 | 0.00 KM |
| 675 Wolseley Road, Plymouth, Devon, PL5 1JL | £ 65,000 | BUY | 5 / 10 | 0.03 KM |
| Sithney Street, Plymouth, Devon, PL5 | £ 170,000 | BUY | 5 / 10 | 0.04 KM |
| Wolseley Road, Devon | £ 65,000 | BUY | 5 / 10 | 0.05 KM |
| Rennie Avenue, Plymouth | £ 140,000 | BUY | 5 / 10 | 0.10 KM |
Nearby Properties
| Address | Price | Distance |
|---|---|---|
| 661 Wolseley Road | £ 180,000 | 0.00 KM |
| 659 Wolseley Road | £ 130,000 | 0.00 KM |
| 695a Wolseley Road | £ 74,950 | 0.00 KM |
| 711 Wolseley Road | £ 110,000 | 0.00 KM |
| 696 Wolseley Road | £ 200,000 | 0.00 KM |