Wentloog Road, Rumney, Cardiff
Moving You logo

Wentloog Road, Rumney, Cardiff

By Moving You

£ 300,000

Reviews

3 out of 5 stars

Moving You says ..

Spacious family home, ready for the next owner. We are offering this with no onward chain.

Property Oracle says ..

This four-bedroom, two-bathroom property located on Wentloog Road in Rumney, Cardiff, presents a compelling offering for potential buyers. The property boasts a modern aesthetic, with updated bathrooms and a kitchen that appears recently renovated or remodeled. The images showcase a bright and airy interior. The inclusion of a garden adds to its appeal.

The location in Rumney provides access to local amenities, including shops and bus routes, and proximity to several schools for families. While not in the heart of Cardiff city centre, the location offers a balance of residential tranquility and accessibility.

The list price seems in line with similar properties in the area, although a precise price per square foot analysis is difficult without more granular data from comparable sales. Overall, this property represents a solid investment opportunity, particularly for families seeking a modern and well-maintained home in a reasonably convenient location. However, the limited plot size information and lack of definitive comparative price-per-square-foot data slightly reduce the overall desirability score.

Therefore, we give this property 7 / 10. *Disclaimer: This is our option and does constitute a recommendation or financial advice. Do your own research. *

Price
7
Condition
8
Location
7
Land
6
Bedrooms
4
Bathrooms
2
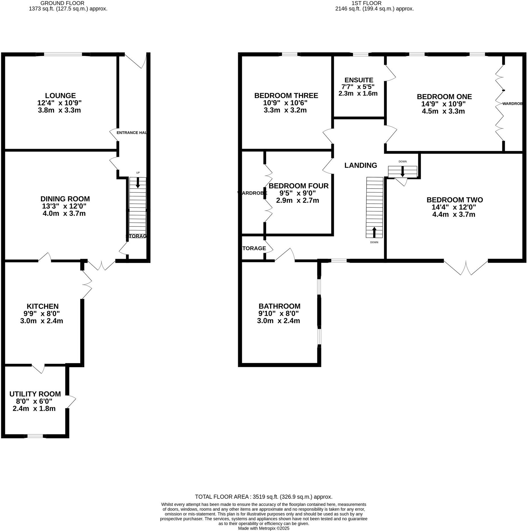
Sqft (est)
3,518.72

The heatmap indicates the level of crime in the area. The color of the heatmap indicates the crime severity and recency.

Metrics Year-on-Year

Average area value
310,252.00 £
Increased by 19.55 %
from 259,509.00 £
Est sale value
883,198.72 £
Increased by 50.30 %
from 587,626.24 £
Average area rental value
1,054.00 £/mo
Decreased by 24.34 %
from 1,393.00 £/mo
Est letting value
0.00 £/mo
from 0.00 £/mo
Est rental Yield
4.08 %
Decreased by 36.65 %
from 6.44 %
Crime Rate
6.00 %
Unchanged by 0.00 %
from 6.00 %

Agent Activity

  • Moving You created the listing.

Nearby Schools

NameTypeOfstedDistance
Greenway Primary SchoolWelsh Establishment0.64 KM
Eastern HighWelsh Establishment1.45 KM
Ysgol Bro EirwgWelsh Establishment1.47 KM
Bryn Hafod Primary SchoolWelsh Establishment1.48 KM
St Illtyds R.C. High SchoolWelsh Establishment1.83 KM

Images

11025b96-1000013143.jpg 24d9f1c1-1000013135.jpg 70f1e3ae-1000013130.jpg fc881ef0-1000013114.jpg f35605bd-1000013129.jpg f507d057-1000013120.jpg ca837886-1000013117.jpg bfd8fb99-1000013137.jpg 4f55ad40-1000013140.jpg 1309c1fd-1000013096.jpg b4d5a605-1000013098.jpg a3bbd2ca-1000013088.jpg 39d26560-1000013122.jpg f733b69d-1000013111.jpg 0f0c8a92-1000013125.jpg

Nearby Streets

NameAverage PriceAverage SqftDistance
The Grove £ 360,00000.00 KM
Pwll Mawr Avenue £ 364,99200.00 KM
Dros-Y-Morfa £ 000.00 KM
Beaumaris Road £ 319,85400.00 KM
Caswell Road £ 280,00000.00 KM

Nearby Transport

NameNLCTLCDistance
Cardiff Queen Street3900CDQ5.53 KM
Cathays3820CYS6.12 KM
Cardiff Bay3815CDB6.14 KM
Heath High Level3845HHL6.33 KM
Heath Low Level3908HLL6.36 KM

Nearby Listings

AddressPriceTypeScoreDistance
Wentloog Road, Rumney, Cardiff £ 300,000BUY7 / 100.00 KM
Wentloog Road, Rumney, Cardiff £ 240,000BUYUnknown0.00 KM
Wentloog Road, Cardiff, CF3 £ 240,000BUY7 / 100.03 KM
Wentloog Road, Rumney, CF3 £ 240,000BUY7 / 100.04 KM
Wentloog Road, Rumney, CF3 £ 240,000BUY7 / 100.04 KM

Nearby Properties

AddressPriceDistance
131 Wentloog Road £ 220,0000.03 KM
115 Wentloog Road £ 130,0000.03 KM
133 Wentloog Road £ 230,0000.03 KM
153 Wentloog Road £ 203,0000.03 KM
113 Wentloog Road £ 59,0000.03 KM