Holland Villas Road, Holland Park, London, W14
By Foxtons
£ 2,350,000
Reviews
3 out of 5 stars
Foxtons says ..
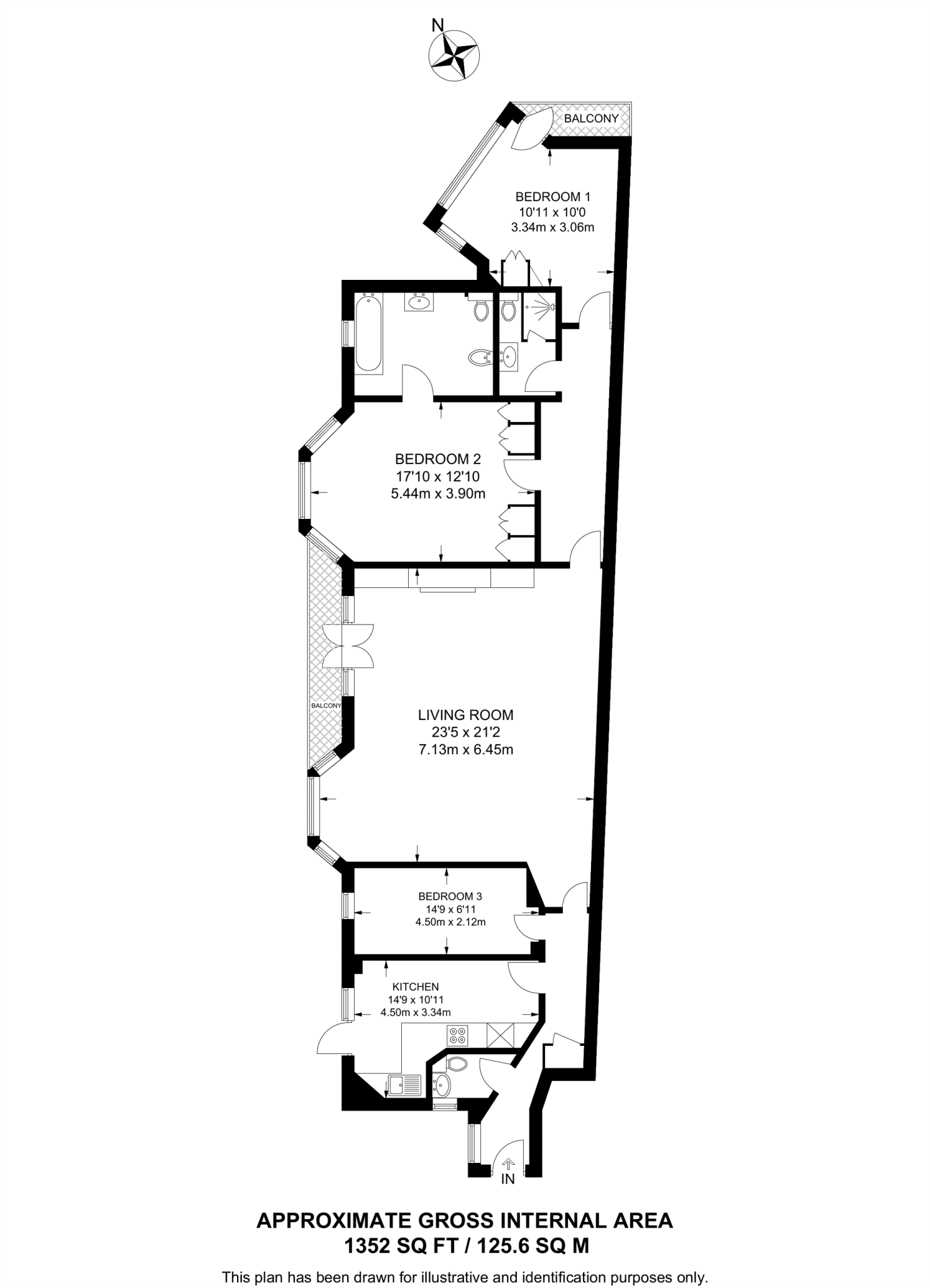
Recently refurbished throughout with 2 balconies, lift and porter this stunning, bright and well proportioned 2 bedroom apartment is well arranged in this exclusive mansion building.
Property Oracle says ..
This is a 3-bedroom flat located in Holland Park, London. The property is situated in a sought-after location, close to schools and transportation. The flat itself appears to be in good condition, with modern bathrooms, but the kitchen could use some updating. The property includes a balcony, but no garden. The asking price of £2,350,000 seems reasonable given the location and the size of the property.
Therefore, we give this property 6 / 10. *Disclaimer: This is our option and does constitute a recommendation or financial advice. Do your own research. *
- Price
- 7
- Condition
- 7
- Location
- 9
- Land
- 3
- Bedrooms
- 3
- Bathrooms
- 3
- Sqft (est)
- 1,098.13
The heatmap indicates the level of crime in the area. The color of the heatmap indicates the crime severity and recency.
Metrics Year-on-Year
- Average area value
- 1,614,130.00 £Decreased by 28.76 %
- Est sale value
- 2,037,031.15 £Increased by 46.41 %
- Average area rental value
- 2,563.00 £/moDecreased by 18.89 %
- Est letting value
- 2,196.26 £/moIncreased by 100.00 %
- Est rental Yield
- 1.91 %Increased by 14.37 %
- Crime Rate
- 2.00 %Unchanged by 0.00 %
Agent Activity
Foxtons created the listing.
Nearby Schools
| Name | Type | Ofsted | Distance |
|---|---|---|---|
| The Cardinal Vaughan Memorial Rc School | Academy Converter | 0.09 KM | |
| Norland Place School | Other Independent School | 0.25 KM | |
| Sial | Other Independent School | Good | 0.27 KM |
| Tabernacle School | Other Independent School | Good | 0.46 KM |
| St Clement And St James Cofe Primary School | Voluntary Aided School | Good | 0.57 KM |
Images
Nearby Streets
| Name | Average Price | Average Sqft | Distance |
|---|---|---|---|
| Royal Crescent | £ 895,000 | 0 | 0.00 KM |
| Sinclair Road | £ 0 | 0 | 0.00 KM |
| Norland Road | £ 0 | 0 | 0.00 KM |
| St Anns Road | £ 950,000 | 0 | 0.00 KM |
| Sinclair Road | £ 0 | 0 | 0.00 KM |
Nearby Transport
| Name | NLC | TLC | Distance |
|---|---|---|---|
| Shepherd'S Bush | 9587 | SPB | 0.58 KM |
| Kensington (Olympia) | 3092 | KPA | 0.73 KM |
| West Brompton | 8875 | WBP | 2.67 KM |
| Kensal Green | 1447 | KNL | 3.25 KM |
| Queens Park (London) | 1419 | QPW | 3.43 KM |
Nearby Listings
| Address | Price | Type | Score | Distance |
|---|---|---|---|---|
| Holland Villas Road, Holland Park, London, W14 | £ 2,350,000 | BUY | 6 / 10 | 0.00 KM |
| Addisland Court, London | £ 2,500,000 | BUY | Unknown | 0.03 KM |
| Holland Villas Road, Holland Park, W14 | £ 2,000,000 | BUY | 6 / 10 | 0.03 KM |
| Addisland Court, Holland Villas Road, Holland Park, W14 | £ 2,350,000 | BUY | 7 / 10 | 0.04 KM |
| Addisland Court, Holland Villas Road, London W14 | £ 2,500,000 | BUY | Unknown | 0.06 KM |
Nearby Properties
| Address | Price | Distance |
|---|---|---|
| 90b Addison Road | £ 2,652,500 | 0.06 KM |
| 98 Addison Road | £ 850,000 | 0.08 KM |
| 99 Addison Road | £ 905,000 | 0.08 KM |
| 24 Holland Park Gardens | £ 2,610,000 | 0.14 KM |
| 31 Holland Park Gardens | £ 1,570,000 | 0.14 KM |