Claygate, Marden, Tonbridge, Kent, TN12 9PD
By Harpers and Hurlingham
£ 1,100,000
Reviews
3 out of 5 stars
Harpers and Hurlingham says ..
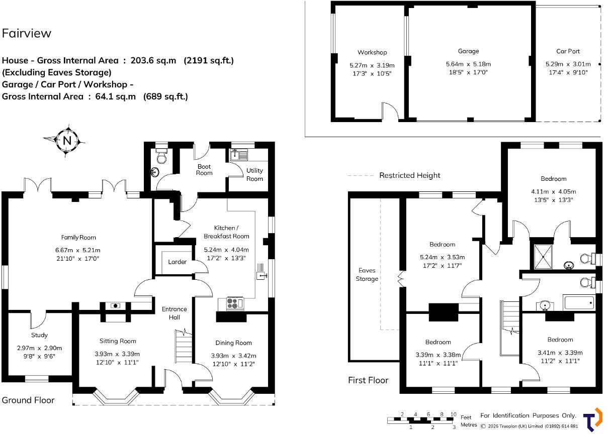
CLAYGATE, MARDEN Situated in the hamlet of Claygate, on the outskirts of Marden, this attractive, detached family home is believed to date from 1911 with later additions. The property, sit...
Property Oracle says ..
Therefore, we give this property 7 / 10. *Disclaimer: This is our option and does constitute a recommendation or financial advice. Do your own research. *
- Price
- 7
- Condition
- 8
- Location
- 7
- Land
- 9
- Bedrooms
- 4
- Bathrooms
- 2
The heatmap indicates the level of crime in the area. The color of the heatmap indicates the crime severity and recency.
Metrics Year-on-Year
- Average area value
- 465,167.00 £Decreased by 23.15 %
- Average area rental value
- 1,248.00 £/moDecreased by 11.36 %
- Est rental Yield
- 3.22 %Increased by 15.41 %
- Crime Rate
- 113.00 %Unchanged by 0.00 %
from 605,290.00 £
from 1,408.00 £/mo
from 2.79 %
from 113.00 %
Agent Activity
Harpers and Hurlingham created the listing.
Nearby Schools
| Name | Type | Ofsted | Distance |
|---|---|---|---|
| St Margaret'S, Collier Street Church Of England Voluntary Controlled School | Voluntary Controlled School | Good | 1.79 KM |
| Marden Primary Academy | Academy Converter | 4.02 KM | |
| Horsmonden Primary Academy | Academy Converter | 4.12 KM | |
| Hunton Church Of England Primary School | Voluntary Aided School | Good | 5.06 KM |
| Laddingford St Mary'S Church Of England Voluntary Controlled Primary School | Voluntary Controlled School | Good | 5.34 KM |
Images
Nearby Transport
| Name | NLC | TLC | Distance |
|---|---|---|---|
| Marden (Kent) | 5223 | MRN | 4.62 KM |
| Beltring | 5227 | BEG | 6.42 KM |
| Paddock Wood | 5224 | PDW | 6.98 KM |
| Yalding | 5232 | YAL | 7.44 KM |
| Wateringbury | 5241 | WTR | 9.21 KM |
Nearby Listings
| Address | Price | Type | Score | Distance |
|---|---|---|---|---|
| Claygate, Marden, Tonbridge, Kent, TN12 9PD | £ 1,100,000 | BUY | 7 / 10 | 0.00 KM |
| Spenny Lane, Claygate, Tonbridge, Kent, TN12 9PL | £ 750,000 | BUY | 7 / 10 | 0.25 KM |
| Claygate, Marden, Tonbridge | £ 495,000 | BUY | 7 / 10 | 0.25 KM |
| Spenny Lane, Claygate, Tonbridge, TN12 9PL | £ 750,000 | BUY | 7 / 10 | 0.25 KM |
| Spenny Lane, Claygate, Tonbridge, Kent, TN12 9PL | £ 750,000 | BUY | 6 / 10 | 0.26 KM |
Nearby Properties
| Address | Price | Distance |
|---|---|---|
| 2 Mill Cottages | £ 245,000 | 0.21 KM |
| 3 Mill Cottages | £ 340,000 | 0.21 KM |
| Priestlands Oast | £ 846,000 | 0.63 KM |
| Orchard House | £ 800,000 | 0.74 KM |
| 2 Spenney Cottages | £ 182,500 | 0.74 KM |