The Lincolns, Marsh Lane, London, NW7
By Lumley Estates
£ 1,395,000
Reviews
3 out of 5 stars
Lumley Estates says ..
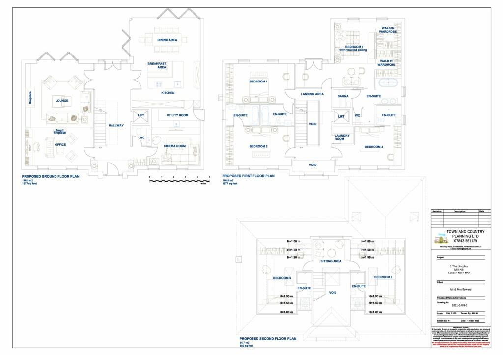
An outstanding opportunity to purchase a 4-bedroom property on Marsh Lane, NW7, with approved planning permission for a complete knock down and rebuild into a luxurious 6 double bedroom family home. This new build will offer an exceptional blend of modern elegance and convenience. The ...
Property Oracle says ..
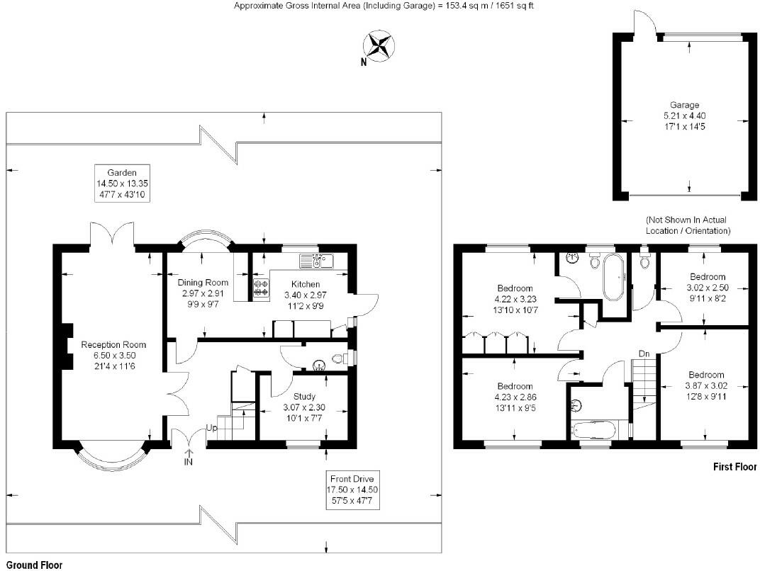
This property in Mill Hill, NW7 presents a unique opportunity. Currently a 4-bedroom house, it benefits from approved planning permission for demolition and the construction of a significantly larger, 6-bedroom luxury home. The existing house, as shown in the photos, appears well-maintained but with some dated features. The garden appears reasonably sized, though a precise plot size is unavailable. The location is a key selling point; Mill Hill is a sought-after area with a good reputation for schools and a generally pleasant residential environment. The property’s proximity to Mill Hill Broadway station offers access to public transport. The listed price is in line with other comparable properties in the area with similar development potential, although a precise assessment of value per square foot is difficult due to missing data points. Overall, this property presents a good investment opportunity for someone looking for a development project in a prime location. The buyer must be aware that the property is currently not a luxury residence, but a development opportunity to build one.
Therefore, we give this property 7 / 10. *Disclaimer: This is our option and does constitute a recommendation or financial advice. Do your own research. *
- Price
- 7
- Condition
- 6
- Location
- 8
- Land
- 7
- Bedrooms
- 4
- Bathrooms
- 2
- Sqft (est)
- 1,651.00
The heatmap indicates the level of crime in the area. The color of the heatmap indicates the crime severity and recency.
Metrics Year-on-Year
- Average area value
- 696,062.00 £Decreased by 2.02 %
- Est sale value
- 856,869.00 £Decreased by 10.05 %
- Average area rental value
- 2,443.00 £/moDecreased by 15.35 %
- Est letting value
- 1,651.00 £/moDecreased by 50.00 %
- Est rental Yield
- 4.21 %Decreased by 13.55 %
- Crime Rate
- 2.00 %Unchanged by 0.00 %
Agent Activity
Lumley Estates created the listing.
Nearby Schools
| Name | Type | Ofsted | Distance |
|---|---|---|---|
| Ellern Mede School | Other Independent School | Outstanding | 0.59 KM |
| Mill Hill County High School | Academy Converter | Good | 0.74 KM |
| Goodwyn School | Other Independent School | 1.15 KM | |
| Courtland School | Community School | Outstanding | 1.18 KM |
| St Martin'S School | Other Independent School | Good | 1.31 KM |
Images
Nearby Streets
| Name | Average Price | Average Sqft | Distance |
|---|---|---|---|
| Nan Clark's Lane | £ 0 | 0 | 0.00 KM |
| Marsh Lane | £ 2,044,158 | 0 | 0.00 KM |
| Millers Close | £ 0 | 0 | 0.00 KM |
| Wiltshire Close | £ 0 | 0 | 0.00 KM |
| Mill Hill Circus | £ 0 | 0 | 0.00 KM |
Nearby Transport
| Name | NLC | TLC | Distance |
|---|---|---|---|
| Mill Hill Broadway | 1527 | MIL | 1.67 KM |
| Hendon | 1522 | HEN | 5.15 KM |
| Elstree And Borehamwood | 1542 | ELS | 5.17 KM |
| New Barnet | 6018 | NBA | 8.01 KM |
| Cricklewood | 1519 | CRI | 8.21 KM |
Nearby Listings
| Address | Price | Type | Score | Distance |
|---|---|---|---|---|
| The Lincolns, Marsh Lane, London, NW7 | £ 1,395,000 | BUY | 7 / 10 | 0.00 KM |
| Marsh Lane, Mill Hill, London, NW7 | £ 1,395,000 | BUY | Unknown | 0.03 KM |
| Abbey View, Mill Hill, London, NW7 | £ 3,750,000 | BUY | Unknown | 0.09 KM |
| Marsh Lane, Mill Hill, London | £ 2,500,000 | BUY | 7 / 10 | 0.13 KM |
| The Reddings, London, NW7 | £ 1,250,000 | BUY | 6 / 10 | 0.24 KM |
Nearby Properties
| Address | Price | Distance |
|---|---|---|
| 116 Marsh Lane | £ 1,220,000 | 0.04 KM |
| 1 Abbey View | £ 1,885,000 | 0.10 KM |
| 10 Abbey View | £ 2,400,000 | 0.10 KM |
| 4 Abbey View | £ 1,200,000 | 0.10 KM |
| 3 Abbey View | £ 1,995,000 | 0.10 KM |