Nove Property says ..
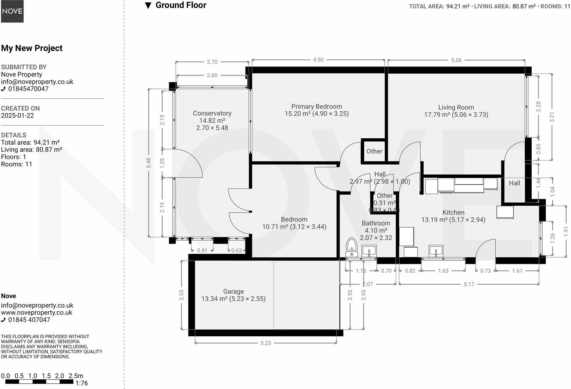
This detached bungalow, situated a short walk from the Towns amenities on a quiet cul-de-sac is offered to the market, chain free.
Property Oracle says ..
The property is located in Thirsk, a market town with nearby amenities and schools. While the location is positive, the property itself requires significant modernisation. The kitchen and bathroom are particularly dated and need updating. The garden is present but needs maintenance. The list price is comparable to similar properties but requires consideration of the renovation costs.
Therefore, we give this property 5 / 10. *Disclaimer: This is our option and does constitute a recommendation or financial advice. Do your own research. *
- Price
- 5
- Condition
- 4
- Location
- 7
- Land
- 6
- Bedrooms
- 3
- Bathrooms
- 0
- Sqft (est)
- 997.06
- Lot (est)
- 1,014.07
The heatmap indicates the level of crime in the area. The color of the heatmap indicates the crime severity and recency.
Metrics Year-on-Year
- Average area value
- 413,500.00 £Increased by 31.36 %
- Est sale value
- 391,844.58 £Increased by 32.77 %
- Average area rental value
- 1,399.00 £/moIncreased by 53.23 %
- Est letting value
- 997.06 £/mo
- Est rental Yield
- 4.06 %Increased by 16.67 %
- Crime Rate
- 3.00 %Unchanged by 0.00 %
Agent Activity
Nove Property created the listing.
Nearby Schools
| Name | Type | Ofsted | Distance |
|---|---|---|---|
| Thirsk Children'S Centre | Children's Centre | 0.28 KM | |
| Thirsk Community Primary School | Community School | Requires improvement | 0.28 KM |
| All Saints Catholic Primary School, A Catholic Voluntary Academy | Academy Sponsor Led | 1.35 KM | |
| Sowerby Primary Academy | Academy Converter | 1.50 KM | |
| Thirsk School & Sixth Form College | Community School | Good | 1.76 KM |
Images
Nearby Streets
| Name | Average Price | Average Sqft | Distance |
|---|---|---|---|
| Bluebell Court | £ 0 | 0 | 0.00 KM |
| St Mary's Avenue | £ 0 | 0 | 0.00 KM |
| St Mary's Drive | £ 0 | 0 | 0.00 KM |
| The Green | £ 0 | 0 | 0.00 KM |
| Saint James Green | £ 275,000 | 0 | 0.00 KM |
Nearby Transport
| Name | NLC | TLC | Distance |
|---|---|---|---|
| Thirsk | 8191 | THI | 3.90 KM |
Nearby Listings
| Address | Price | Type | Score | Distance |
|---|---|---|---|---|
| St. Marys Way, Thirsk, YO7 | £ 279,000 | BUY | 5 / 10 | 0.00 KM |
| Long Street, Thirsk | £ 100,000 | BUY | Unknown | 0.09 KM |
| St. Marys Close, Thirsk | £ 350,000 | BUY | 7 / 10 | 0.10 KM |
| Fairfield, Thirsk, YO7 | £ 250,000 | BUY | 7 / 10 | 0.12 KM |
| St. Marys Walk, Thirsk | £ 379,950 | BUY | 6 / 10 | 0.14 KM |
Nearby Properties
| Address | Price | Distance |
|---|---|---|
| 9 St Marys Way | £ 250,000 | 0.01 KM |
| 10 St Marys Way | £ 240,000 | 0.01 KM |
| 1 St Marys Way | £ 212,000 | 0.01 KM |
| 7 St Marys Way | £ 146,000 | 0.01 KM |
| 2 St Marys Way | £ 270,000 | 0.01 KM |