New Cross Road, London, SE14
By Felicity J Lord
£ 325,000
Reviews
4 out of 5 stars
Felicity J Lord says ..
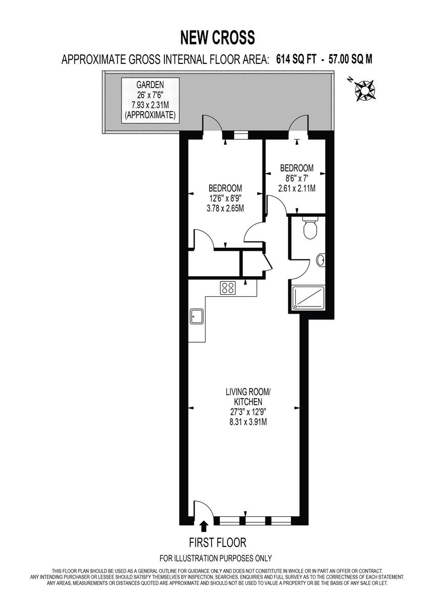
No chain. Welcome to this newly converted and beautifully refurbished 1/2 bedroom ground floor apartment in the vibrant area of New Cross. With its own private entrance and secluded outdoor space, this property is sure to impress
Property Oracle says ..
This property is a 2 bedroom flat located on New Cross Road in New Cross, Lewisham. The flat is modern and well presented, with a contemporary kitchen and bathroom. It benefits from a private decked patio area. The location is convenient, with good transport links and local amenities nearby. There are several schools within walking distance, including Addey And Stanhope School which has a good Ofsted rating. The property is priced at £325,000, which is slightly below the average price for the area. However, the average price per sqft is £671, whereas this property is £530 per sqft. This suggests that the property may be slightly undervalued, especially considering its modern condition and private outdoor space.
Therefore, we give this property 8 / 10. *Disclaimer: This is our option and does constitute a recommendation or financial advice. Do your own research. *
- Price
- 8
- Condition
- 9
- Location
- 8
- Land
- 7
- Bedrooms
- 2
- Bathrooms
- 1
- Sqft (est)
- 613.54
- Lot (est)
- 613.54
The heatmap indicates the level of crime in the area. The color of the heatmap indicates the crime severity and recency.
Metrics Year-on-Year
- Average area value
- 479,495.00 £Increased by 10.34 %
- Est sale value
- 388,984.36 £Increased by 1.28 %
- Average area rental value
- 2,475.00 £/moIncreased by 16.09 %
- Est letting value
- 1,840.62 £/moUnchanged by 0.00 %
- Est rental Yield
- 6.19 %Increased by 5.09 %
- Crime Rate
- 7.00 %Unchanged by 0.00 %
Agent Activity
Felicity J Lord created the listing.
Nearby Schools
| Name | Type | Ofsted | Distance |
|---|---|---|---|
| Addey And Stanhope School | Voluntary Aided School | Good | 0.16 KM |
| Lucas Vale Primary School | Community School | Requires improvement | 0.46 KM |
| St Joseph'S Catholic Primary School | Voluntary Aided School | Good | 0.57 KM |
| Myatt Garden Primary School | Community School | Good | 0.64 KM |
| Grinling Gibbons Primary School | Community School | Good | 0.65 KM |
Images
Nearby Streets
| Name | Average Price | Average Sqft | Distance |
|---|---|---|---|
| New Cross Road | £ 0 | 0 | 0.00 KM |
| Mornington Road | £ 313,333 | 0 | 0.00 KM |
| Elgar Close | £ 0 | 0 | 0.00 KM |
| Tanner's Hill | £ 525,000 | 0 | 0.00 KM |
| Payne Street | £ 450,000 | 0 | 0.00 KM |
Nearby Transport
| Name | NLC | TLC | Distance |
|---|---|---|---|
| Deptford | 5145 | DEP | 0.49 KM |
| St Johns | 5059 | SAJ | 1.01 KM |
| New Cross Gate | 5345 | NXG | 1.22 KM |
| Brockley | 5404 | BCY | 1.53 KM |
| Greenwich | 5146 | GNW | 1.79 KM |
Nearby Listings
| Address | Price | Type | Score | Distance |
|---|---|---|---|---|
| New Cross Road, London, SE14 | £ 325,000 | BUY | 8 / 10 | 0.00 KM |
| New Cross Road, New Cross | £ 225,000 | BUY | 4 / 10 | 0.01 KM |
| Land R/o New Cross Road, London, Greater London, SE14 | £ 200,000 | BUY | 5 / 10 | 0.05 KM |
| Baildon Street, Deptford, London, SE8 | £ 230,000 | BUY | 5 / 10 | 0.05 KM |
| Baildon Street, London SE8 | £ 550,000 | BUY | 7 / 10 | 0.05 KM |
Nearby Properties
| Address | Price | Distance |
|---|---|---|
| 14 Glenville Grove | £ 92,500 | 0.08 KM |
| 36 Glenville Grove | £ 127,000 | 0.08 KM |
| 42 Glenville Grove | £ 55,500 | 0.08 KM |
| 24 Glenville Grove | £ 31,000 | 0.08 KM |
| 22 Glenville Grove | £ 187,000 | 0.08 KM |