SINGLE BUILDING PLOT, Exeter, Devon, EX4
By KLP
£ 225,000
Reviews
2 out of 5 stars
KLP says ..
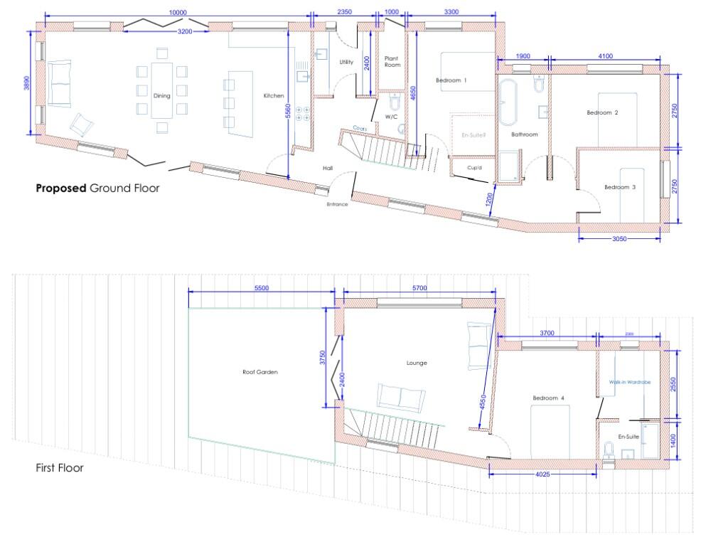
This single building plot is situated on Exwick Lane on the north western side of Exeter. Detailed planning has been granted for the removal of the existing property and caravan, and their replacement with a new two storey contemporary home of c. 181sqm (1948sqft).
Property Oracle says ..
This is a building plot in Exwick, Exeter, presenting an opportunity for a new build. The location offers a mix of urban convenience and access to green spaces. The plot requires complete construction, so the overall cost will depend on building expenses. The asking price appears reasonable given the location and potential.
Therefore, we give this property 5 / 10. *Disclaimer: This is our option and does constitute a recommendation or financial advice. Do your own research. *
- Price
- 8
- Condition
- 1
- Location
- 7
- Land
- 7
- Bedrooms
- 0
- Bathrooms
- 0
The heatmap indicates the level of crime in the area. The color of the heatmap indicates the crime severity and recency.
Metrics Year-on-Year
- Average area value
- 237,000.00 £Decreased by 16.10 %
- Average area rental value
- 1,204.00 £/moIncreased by 6.36 %
- Est rental Yield
- 6.10 %Increased by 26.82 %
- Crime Rate
- 1.00 %Unchanged by 0.00 %
Agent Activity
KLP created the listing.
Nearby Schools
| Name | Type | Ofsted | Distance |
|---|---|---|---|
| Exwick Heights Primary School | Academy Converter | 0.94 KM | |
| Barley Lane School | Foundation Special School | Good | 1.67 KM |
| Redhills Primary School | Academy Converter | Good | 1.87 KM |
| Torlands Academy | Academy Alternative Provision Converter | 2.11 KM | |
| Bowhill Primary School | Academy Converter | Good | 2.33 KM |
Images
Nearby Streets
| Name | Average Price | Average Sqft | Distance |
|---|---|---|---|
| Chester Close | £ 0 | 0 | 0.00 KM |
| Gibbs Meadow | £ 0 | 0 | 0.00 KM |
| Nadder Bottom | £ 0 | 0 | 0.00 KM |
| Isleworth Road | £ 0 | 0 | 0.00 KM |
| Cleve Road | £ 300,000 | 0 | 0.00 KM |
Nearby Transport
| Name | NLC | TLC | Distance |
|---|---|---|---|
| Exeter St David'S | 3410 | EXD | 2.52 KM |
| Exeter St Thomas | 3414 | EXT | 3.23 KM |
| Exeter Central | 5755 | EXC | 3.63 KM |
| St James Park (Exeter) | 5751 | SJP | 4.89 KM |
| Newton St Cyres | 5828 | NTC | 6.25 KM |
Nearby Listings
| Address | Price | Type | Score | Distance |
|---|---|---|---|---|
| SINGLE BUILDING PLOT, Exeter, Devon, EX4 | £ 225,000 | BUY | 5 / 10 | 0.00 KM |
| Redhills, Exeter | £ 415,000 | BUY | 5 / 10 | 0.09 KM |
| Long Meadow, Redhills, Exeter, EX4 1SX | £ 700,000 | BUY | 6 / 10 | 0.09 KM |
| Long Meadow, Redhills, Exeter, EX4 1SX | £ 475,000 | BUY | Unknown | 0.09 KM |
| Long Meadow, Redhills, Exeter, EX4 1SX | £ 550,000 | BUY | 7 / 10 | 0.09 KM |
Nearby Properties
| Address | Price | Distance |
|---|---|---|
| Crisping House | £ 495,950 | 0.26 KM |
| Barley Copse | £ 570,000 | 0.26 KM |
| Luggs Farm | £ 585,000 | 0.30 KM |
| 21 St Peters Mount | £ 123,000 | 0.41 KM |
| 10 St Peters Mount | £ 249,950 | 0.41 KM |