Land with Planning Consent, Hawkwell, Hockley, Essex
By Keller Williams
£ 250,000
Reviews
2 out of 5 stars
Keller Williams says ..
SOLD (sstc) LAND for Sale with PLANNING PERMISSION PASSED! Are you looking for a chance to build your own bungalow with planning permission already passed for a BRAND NEW Bungalow in Hockley Then get in contact today!
Property Oracle says ..
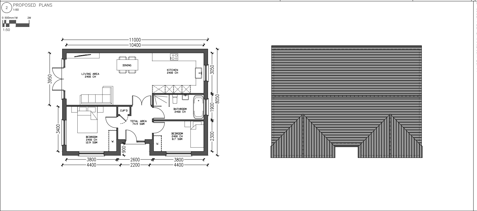
This listing is for a plot of land in Hawkwell, Essex, with approved planning permission for a two-bedroom bungalow. The proposed property features a modern design, with a spacious open-plan living area, kitchen, two bedrooms and a family bathroom. The plans include a small garden. High-quality finishes and fixtures are suggested by the artist’s impressions. The location in Hawkwell provides access to local schools rated ‘Good’ by Ofsted and a range of transport options. The proximity to Hockley train station and the Southend Airport is a significant plus. The site itself is of minimal size, which might affect the overall appeal for many buyers. The list price of £250,000 requires further evaluation. While some might see it as overpriced compared to the size, others might find it reasonable considering the current market conditions and the inclusion of planning permission. The lack of information on the plot’s actual size warrants caution. It is vital for prospective buyers to undertake thorough due diligence before committing to purchase. Overall, this property offers a potential opportunity for a contemporary home in a well-located area, but potential buyers must carefully weigh the price point and limited land size against the convenience of having planning permission already secured. Additional research on land values in the immediate area is recommended before final assessment
Therefore, we give this property 5 / 10. *Disclaimer: This is our option and does constitute a recommendation or financial advice. Do your own research. *
- Price
- 6
- Condition
- 8
- Location
- 7
- Land
- 1
- Bedrooms
- 2
- Bathrooms
- 1
- Sqft (est)
- 806.22
The heatmap indicates the level of crime in the area. The color of the heatmap indicates the crime severity and recency.
Metrics Year-on-Year
- Average area value
- 380,000.00 £Decreased by 13.57 %
- Est sale value
- 387,791.82 £Increased by 24.94 %
- Average area rental value
- 1,500.00 £/moIncreased by 36.36 %
- Est letting value
- 806.22 £/mo
- Est rental Yield
- 4.74 %Increased by 58.00 %
- Crime Rate
- 21.00 %Unchanged by 0.00 %
Agent Activity
Keller Williams marked this listing as sold.
Keller Williams created the listing.
Nearby Schools
| Name | Type | Ofsted | Distance |
|---|---|---|---|
| Westerings Primary Academy | Academy Converter | Good | 1.39 KM |
| Greensward Academy | Academy Sponsor Led | Good | 1.88 KM |
| Plumberow Primary Academy | Academy Converter | Good | 2.22 KM |
| Heycroft Primary School | Community School | Good | 2.35 KM |
| Kingsdown School | Academy Special Converter | 2.74 KM |
Images
Nearby Streets
| Name | Average Price | Average Sqft | Distance |
|---|---|---|---|
| Briar Close | £ 0 | 0 | 0.00 KM |
| Welbeck Close | £ 0 | 0 | 0.00 KM |
| Gregory Close | £ 0 | 0 | 0.00 KM |
| White Hart Lane | £ 433,333 | 0 | 0.00 KM |
| Kent Green Close | £ 0 | 0 | 0.00 KM |
Nearby Transport
| Name | NLC | TLC | Distance |
|---|---|---|---|
| Hockley | 6880 | HOC | 1.79 KM |
| Rochford | 6885 | RFD | 3.94 KM |
| Southend Airport | 4787 | SIA | 4.76 KM |
| Chalkwell | 7469 | CHW | 5.71 KM |
| Leigh-On-Sea | 7446 | LES | 6.20 KM |
Nearby Listings
| Address | Price | Type | Score | Distance |
|---|---|---|---|---|
| Land with Planning Consent, Hawkwell, Hockley, Essex | £ 250,000 | BUY | 5 / 10 | 0.00 KM |
| Thorpe Road, Hockley, SS5 4 | £ 750,000 | BUY | 7 / 10 | 0.06 KM |
| Thorpe Road, Hockley, SS5 | £ 600,000 | BUY | 7 / 10 | 0.06 KM |
| Hawkwell, Hockley, Essex, SS5 | £ 525,000 | BUY | 7 / 10 | 0.15 KM |
| Thorpe Road, Hockley, SS5 4JT | £ 675,000 | BUY | 6 / 10 | 0.15 KM |
Nearby Properties
| Address | Price | Distance |
|---|---|---|
| 8 Main Road | £ 420,000 | 0.07 KM |
| 24 Main Road | £ 675,000 | 0.07 KM |
| 22 Main Road | £ 375,000 | 0.07 KM |
| Charnwood | £ 794,000 | 0.09 KM |
| Twin Oaks | £ 1,200,000 | 0.09 KM |