13 Harris Street, Bingley
HU

13 Harris Street, Bingley

By Hunters

£ 150,000

Reviews

2 out of 5 stars

Hunters says ..

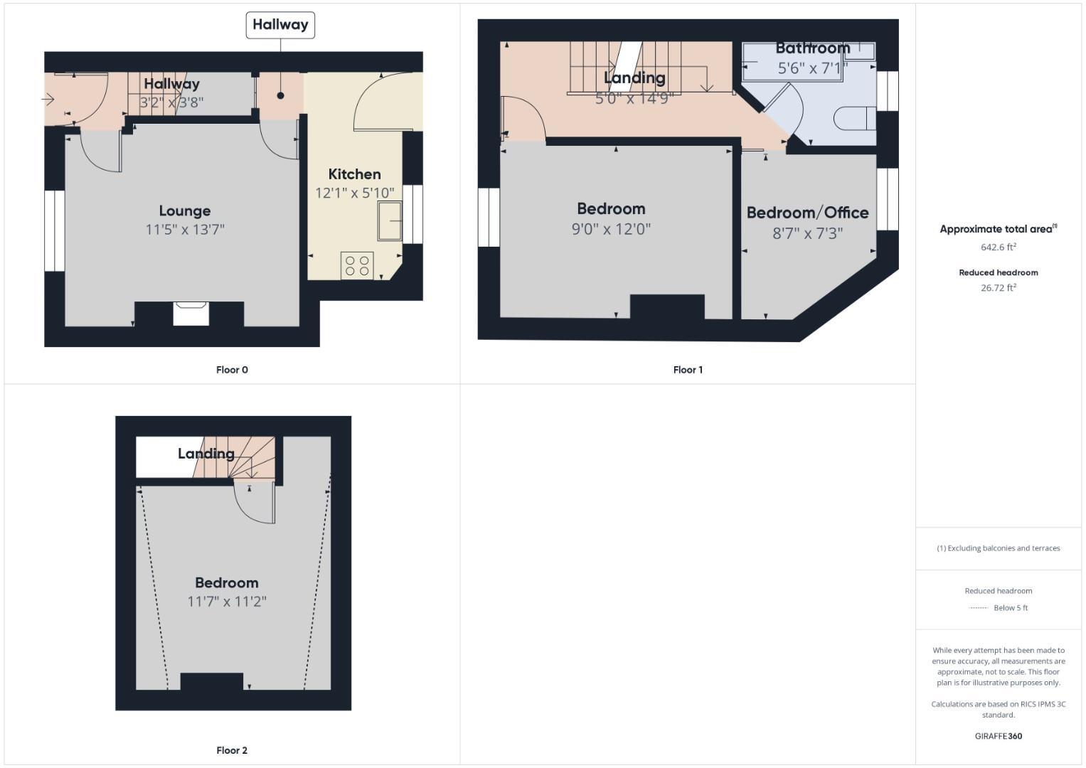
A chain free three bedroom terrace home, which offers a good degree of versatility and flexibility over three floors with the added benefit of a useful cellar space. The mature home comprises; entrance hall, lounge and kitchen to the ground floor. There is a cellar and the rear garden is...

Property Oracle says ..

This property is a 3-bedroom end of terrace house located in Bingley, Bradford. The property benefits from being close to local schools and transport links. The asking price of £150,000 is below the average price for the area, however, this may be reflective of the property needing some modernisation. The property has a small rear garden.

Therefore, we give this property 5 / 10. *Disclaimer: This is our option and does constitute a recommendation or financial advice. Do your own research. *

Price
7
Condition
6
Location
7
Land
3
Bedrooms
3
Bathrooms
1
Sqft (est)
642.60

The heatmap indicates the level of crime in the area. The color of the heatmap indicates the crime severity and recency.

Metrics Year-on-Year

Average area value
183,980.00 £
Decreased by 32.62 %
from 273,032.00 £
Est sale value
156,151.80 £
Decreased by 2.80 %
from 160,650.00 £
Average area rental value
963.00 £/mo
Increased by 11.20 %
from 866.00 £/mo
Est letting value
642.60 £/mo
from 0.00 £/mo
Est rental Yield
6.28 %
Increased by 64.83 %
from 3.81 %
Crime Rate
19.00 %
Unchanged by 0.00 %
from 19.00 %

Agent Activity

  • Hunters created the listing.

Nearby Schools

NameTypeOfstedDistance
Trinity 5 Rise Children'S CentreChildren's Centre0.21 KM
Trinity All Saints Cofe Va Primary SchoolVoluntary Aided SchoolGood0.37 KM
Myrtle Park PrimaryFoundation SchoolGood0.43 KM
Beckfoot Priestthorpe Primary School & NurseryAcademy Converter0.56 KM
Beckfoot SchoolAcademy ConverterOutstanding0.65 KM

Images

8bc873db-CAM04899G0-PR0084-STILL015.jpg CAM04899G0-PR0084-STILL003.jpg CAM04899G0-PR0084-STILL004.jpg CAM04899G0-PR0084-STILL001.jpg CAM04899G0-PR0084-STILL002.jpg CAM04899G0-PR0084-STILL008.jpg CAM04899G0-PR0084-STILL007.jpg CAM04899G0-PR0084-STILL006.jpg CAM04899G0-PR0084-STILL005.jpg CAM04899G0-PR0084-STILL009.jpg CAM04899G0-PR0084-STILL010.jpg CAM04899G0-PR0084-STILL011.jpg 4a51cd52-CAM04899G0-PR0084-STILL013.jpg 93296660-CAM04899G0-PR0084-STILL012.jpg

Nearby Streets

NameAverage PriceAverage SqftDistance
Harris Street £ 000.00 KM
Ashfield Court £ 000.00 KM
Back Unity Street North £ 000.00 KM
Back Beech Street £ 139,95000.00 KM
Back Sycamore Avenue £ 000.00 KM

Nearby Transport

NameNLCTLCDistance
Bingley8553BIY0.57 KM
Crossflatts8554CFL1.94 KM
Saltaire8561SAE4.81 KM
Shipley (Yorks)8347SHY6.77 KM
Frizinghall8556FZH7.64 KM

Nearby Listings

AddressPriceTypeScoreDistance
13 Harris Street, Bingley £ 150,000BUY5 / 100.00 KM
Leonards Place, Bingley £ 210,000BUY6 / 100.08 KM
Leonards Place, Bingley £ 215,000BUY6 / 100.08 KM
Merchants Court, Bingley £ 125,000BUY6 / 100.12 KM
Sycamore Avenue, Bingley, West Yorkshire, UK, BD16 £ 137,000BUY6 / 100.12 KM

Nearby Properties

AddressPriceDistance
11 Harris Street £ 104,3500.03 KM
7 Harris Street £ 157,0000.03 KM
13 Harris Street £ 95,0000.03 KM
1 Harris Street £ 100,0000.03 KM
19 Leonards Place £ 162,5000.08 KM