Cashes Green Road, Stroud
By R B Walters Estate Agents
£ 425,000
Reviews
3 out of 5 stars
R B Walters Estate Agents says ..
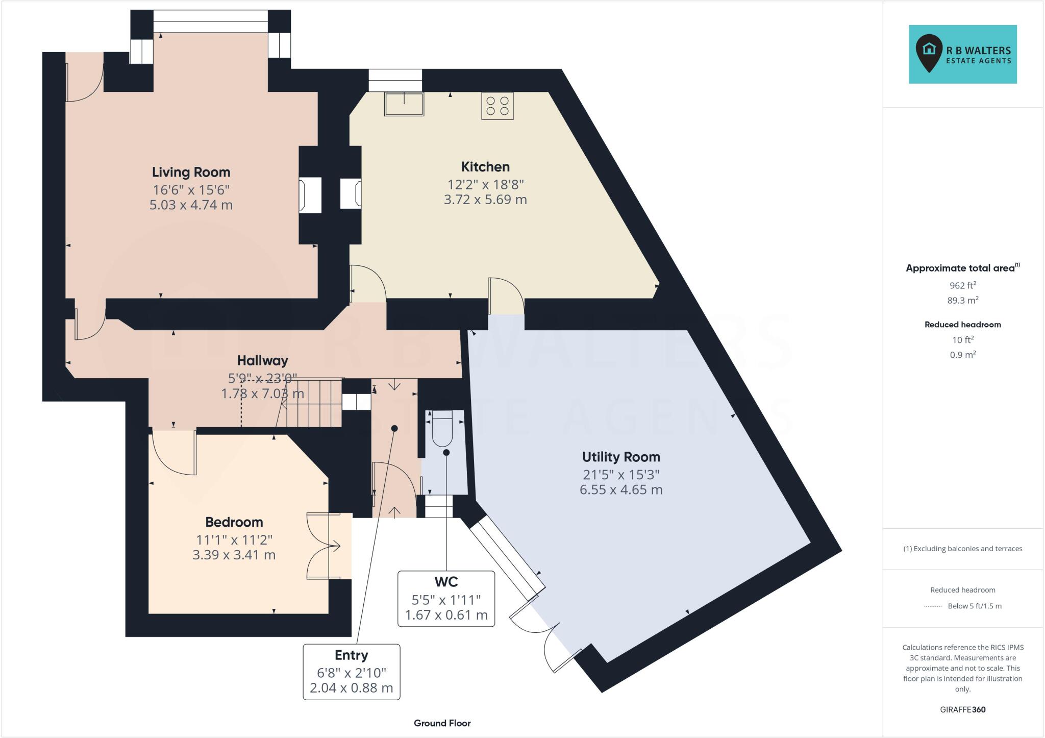
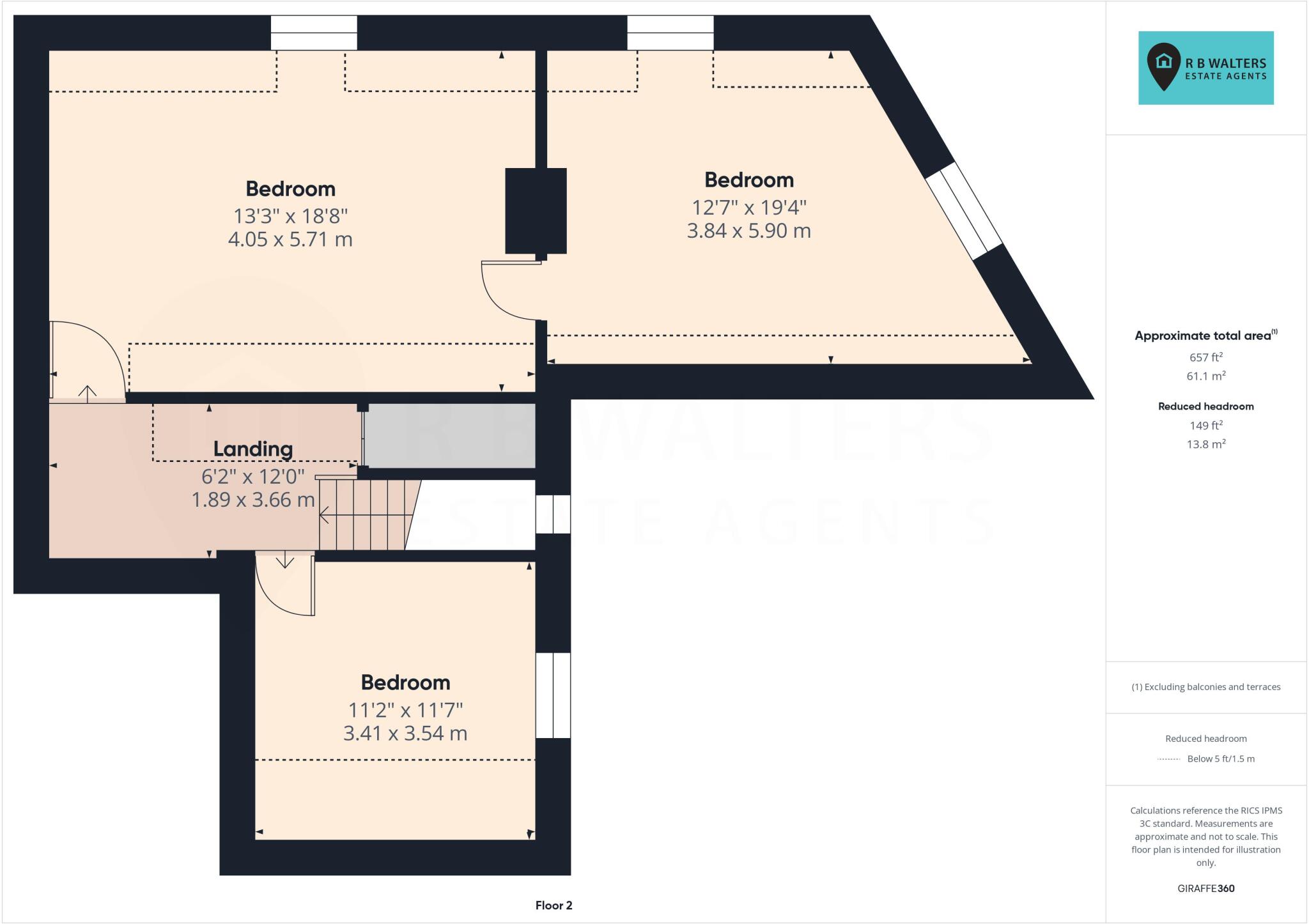
Extremely spacious and interesting home offering superb accommodation and a wealth of possibilities for anyone looking for an abundance of space in a convenient location. With over 2000 sq ft of living space across three floors this superb Victorian home retains plenty of character and charm b...
Property Oracle says ..
This is a 5-bedroom semi-detached house on Cashes Green Road, Stroud. The property offers a blend of traditional features and modern amenities. The house includes two bathrooms, a well-maintained kitchen, and multiple reception rooms. While generally in good condition, some areas could benefit from minor updates. The property features a garden and a gravel area, providing outdoor space. The location is convenient, with nearby schools and transportation links. The asking price of £425,000 seems reasonable given the property’s size, location, and features.
Therefore, we give this property 6 / 10. *Disclaimer: This is our option and does constitute a recommendation or financial advice. Do your own research. *
- Price
- 7
- Condition
- 7
- Location
- 7
- Land
- 6
- Bedrooms
- 5
- Bathrooms
- 2
- Sqft (est)
- 961.22
The heatmap indicates the level of crime in the area. The color of the heatmap indicates the crime severity and recency.
Metrics Year-on-Year
- Average area value
- 348,333.00 £Increased by 13.97 %
- Est sale value
- 394,100.20 £Increased by 18.84 %
- Average area rental value
- 1,011.00 £/moDecreased by 7.25 %
- Est letting value
- 961.22 £/moUnchanged by 0.00 %
- Est rental Yield
- 3.48 %Decreased by 18.69 %
- Crime Rate
- 31.00 %Unchanged by 0.00 %
Agent Activity
R B Walters Estate Agents created the listing.
Nearby Schools
| Name | Type | Ofsted | Distance |
|---|---|---|---|
| St Matthew'S Church Of England Primary School | Academy Sponsor Led | 0.44 KM | |
| Marling School | Academy Converter | Outstanding | 0.67 KM |
| Archway School | Community School | Requires improvement | 0.93 KM |
| Stroud High School | Academy Converter | 0.99 KM | |
| Five Ways Children'S Centre | Children's Centre | 1.11 KM |
Images
Nearby Streets
| Name | Average Price | Average Sqft | Distance |
|---|---|---|---|
| Baytree Square South | £ 0 | 0 | 0.00 KM |
| Baytree Square North | £ 0 | 0 | 0.00 KM |
| Redlers Waterside | £ 0 | 0 | 0.00 KM |
| Meadow Lane (West) | £ 300,000 | 0 | 0.00 KM |
| Stanton Road | £ 0 | 0 | 0.00 KM |
Nearby Transport
| Name | NLC | TLC | Distance |
|---|---|---|---|
| Stroud (Gloucs) | 4771 | STD | 2.40 KM |
| Stonehouse | 4770 | SHU | 4.27 KM |
Nearby Listings
| Address | Price | Type | Score | Distance |
|---|---|---|---|---|
| Cashes Green Road, Stroud | £ 425,000 | BUY | 6 / 10 | 0.00 KM |
| Westward Road, Ebley, Stroud, Gloucestershire, GL5 | £ 230,000 | BUY | 7 / 10 | 0.05 KM |
| Westward Road, Ebley, Stroud, Gloucestershire, GL5 | £ 230,000 | BUY | 6 / 10 | 0.05 KM |
| Westward Road, Ebley, Stroud, Gloucestershire, GL5 | £ 220,000 | BUY | 6 / 10 | 0.09 KM |
| Bridge Street, Stroud | £ 250,000 | BUY | 7 / 10 | 0.09 KM |
Nearby Properties
| Address | Price | Distance |
|---|---|---|
| 10 Westward Road | £ 232,500 | 0.05 KM |
| 4 Westward Road | £ 147,000 | 0.05 KM |
| 6 Westward Road | £ 120,000 | 0.06 KM |
| 12 Westward Road | £ 230,000 | 0.06 KM |
| 10 Bridgeside | £ 142,500 | 0.11 KM |