Ridge Lane, Newnham, Hook, Hampshire, RG27
By Knight Frank
£ 2,650,000
Reviews
4 out of 5 stars
Knight Frank says ..
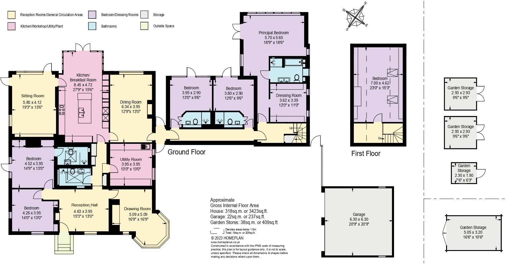
A delightful, Grade II Listed former Victorian lodge that has been extended and updated and enjoys a lovely semi-rural location with grounds extending to about 14 acres. This elegant country home was built in approximately 1899 and originally formed part of the Tylney Hall Estate built for Sir L...
Property Oracle says ..
This is a substantial detached property located in a sought-after area of Hampshire. The property offers spacious and well-presented accommodation, with six bedrooms and five bathrooms. The property is in excellent condition and benefits from a large plot size, with a well-maintained garden and grounds. The property is conveniently located for local amenities and transport links, with Hook train station located just 2.61 KM away. The property is listed at £2,650,000, which is significantly higher than the average price for similar properties in the area. However, the property is in excellent condition and benefits from a large plot size, which may justify the higher price. Overall, this is a desirable property that would make an ideal family home.
Therefore, we give this property 8 / 10. *Disclaimer: This is our option and does constitute a recommendation or financial advice. Do your own research. *
- Price
- 6
- Condition
- 9
- Location
- 8
- Land
- 9
- Bedrooms
- 6
- Bathrooms
- 5
- Sqft (est)
- 278.00
The heatmap indicates the level of crime in the area. The color of the heatmap indicates the crime severity and recency.
Metrics Year-on-Year
- Average area value
- 1,258,750.00 £Increased by 38.62 %
- Est sale value
- 163,742.00 £Decreased by 3.12 %
- Average area rental value
- 2,017.00 £/moDecreased by 42.17 %
- Est letting value
- 0.00 £/moDecreased by 100.00 %
- Est rental Yield
- 1.92 %Decreased by 58.35 %
- Crime Rate
- 2.00 %Unchanged by 0.00 %
Agent Activity
Knight Frank created the listing.
Nearby Schools
| Name | Type | Ofsted | Distance |
|---|---|---|---|
| Whitewater Church Of England Primary School | Voluntary Controlled School | Requires improvement | 2.17 KM |
| Hook Junior School | Community School | Outstanding | 2.94 KM |
| Hook Infant School | Community School | Outstanding | 2.94 KM |
| Robert May'S School | Academy Converter | Good | 4.87 KM |
| Sherfield School | Other Independent School | 5.11 KM |
Images
Nearby Streets
| Name | Average Price | Average Sqft | Distance |
|---|---|---|---|
| Ridge Lane | £ 0 | 0 | 0.00 KM |
| Church Road | £ 0 | 0 | 0.00 KM |
| Old School Road | £ 500,000 | 0 | 0.00 KM |
| A30 | £ 0 | 0 | 0.00 KM |
| A30 | £ 0 | 0 | 0.00 KM |
Nearby Transport
| Name | NLC | TLC | Distance |
|---|---|---|---|
| Hook | 5523 | HOK | 2.61 KM |
| Winchfield | 5528 | WNF | 8.64 KM |
| Bramley (Hampshire) | 5500 | BMY | 9.93 KM |
Nearby Listings
| Address | Price | Type | Score | Distance |
|---|---|---|---|---|
| Ridge Lane, Newnham, Hook, Hampshire, RG27 | £ 2,650,000 | BUY | 8 / 10 | 0.00 KM |
| Tylney Lane, Hook, RG27 | £ 1,295,000 | BUY | 7 / 10 | 0.37 KM |
| Tylney Lane, Newnham, Hook, Hampshire, RG27 | £ 1,250,000 | BUY | 7 / 10 | 0.39 KM |
| Newnham Road, Newnham, Hook, Hampshire, RG27 | £ 750,000 | BUY | 6 / 10 | 0.50 KM |
| Newnham Road, Newnham, Hook, Hampshire, RG27 | £ 750,000 | BUY | 7 / 10 | 0.51 KM |
Nearby Properties
| Address | Price | Distance |
|---|---|---|
| Elm Cottage | £ 975,000 | 0.25 KM |
| Newnham House | £ 2,800,000 | 0.25 KM |
| Tylney Lodge | £ 1,800,000 | 0.26 KM |
| Newnham Edge | £ 1,605,000 | 0.39 KM |
| Bridleway | £ 885,000 | 0.39 KM |