Barnard Marcus says ..
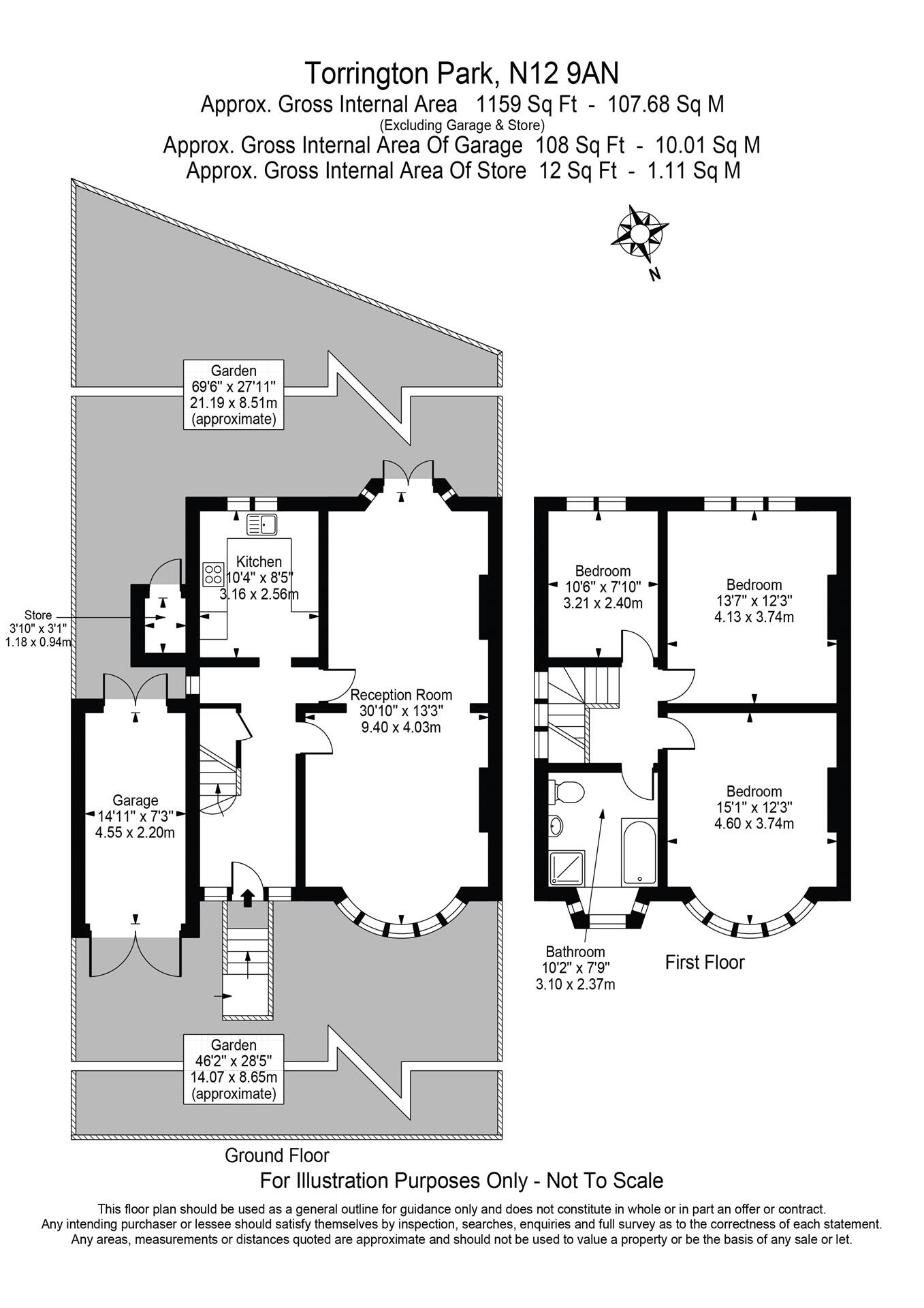
Situated on the sought-after Torrington Park in North Finchley, this three-bedroom semi-detached house offers a fantastic opportunity for buyers looking to create a spacious family home in a desirable location.
Property Oracle says ..
Therefore, we give this property 6 / 10. *Disclaimer: This is our option and does constitute a recommendation or financial advice. Do your own research. *
- Price
- 5
- Condition
- 4
- Location
- 8
- Land
- 7
- Bedrooms
- 3
- Bathrooms
- 1
- Sqft (est)
- 1,117.00
The heatmap indicates the level of crime in the area. The color of the heatmap indicates the crime severity and recency.
Metrics Year-on-Year
- Average area value
- 646,249.00 £Increased by 10.12 %
- Est sale value
- 990,779.00 £Increased by 66.42 %
- Average area rental value
- 2,289.00 £/moIncreased by 2.55 %
- Est letting value
- 3,351.00 £/moIncreased by 50.00 %
- Est rental Yield
- 4.25 %Decreased by 6.80 %
- Crime Rate
- 0.00 %
from 586,863.00 £
from 595,361.00 £
from 2,232.00 £/mo
from 2,234.00 £/mo
from 4.56 %
from 0.00 %
Agent Activity
Barnard Marcus created the listing.
Nearby Schools
| Name | Type | Ofsted | Distance |
|---|---|---|---|
| Dwight School London | Other Independent School | 0.55 KM | |
| Wren Academy Finchley | Academy Sponsor Led | Outstanding | 0.70 KM |
| The Compton School | Academy Converter | Outstanding | 0.81 KM |
| Woodhouse College | Academy 16-19 Converter | Outstanding | 0.84 KM |
| St John'S Cofe Junior Mixed And Infant School | Voluntary Aided School | Outstanding | 0.85 KM |
Images
Nearby Streets
| Name | Average Price | Average Sqft | Distance |
|---|---|---|---|
| Leadbeaters Close | £ 0 | 0 | 0.00 KM |
| Church Close | £ 0 | 0 | 0.00 KM |
| Queen's Parade Close | £ 0 | 0 | 0.00 KM |
| St Ninian's Court | £ 302,500 | 0 | 0.00 KM |
| Lawrence Campe Close | £ 0 | 0 | 0.00 KM |
Nearby Transport
| Name | NLC | TLC | Distance |
|---|---|---|---|
| New Southgate | 6019 | NSG | 2.28 KM |
| Oakleigh Park | 6020 | OKL | 2.34 KM |
| New Barnet | 6018 | NBA | 3.69 KM |
| Bowes Park | 6027 | BOP | 4.86 KM |
| Alexandra Palace | 6025 | AAP | 5.22 KM |
Nearby Listings
| Address | Price | Type | Score | Distance |
|---|---|---|---|---|
| Torrington Park, London | £ 1,100,000 | BUY | 6 / 10 | 0.00 KM |
| Friern Park, London | £ 316,000 | BUY | 6 / 10 | 0.13 KM |
| Whitten Lodge, 129 Torrington Park, North Finchley, N12 | £ 500,000 | BUY | 7 / 10 | 0.15 KM |
| Ullswater Court, Holders Hill Road, NW4 | £ 1,000,000 | BUY | 5 / 10 | 0.16 KM |
| Torrington Park, North Finchley | £ 450,000 | BUY | 5 / 10 | 0.17 KM |
Nearby Properties
| Address | Price | Distance |
|---|---|---|
| 133c Torrington Park | £ 840,000 | 0.00 KM |
| 159 Torrington Park | £ 470,000 | 0.00 KM |
| 133 Ashurst Road | £ 394,500 | 0.08 KM |
| 131 Ashurst Road | £ 392,500 | 0.08 KM |
| 143 Ashurst Road | £ 618,000 | 0.08 KM |