BR
Plot 1, St Peters Gardens, Great Moulton, Norfolk
By Brown & Co
£ 650,000
Reviews
3 out of 5 stars
Brown & Co says ..
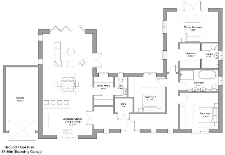
The O'Sullivan is an attractive detached bungalow situated within St Peters Gardens, an exclusive, thoughtfully planned development of just eight homes, ideally located for easy access to Long Stratton and its wide range of amenities. Each home has been carefully positioned to maximise space and ...
Property Oracle says ..
Therefore, we give this property 6 / 10. *Disclaimer: This is our option and does constitute a recommendation or financial advice. Do your own research. *
- Price
- 5
- Condition
- 9
- Location
- 7
- Land
- 6
- Bedrooms
- 3
- Bathrooms
- 2
- Sqft (est)
- 1,697.36
The heatmap indicates the level of crime in the area. The color of the heatmap indicates the crime severity and recency.
Metrics Year-on-Year
- Average area value
- 262,833.00 £Decreased by 38.15 %
- Est sale value
- 852,074.72 £Increased by 31.41 %
- Average area rental value
- 1,350.00 £/moIncreased by 3.85 %
- Est letting value
- 3,394.72 £/moIncreased by 100.00 %
- Est rental Yield
- 6.16 %Increased by 67.85 %
- Crime Rate
- 47.00 %Unchanged by 0.00 %
from 424,924.00 £
from 648,391.52 £
from 1,300.00 £/mo
from 1,697.36 £/mo
from 3.67 %
from 47.00 %
Agent Activity
Brown & Co created the listing.
Nearby Schools
| Name | Type | Ofsted | Distance |
|---|---|---|---|
| Aslacton Primary School | Academy Converter | Good | 1.79 KM |
| Forncett St Peter Church Of England Voluntary Aided Primary School | Voluntary Aided School | Outstanding | 2.42 KM |
| Tivetshall Community Primary School | Academy Converter | Good | 3.81 KM |
| Manor Field Infant And Nursery School | Academy Converter | Good | 4.62 KM |
| Long Stratton Area Children'S Centre | Children's Centre | 4.63 KM |
Images
Nearby Streets
| Name | Average Price | Average Sqft | Distance |
|---|---|---|---|
| Gore Lane | £ 0 | 0 | 0.00 KM |
Nearby Listings
| Address | Price | Type | Score | Distance |
|---|---|---|---|---|
| Plot 1, St Peters Gardens, Great Moulton, Norfolk | £ 650,000 | BUY | 6 / 10 | 0.00 KM |
| St Peters Gardens, Great Moulton | £ 595,000 | BUY | 7 / 10 | 0.00 KM |
| The Wexford, St Peters Gardens, Great Moulton, Norfolk | £ 675,000 | BUY | 6 / 10 | 0.00 KM |
| Plot 3, St Peters Gardens, Great Moulton, Norfolk | £ 650,000 | BUY | 6 / 10 | 0.00 KM |
| Firth Way, Great Moulton, Norwich, Norfolk, NR15 | £ 650,000 | BUY | 6 / 10 | 0.14 KM |
Nearby Properties
| Address | Price | Distance |
|---|---|---|
| 4 Frith Way | £ 159,500 | 0.18 KM |
| 10 Frith Way | £ 215,000 | 0.18 KM |
| 6 Orchard Crescent | £ 124,950 | 0.19 KM |
| 10 Orchard Crescent | £ 195,000 | 0.19 KM |
| 8 Orchard Crescent | £ 156,000 | 0.19 KM |