Northorpe Road, Donington
By Ark Property Centre
£ 220,000
Reviews
2 out of 5 stars
Ark Property Centre says ..
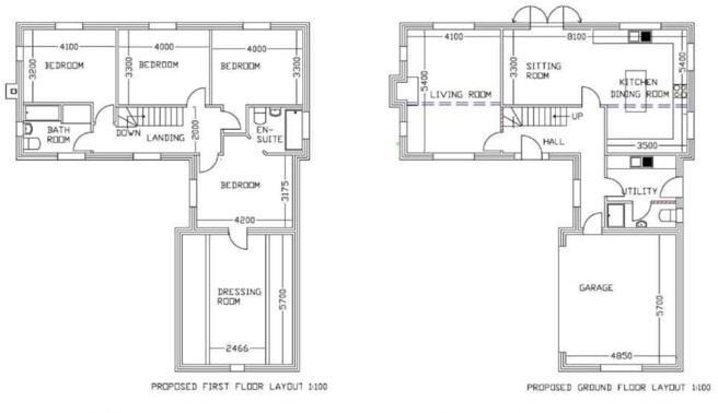
Proposed dwelling with planning in place for the knock down of existing workshop and yard. The site also benefits from a current operators licence. Flexible use as either an ongoing business/yard or conversion to dwelling. Power and water connected. 4 bedroom...
Property Oracle says ..
This property represents a unique opportunity to acquire a plot of land in Donington with the potential for development. While the existing structures on the land appear to be in poor condition, the generous plot size and location within a reasonable distance of local amenities make it an attractive prospect. The listing price seems competitive given the average property prices in the area and the potential for a new build. The presence of nearby schools is also a positive factor for families. However, prospective buyers should be aware of the need for significant investment to develop the land and construct a dwelling. The property is located on Northorpe Road, which appears to be a mix of residential and potentially some commercial or agricultural properties. This could be a consideration for some buyers depending on their preferences.
Therefore, we give this property 5 / 10. *Disclaimer: This is our option and does constitute a recommendation or financial advice. Do your own research. *
- Price
- 8
- Condition
- 1
- Location
- 5
- Land
- 7
- Bedrooms
- 4
- Bathrooms
- 2
- Sqft (est)
- 1,629.00
The heatmap indicates the level of crime in the area. The color of the heatmap indicates the crime severity and recency.
Metrics Year-on-Year
- Average area value
- 291,975.00 £Decreased by 0.13 %
- Est sale value
- 433,314.00 £Increased by 20.91 %
- Average area rental value
- 650.00 £/moDecreased by 26.39 %
- Est letting value
- 0.00 £/mo
- Est rental Yield
- 2.67 %Decreased by 26.24 %
- Crime Rate
- 11.00 %Unchanged by 0.00 %
Agent Activity
Ark Property Centre created the listing.
Nearby Schools
| Name | Type | Ofsted | Distance |
|---|---|---|---|
| The Thomas Cowley High School | Academy Converter | Good | 0.86 KM |
| The Donington Cowley Endowed Primary School | Voluntary Controlled School | Good | 1.23 KM |
| Bicker Preparatory School And Early Years | Other Independent School | Good | 2.92 KM |
| Quadring Cowley & Brown'S Primary School | Voluntary Controlled School | Good | 3.35 KM |
| Gosberton House Academy | Academy Special Converter | Outstanding | 6.36 KM |
Images
Nearby Streets
| Name | Average Price | Average Sqft | Distance |
|---|---|---|---|
| Day's Lane | £ 184,950 | 0 | 0.00 KM |
| School Lane | £ 160,000 | 0 | 0.00 KM |
| Bakewell Street | £ 209,950 | 0 | 0.00 KM |
| Bass Court | £ 305,000 | 0 | 0.00 KM |
| Kilby Court | £ 0 | 0 | 0.00 KM |
Nearby Transport
| Name | NLC | TLC | Distance |
|---|---|---|---|
| Swineshead | 6228 | SWE | 6.68 KM |
Nearby Listings
| Address | Price | Type | Score | Distance |
|---|---|---|---|---|
| Northorpe Road, Donington | £ 220,000 | BUY | 5 / 10 | 0.00 KM |
| Holyrood Close, Donington, Spalding, PE11 | £ 269,950 | BUY | 7 / 10 | 0.18 KM |
| Church Lane, Donington | £ 330,000 | BUY | 6 / 10 | 0.55 KM |
| Church Street, Donington, Spalding | £ 250,000 | BUY | 5 / 10 | 0.59 KM |
| Church Street, Donington, Spalding | £ 370,000 | BUY | 5 / 10 | 0.68 KM |
Nearby Properties
| Address | Price | Distance |
|---|---|---|
| 31 Northorpe Road | £ 115,000 | 0.09 KM |
| 20 Northorpe Road | £ 159,000 | 0.09 KM |
| 30 Northorpe Road | £ 145,000 | 0.09 KM |
| 6 Northorpe Road | £ 273,000 | 0.09 KM |
| 62a Northorpe Road | £ 141,000 | 0.09 KM |