Harepath Road, Seaton, Devon, EX12
By Fortnam Smith & Banwell
£ 210,000
Reviews
3 out of 5 stars
Fortnam Smith & Banwell says ..
The Squeeze is a beautifully presented and unique property situated in a tucked away position, just a short walk from the town centre and seafront.
Property Oracle says ..
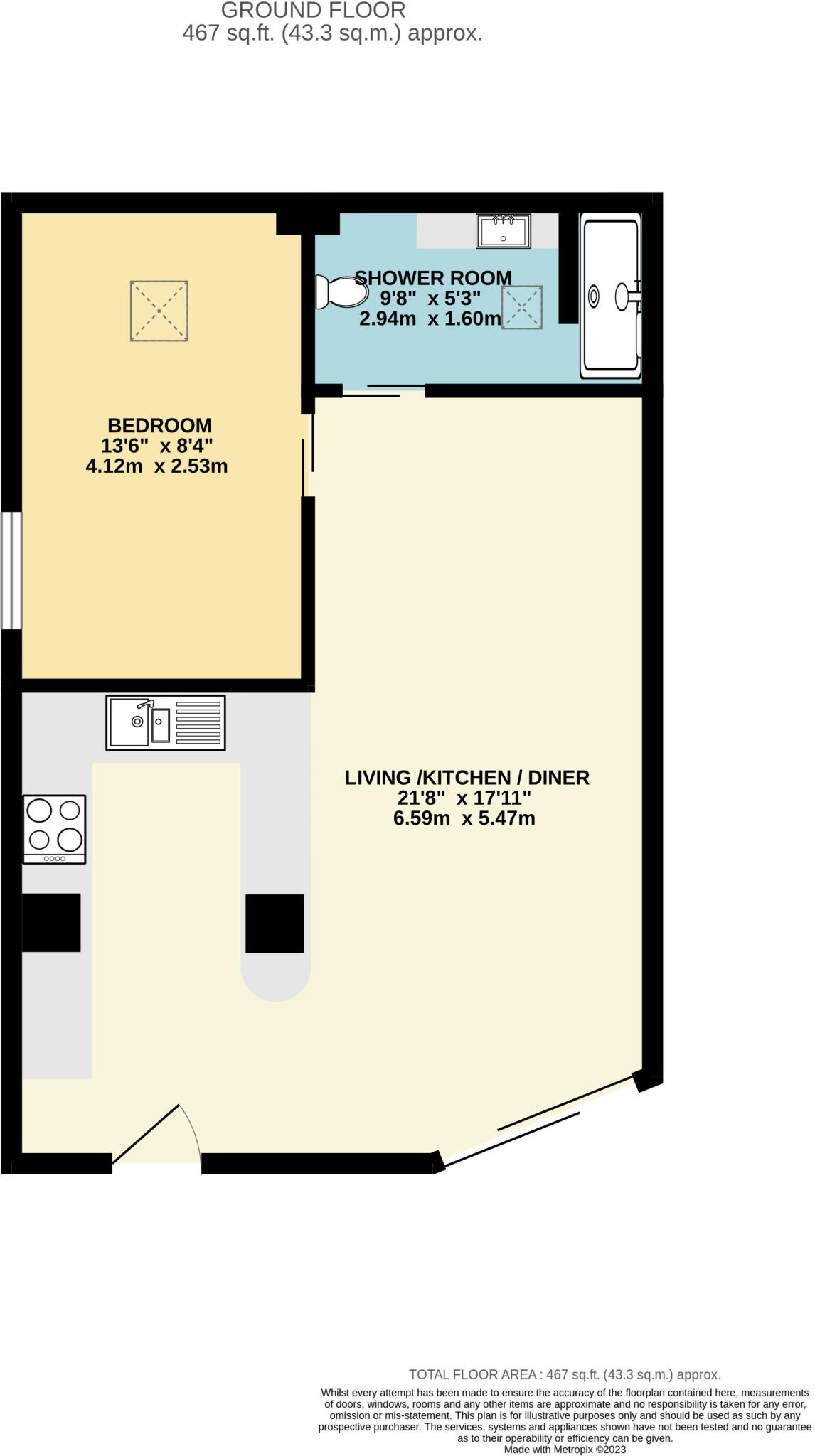
This one-bedroom bungalow in Seaton, Devon, is presented in immaculate condition, boasting a modern and stylish interior. The property’s open-plan living space is bright and well-designed. The kitchen is contemporary, incorporating modern appliances and a sleek design. The bathroom is equally well-appointed. The property includes a modest, well-designed patio area. Although the size of the plot is small, the garden is thoughtfully landscaped, enhancing the property’s appeal. The location in Seaton offers convenience, with proximity to the town center and seafront. Nearby primary schools are a significant advantage for families. However, the absence of readily accessible public transport information requires consideration. While the property’s list price seems competitive within its immediate area, the lack of substantial comparable sales data limits a definitive judgment of its value. More detailed information about the property’s dimensions and the availability of comparable properties with detailed square footage information would enable a more precise market analysis.
Therefore, we give this property 6 / 10. *Disclaimer: This is our option and does constitute a recommendation or financial advice. Do your own research. *
- Price
- 7
- Condition
- 9
- Location
- 7
- Land
- 4
- Bedrooms
- 1
- Bathrooms
- 1
- Sqft (est)
- 466.08
The heatmap indicates the level of crime in the area. The color of the heatmap indicates the crime severity and recency.
Metrics Year-on-Year
- Average area value
- 313,952.00 £Increased by 24.10 %
- Est sale value
- 146,815.20 £Increased by 16.24 %
- Average area rental value
- 876.00 £/moIncreased by 10.19 %
- Est letting value
- 0.00 £/mo
- Est rental Yield
- 3.35 %Decreased by 11.14 %
- Crime Rate
- 38.00 %Unchanged by 0.00 %
Agent Activity
Fortnam Smith & Banwell created the listing.
Nearby Schools
| Name | Type | Ofsted | Distance |
|---|---|---|---|
| Axe Valley Children'S Centre | Children's Centre | 0.34 KM | |
| Seaton Primary School | Community School | Outstanding | 0.51 KM |
| Colyton Grammar School | Academy Converter | 2.19 KM | |
| Beer Church Of England Primary School | Academy Converter | Requires improvement | 3.15 KM |
| Colyton Primary Academy | Academy Sponsor Led | 3.52 KM |
Images
Nearby Streets
| Name | Average Price | Average Sqft | Distance |
|---|---|---|---|
| Stock Lane | £ 0 | 0 | 0.00 KM |
| Greenway | £ 365,000 | 0 | 0.00 KM |
| Kings Court | £ 245,000 | 0 | 0.00 KM |
| Gravel Lane | £ 0 | 0 | 0.00 KM |
| Fremington Road | £ 850,000 | 0 | 0.00 KM |
Nearby Listings
| Address | Price | Type | Score | Distance |
|---|---|---|---|---|
| Harepath Road, Seaton, Devon, EX12 | £ 210,000 | BUY | 6 / 10 | 0.00 KM |
| Harepath Road, Seaton, Devon, EX12 | £ 325,000 | BUY | 7 / 10 | 0.03 KM |
| Harepath Road, Seaton, Devon, EX12 | £ 295,000 | BUY | 6 / 10 | 0.06 KM |
| Seaton Down Road, Seaton, Devon, EX12 | £ 220,000 | BUY | 6 / 10 | 0.07 KM |
| Seaton Down Road, Seaton, Devon, EX12 | £ 170,000 | BUY | Unknown | 0.08 KM |
Nearby Properties
| Address | Price | Distance |
|---|---|---|
| 35 Harepath Road | £ 162,000 | 0.01 KM |
| 27 Harepath Road | £ 400,000 | 0.01 KM |
| 32 Harepath Road | £ 175,000 | 0.03 KM |
| 28 Harepath Road | £ 145,000 | 0.03 KM |
| 18 Harepath Road | £ 190,000 | 0.03 KM |