Ludgate Close, New Rossington, Doncaster, DN11
By The Property Hive
£ 165,000
Reviews
3 out of 5 stars
The Property Hive says ..
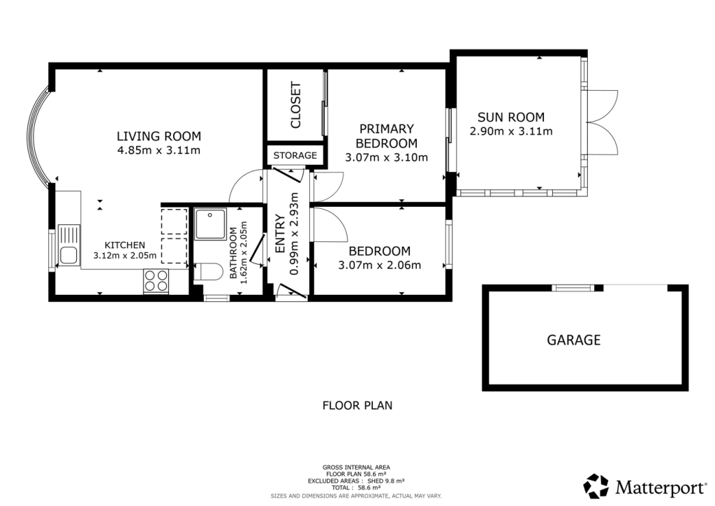
Situated on Ludgate Close in Rossington, this well-presented two-bedroom semi-detached bungalow offers comfortable single-level living in a popular residential area. The property features a welcoming front garden, driveway and garage, providing ample parking and storage space. Inside, there is...
Property Oracle says ..
This is a two-bedroom semi-detached bungalow located in New Rossington, Doncaster. The property features a bathroom, a garden with a shed, and is situated near local schools and amenities. While the property is in a fair condition, it would benefit from some modernisation, particularly in the kitchen and bathroom. The asking price of £165,000 appears reasonable given the location and features, making it a potentially attractive option for first-time buyers or those looking to downsize. The property is located close to several schools, including Rossington All Saints Academy, which has a ‘Good’ Ofsted rating.
Therefore, we give this property 6 / 10. *Disclaimer: This is our option and does constitute a recommendation or financial advice. Do your own research. *
- Price
- 7
- Condition
- 5
- Location
- 6
- Land
- 7
- Bedrooms
- 2
- Bathrooms
- 1
The heatmap indicates the level of crime in the area. The color of the heatmap indicates the crime severity and recency.
Metrics Year-on-Year
- Average area value
- 230,555.00 £Decreased by 9.92 %
- Average area rental value
- 928.00 £/moIncreased by 13.87 %
- Est rental Yield
- 4.83 %Increased by 26.44 %
- Crime Rate
- 8.00 %Unchanged by 0.00 %
Agent Activity
The Property Hive created the listing.
Nearby Schools
| Name | Type | Ofsted | Distance |
|---|---|---|---|
| Rossington All Saints Academy | Academy Sponsor Led | Good | 0.17 KM |
| Rossington Tornedale Infant School | Community School | Good | 0.79 KM |
| St Joseph'S School, A Catholic Voluntary Academy | Academy Sponsor Led | Good | 0.91 KM |
| Rossington St Michael'S Cofe Primary School | Academy Sponsor Led | Good | 1.33 KM |
| Rossington Children'S Centre | Children's Centre | 1.49 KM |
Images
Nearby Streets
| Name | Average Price | Average Sqft | Distance |
|---|---|---|---|
| Hazel Grove | £ 170,000 | 0 | 0.00 KM |
| Willow Lane | £ 272,250 | 0 | 0.00 KM |
| St. Michaels Avenue | £ 0 | 0 | 0.00 KM |
| Saint Michaels Avenue | £ 289,950 | 0 | 0.00 KM |
| Keepers Close | £ 0 | 0 | 0.00 KM |
Nearby Listings
| Address | Price | Type | Score | Distance |
|---|---|---|---|---|
| Ludgate Close, New Rossington, Doncaster, DN11 | £ 165,000 | BUY | 6 / 10 | 0.00 KM |
| Bond Street, New Rossington, Doncaster | £ 170,000 | BUY | 6 / 10 | 0.03 KM |
| Ludgate Close, New Rossington, Doncaster | £ 170,000 | BUY | 7 / 10 | 0.06 KM |
| Ludgate Close, Rossington, DN11 0 | £ 180,000 | BUY | 7 / 10 | 0.07 KM |
| Farringdon Drive, New Rossington, Doncaster | £ 180,000 | BUY | 6 / 10 | 0.09 KM |
Nearby Properties
| Address | Price | Distance |
|---|---|---|
| 9 Ludgate Close | £ 84,500 | 0.03 KM |
| 1 Ludgate Close | £ 113,000 | 0.03 KM |
| 5 Ludgate Close | £ 80,000 | 0.03 KM |
| 15 Ludgate Close | £ 102,500 | 0.03 KM |
| 42 Bond Street | £ 165,000 | 0.06 KM |