St. James Road, Leicester
By Knightsbridge Estate Agents & Valuers
£ 385,000
Reviews
2 out of 5 stars
Knightsbridge Estate Agents & Valuers says ..
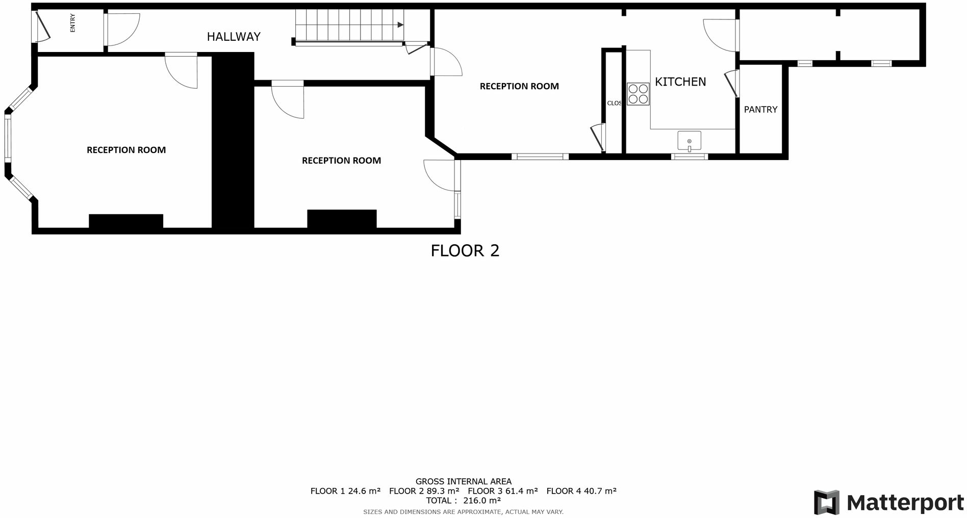
A FOUR double bedroom terrace home with THREE RECEPTION ROOMS.
Property Oracle says ..
This property is a 4-bedroom house located in Stoneygate, Leicester. The area benefits from being close to several schools, including Medway Community Primary School (rated Good by Ofsted) and is within 1.46km of Leicester train station. The property itself is a period property, showing features such as stained glass windows and original wooden flooring. However, it is in need of significant modernisation and renovation. The images show that the property requires updating throughout. The small garden is also in need of attention. While the location is desirable, the condition of the property and lack of plot size, compared to the list price, may make it less attractive to some buyers. The average price per sqft in the area is £299, and this property is significantly larger than average. However, considering the required renovation work, the list price may be considered high by some.
Therefore, we give this property 4 / 10. *Disclaimer: This is our option and does constitute a recommendation or financial advice. Do your own research. *
- Price
- 5
- Condition
- 4
- Location
- 8
- Land
- 2
- Bedrooms
- 4
- Bathrooms
- 1
- Sqft (est)
- 2,325.00
The heatmap indicates the level of crime in the area. The color of the heatmap indicates the crime severity and recency.
Metrics Year-on-Year
- Average area value
- 300,000.00 £Decreased by 8.89 %
- Est sale value
- 969,525.00 £Increased by 38.54 %
- Average area rental value
- 871.00 £/moDecreased by 7.24 %
- Est letting value
- 2,325.00 £/mo
- Est rental Yield
- 3.48 %Increased by 1.75 %
- Crime Rate
- 16.00 %Unchanged by 0.00 %
Agent Activity
Knightsbridge Estate Agents & Valuers created the listing.
Nearby Schools
| Name | Type | Ofsted | Distance |
|---|---|---|---|
| Mayfield Sure Start Children'S Centre | Children's Centre Linked Site | 0.18 KM | |
| Medway Community Primary School | Community School | Good | 0.30 KM |
| St Crispin'S School | Other Independent School | 0.62 KM | |
| Al-Islamia Institute For Education | Other Independent School | Inadequate | 0.67 KM |
| Uplands Infant School | Academy Converter | 0.70 KM |
Images
Nearby Streets
| Name | Average Price | Average Sqft | Distance |
|---|---|---|---|
| Lonsdale Street | £ 0 | 0 | 0.00 KM |
| Victoria Gardens | £ 220,000 | 0 | 0.00 KM |
| Oakfield Road | £ 0 | 0 | 0.00 KM |
| Darley Street | £ 0 | 0 | 0.00 KM |
| Oxendon Street | £ 325,000 | 0 | 0.00 KM |
Nearby Transport
| Name | NLC | TLC | Distance |
|---|---|---|---|
| Leicester | 1947 | LEI | 1.46 KM |
| South Wigston | 1949 | SWS | 5.38 KM |
| Syston | 1900 | SYS | 8.33 KM |
Nearby Listings
| Address | Price | Type | Score | Distance |
|---|---|---|---|---|
| St. James Road, Leicester | £ 385,000 | BUY | 4 / 10 | 0.00 KM |
| Tennyson Street, Highfields, Leicester, LE2 | £ 270,000 | BUY | Unknown | 0.02 KM |
| St. James Road, Leicester | £ 525,000 | BUY | 7 / 10 | 0.05 KM |
| Chaucer Street, Leicester, LE2 | £ 220,000 | BUY | 5 / 10 | 0.07 KM |
| St James Road, Stoneygate, Leicester, LE2 | £ 120,000 | BUY | 4 / 10 | 0.08 KM |
Nearby Properties
| Address | Price | Distance |
|---|---|---|
| 20 Chaucer Street | £ 79,950 | 0.07 KM |
| 32 Chaucer Street | £ 212,000 | 0.07 KM |
| 27 Chaucer Street | £ 125,000 | 0.07 KM |
| 24 Chaucer Street | £ 76,000 | 0.07 KM |
| 9 Chaucer Street | £ 235,000 | 0.07 KM |