Chewton Rose says ..
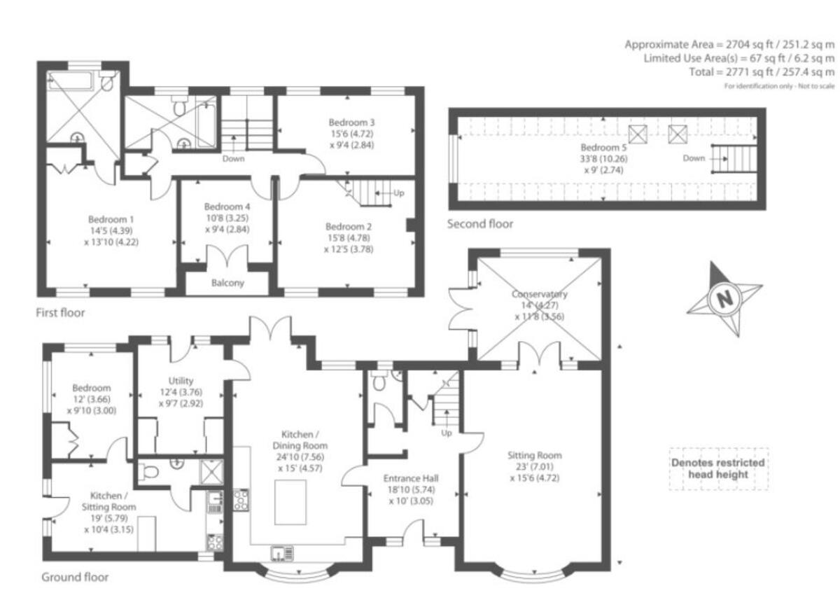
A five bedroom semi-detached property in Warfield with land and planning permission to develop. The property provides accommodation, with gated entrance, garage and a garden backing onto field
Property Oracle says ..
This five-bedroom, three-bathroom property situated on Bracknell Road in Winkfield and Cranbourne, Bracknell Forest, Berkshire, presents a compelling proposition for buyers seeking a substantial family home with ample outdoor space. The property’s attractive brick exterior and well-maintained garden create a welcoming first impression. The interior reveals generously sized rooms. The kitchen, while functional, might benefit from a modern update. Similarly, the bathrooms, though clean, show a traditional style. The substantial plot size is a major highlight, offering plenty of space for family life, gardening, and potential future development subject to planning permission. The location offers a good balance between a semi-rural setting and convenient access to transportation and schools. However, buyers should carefully evaluate the list price in the context of comparable properties in the area to assess its competitiveness. The lack of precise plot size information and detailed information on recent sales prevents a precise valuation analysis but the large land holding and property size suggest the price is, if not excellent value, reasonable within a context of limited available data.
Therefore, we give this property 7 / 10. *Disclaimer: This is our option and does constitute a recommendation or financial advice. Do your own research. *
- Price
- 7
- Condition
- 6
- Location
- 7
- Land
- 8
- Bedrooms
- 5
- Bathrooms
- 3
- Sqft (est)
- 2,770.63
The heatmap indicates the level of crime in the area. The color of the heatmap indicates the crime severity and recency.
Metrics Year-on-Year
- Average area value
- 811,250.00 £Decreased by 14.24 %
- Est sale value
- 2,366,118.02 £Increased by 56.70 %
- Average area rental value
- 5,577.00 £/moIncreased by 105.34 %
- Est letting value
- 13,853.15 £/moIncreased by 400.00 %
- Est rental Yield
- 8.25 %Increased by 139.13 %
- Crime Rate
- 9.00 %Unchanged by 0.00 %
Agent Activity
Chewton Rose created the listing.
Nearby Schools
| Name | Type | Ofsted | Distance |
|---|---|---|---|
| Lambrook School | Other Independent School | 0.73 KM | |
| Meadowbrook Montessori School | Other Independent School | 1.22 KM | |
| Winkfield St Mary'S Cofe Primary School | Voluntary Controlled School | Good | 1.34 KM |
| Whitegrove Primary School | Community School | Good | 2.01 KM |
| Maples Children'S Centre | Children's Centre Linked Site | 2.30 KM |
Images
Nearby Streets
| Name | Average Price | Average Sqft | Distance |
|---|---|---|---|
| Grove Lane | £ 0 | 0 | 0.00 KM |
| Winkfield Road | £ 0 | 0 | 0.00 KM |
| The Elms | £ 303,550 | 0 | 0.00 KM |
| Forest Way | £ 300,000 | 0 | 0.00 KM |
| Forest Way | £ 270,000 | 0 | 0.00 KM |
Nearby Transport
| Name | NLC | TLC | Distance |
|---|---|---|---|
| Martins Heron | 5692 | MAO | 3.82 KM |
| Bracknell | 5693 | BCE | 4.96 KM |
| Ascot (Berks) | 5666 | ACT | 5.94 KM |
| Maidenhead | 3147 | MAI | 8.69 KM |
| Bagshot | 5681 | BAG | 9.06 KM |
Nearby Listings
| Address | Price | Type | Score | Distance |
|---|---|---|---|---|
| Bracknell Road, BRACKNELL | £ 2,500,000 | BUY | 7 / 10 | 0.00 KM |
| Hope Cottages, Brock Hill, Warfield | £ 900,000 | BUY | Unknown | 0.09 KM |
| Ascot, Warfield, RG42 | £ 2,500,000 | BUY | Unknown | 0.12 KM |
| Bracknell Road, Winkfield Row | £ 500,000 | BUY | 7 / 10 | 0.13 KM |
| Brock Hill, Winkfield, Bracknell, RG42 | £ 695,000 | BUY | 7 / 10 | 0.14 KM |
Nearby Properties
| Address | Price | Distance |
|---|---|---|
| Hurst | £ 1,140,000 | 0.18 KM |
| Oakleigh | £ 279,950 | 0.20 KM |
| 3 Parkers Lane | £ 367,000 | 0.72 KM |
| 4 Parkers Lane | £ 385,000 | 0.72 KM |
| Hill Copse | £ 762,500 | 0.72 KM |