Hunters says ..
Nestled in the charming locale of Dunstall Gardens, St. Marys Bay, this exquisite three-bedroom detached house is currently under construction, promising a splendid living experience near the picturesque coast and sea-front. Built by a reputable local builder, this property is designed with an em...
Property Oracle says ..
The property is located in Dunstall Gardens, St Marys Bay, Romney Marsh, Kent, TN29 0QS. The area has a reported average house price of £277,864 and an average price per sqft of £246. Nearby properties show a range of prices, from £183,000 to £499,000, suggesting some variability in pricing within the immediate vicinity. The list price of £425,000 falls within this range. However, without sqft information for the subject property, a precise price per sqft comparison is not possible. The available data suggests that the property is within a reasonable price range for the area, but a definitive conclusion on value for money cannot be reached without more details on the property’s size.
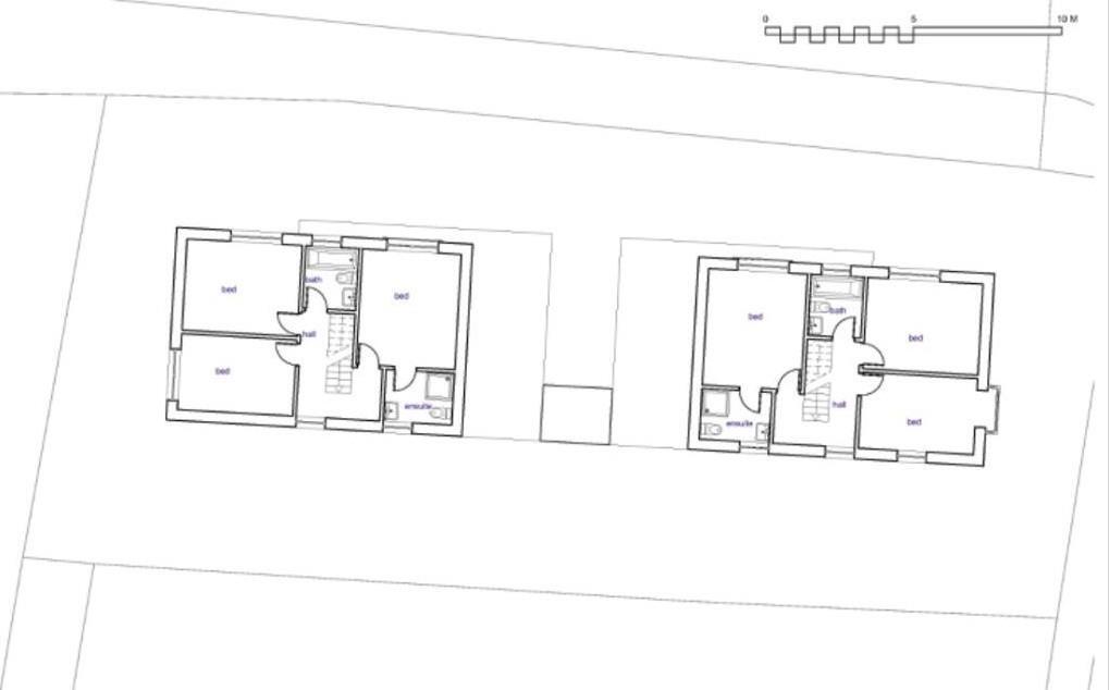
The provided architectural drawings show a modern, newly built property. The design suggests a contemporary aesthetic with a focus on space and light. The images indicate that the property is in excellent condition, having just been constructed. There is evidence of off-street parking.
The proximity to schools is a factor to consider. Dymchurch Primary School (Requires Improvement Ofsted rating) is 2.15km away, while The Marsh Academy (Good Ofsted rating) is 4.81km away. The distance to these schools may be a consideration for families. The lack of nearby transportation information hinders a complete assessment of the location’s accessibility.
Therefore, we give this property 10 / 10. *Disclaimer: This is our option and does constitute a recommendation or financial advice. Do your own research. *
- Price
- 0
- Condition
- 10
- Location
- 0
- Land
- 0
- Bedrooms
- 3
- Bathrooms
- 2
The heatmap indicates the level of crime in the area. The color of the heatmap indicates the crime severity and recency.
Metrics Year-on-Year
- Average area value
- 330,008.00 £Decreased by 9.03 %
- Average area rental value
- 1,469.00 £/moIncreased by 6.45 %
- Est rental Yield
- 5.34 %Increased by 17.11 %
- Crime Rate
- 52.00 %Unchanged by 0.00 %
Agent Activity
Hunters created the listing.
Nearby Schools
| Name | Type | Ofsted | Distance |
|---|---|---|---|
| Dymchurch Primary School | Academy Converter | Requires improvement | 2.15 KM |
| Dymchurch Children'S Centre | Children's Centre | 2.24 KM | |
| Romney Resource 2000 Limited (Romney Resource Centre) | Special Post 16 Institution | 4.62 KM | |
| The Marsh Academy | Academy Sponsor Led | Good | 4.81 KM |
| New Romney Children'S Centre | Children's Centre | 5.07 KM |
Images
Nearby Streets
| Name | Average Price | Average Sqft | Distance |
|---|---|---|---|
| Cypress Close | £ 0 | 0 | 0.00 KM |
| Cypress Close | £ 0 | 0 | 0.00 KM |
| Mulberry Close | £ 400,000 | 0 | 0.00 KM |
| Aspen Close | £ 293,333 | 0 | 0.00 KM |
| Hawthorn Close | £ 335,000 | 0 | 0.00 KM |
Nearby Listings
| Address | Price | Type | Score | Distance |
|---|---|---|---|---|
| Dunstall Gardens, St. Marys Bay | £ 425,000 | BUY | 10 / 10 | 0.00 KM |
| Dunstall Close, St. Marys Bay, Romney Marsh, Kent, TN29 0QY | £ 425,000 | BUY | Unknown | 0.08 KM |
| Dunstall Close, St. Marys Bay, Romney Marsh, Kent, TN29 | £ 499,000 | BUY | 7 / 10 | 0.08 KM |
| Dunstall Lane, St. Marys Bay, Romney Marsh | £ 500,000 | BUY | 7 / 10 | 0.12 KM |
| Dunstall Lane, Romney Marsh, TN29 | £ 460,000 | BUY | 7 / 10 | 0.12 KM |
Nearby Properties
| Address | Price | Distance |
|---|---|---|
| 10 Dunstall Close | £ 249,000 | 0.09 KM |
| 13 Dunstall Close | £ 221,500 | 0.09 KM |
| 6 Dunstall Close | £ 287,000 | 0.09 KM |
| 11 Dunstall Close | £ 240,000 | 0.09 KM |
| 1 Dunstall Close | £ 183,000 | 0.09 KM |