Chancellors says ..
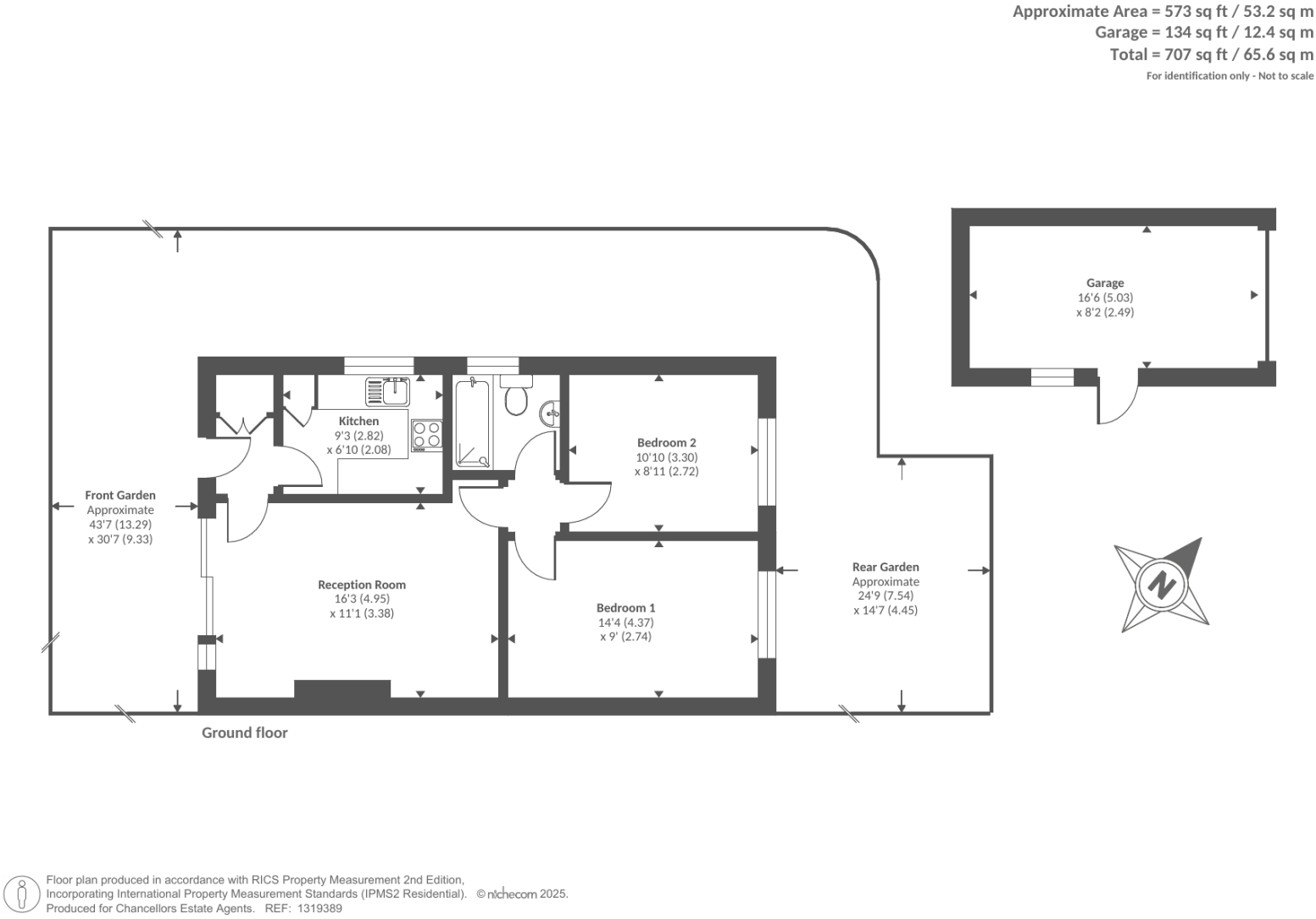
Situated on a corner plot is this well presented two bedroom semi detached bungalow being sold with no onward chain. Benefitting a front/side and rear garden, garage with driveway parking, kitchen, two double bedrooms and bathroom.
Property Oracle says ..
Therefore, we give this property 6 / 10. *Disclaimer: This is our option and does constitute a recommendation or financial advice. Do your own research. *
- Price
- 3
- Condition
- 8
- Location
- 6
- Land
- 7
- Bedrooms
- 2
- Bathrooms
- 1
- Sqft (est)
- 467.98
The heatmap indicates the level of crime in the area. The color of the heatmap indicates the crime severity and recency.
Metrics Year-on-Year
- Average area value
- 270,000.00 £Increased by 41.58 %
- Est sale value
- 169,876.74 £Increased by 61.33 %
- Average area rental value
- 936.00 £/moDecreased by 3.51 %
- Est letting value
- 467.98 £/moUnchanged by 0.00 %
- Est rental Yield
- 4.16 %Decreased by 31.80 %
- Crime Rate
- 10.00 %Unchanged by 0.00 %
from 190,711.00 £
from 105,295.50 £
from 970.00 £/mo
from 467.98 £/mo
from 6.10 %
from 10.00 %
Agent Activity
Chancellors created the listing.
Nearby Schools
| Name | Type | Ofsted | Distance |
|---|---|---|---|
| Edith Moorhouse Primary School | Academy Converter | Good | 0.61 KM |
| St Joseph'S Catholic Primary School, Carterton | Academy Converter | Requires improvement | 0.69 KM |
| Gateway Primary School | Community School | Requires improvement | 1.03 KM |
| Carterton Primary School | Community School | Requires improvement | 1.05 KM |
| Carterton Community College | Community School | Requires improvement | 1.26 KM |
Images
Nearby Streets
| Name | Average Price | Average Sqft | Distance |
|---|---|---|---|
| Main Park | £ 91,667 | 0 | 0.00 KM |
| Carters Close | £ 0 | 0 | 0.00 KM |
| Hollybush Road | £ 0 | 0 | 0.00 KM |
| Chamberlain Close | £ 335,000 | 0 | 0.00 KM |
| Saint Johns Drive | £ 0 | 0 | 0.00 KM |
Nearby Listings
| Address | Price | Type | Score | Distance |
|---|---|---|---|---|
| Carterton, Oxfordshire, OX18 | £ 325,000 | BUY | 6 / 10 | 0.00 KM |
| Mansell Place, Carterton, Oxfordshire, OX18 | £ 435,000 | BUY | 6 / 10 | 0.03 KM |
| Foxcroft Drive, Carterton, Oxfordshire, OX18 | £ 350,000 | BUY | 6 / 10 | 0.11 KM |
| Clarkston Road, Carterton, Oxfordshire, OX18 | £ 350,000 | BUY | Unknown | 0.11 KM |
| Milestone Road, Carterton, Oxfordshire, OX18 | £ 495,000 | BUY | Unknown | 0.13 KM |
Nearby Properties
| Address | Price | Distance |
|---|---|---|
| 2 Mansell Place | £ 210,000 | 0.04 KM |
| 4 Mansell Place | £ 261,000 | 0.04 KM |
| 17 Clarkston Road | £ 245,000 | 0.06 KM |
| 28 Clarkston Road | £ 250,000 | 0.06 KM |
| 18 Clarkston Road | £ 252,000 | 0.06 KM |