BidX1 says ..
N/A
Property Oracle says ..
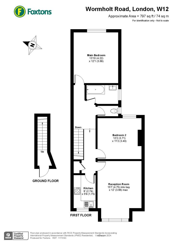
This property is a two-bedroom, one-bathroom terraced house situated in the Wormholt and White City area of London, W12. The listing suggests a relatively modern and clean interior with renovated kitchen and bathroom, as seen in the included images. However, the pictures also indicate that the rooms are quite small, which may be a limiting factor for some buyers. The property’s location within W12 offers a reasonable proximity to transportation, good schools, and local amenities, making it attractive to families or professionals. The lack of detailed information concerning the square footage and the size of the garden area makes an assessment of its overall value more challenging. While the listing price appears competitive when compared to similarly situated properties in the area, the lack of precise comparative data restricts a more definitive conclusion. Overall, the property is a decent option for a first-time buyer, small families, or those looking for an entry-point into this popular area. The lack of a garden might be a drawback for some. A lack of square footage data means a definitive assessment of value is difficult to ascertain. Potential buyers should conduct their own thorough research and viewings to make an informed decision.
Therefore, we give this property 5 / 10. *Disclaimer: This is our option and does constitute a recommendation or financial advice. Do your own research. *
- Price
- 7
- Condition
- 6
- Location
- 7
- Land
- 1
- Bedrooms
- 2
- Bathrooms
- 1
The heatmap indicates the level of crime in the area. The color of the heatmap indicates the crime severity and recency.
Metrics Year-on-Year
- Average area value
- 603,333.00 £Decreased by 25.74 %
- Average area rental value
- 1,627.00 £/moDecreased by 25.78 %
- Est rental Yield
- 3.24 %Unchanged by 0.00 %
- Crime Rate
- 4.00 %Unchanged by 0.00 %
Agent Activity
BidX1 created the listing.
Nearby Schools
| Name | Type | Ofsted | Distance |
|---|---|---|---|
| Queensmill School | Academy Special Converter | 0.31 KM | |
| Q+ | Special Post 16 Institution | 0.31 KM | |
| Wormholt Park Primary School | Community School | Good | 0.39 KM |
| Phoenix Academy | Academy Sponsor Led | Good | 0.58 KM |
| Greenside Primary School | Academy Converter | Good | 0.61 KM |
Images
Nearby Streets
| Name | Average Price | Average Sqft | Distance |
|---|---|---|---|
| Askham Court | £ 900,000 | 0 | 0.00 KM |
| Gravesend Road | £ 0 | 0 | 0.00 KM |
| Becklow Mews | £ 0 | 0 | 0.00 KM |
| The Vale/Uxbridge Road | £ 0 | 0 | 0.00 KM |
| Shabana Court | £ 0 | 0 | 0.00 KM |
Nearby Transport
| Name | NLC | TLC | Distance |
|---|---|---|---|
| Shepherd'S Bush | 9587 | SPB | 2.52 KM |
| Acton Central | 1404 | ACC | 2.52 KM |
| Willesden Junction | 1457 | WIJ | 2.72 KM |
| Kensal Green | 1447 | KNL | 2.97 KM |
| Acton Main Line | 3000 | AML | 3.10 KM |
Nearby Listings
| Address | Price | Type | Score | Distance |
|---|---|---|---|---|
| Wormholt Road, London, W12 | £ 425,000 | BUY | 6 / 10 | 0.00 KM |
| Galloway Road, London, W12 | £ 825,000 | BUY | Unknown | 0.07 KM |
| Galloway Road, London, W12 | £ 880,000 | BUY | Unknown | 0.07 KM |
| Wormholt Road, London | £ 1,850,000 | BUY | 7 / 10 | 0.08 KM |
| Wormholt Road, Shepherd's Bush, London, W12 | £ 1,750,000 | BUY | Unknown | 0.08 KM |
Nearby Properties
| Address | Price | Distance |
|---|---|---|
| 81 Galloway Road | £ 283,000 | 0.06 KM |
| 103 Galloway Road | £ 835,000 | 0.06 KM |
| 3 Galloway Road | £ 385,000 | 0.06 KM |
| 91 Galloway Road | £ 566,000 | 0.06 KM |
| 9 Galloway Road | £ 791,000 | 0.06 KM |