eXp UK says ..
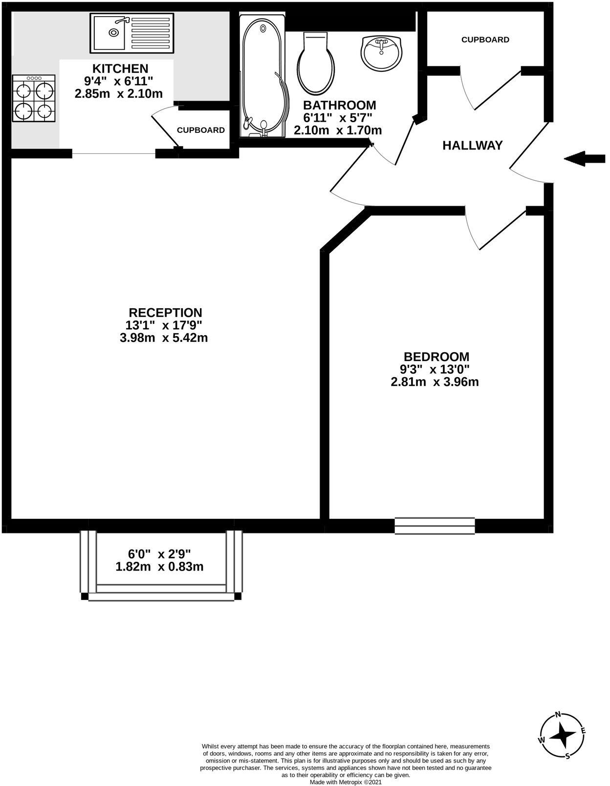
Fantastic one bedroom first floor purpose built flat which is located in the popular Bow Arrow Lane Development which has easy access to the A2/M25 & Bluewater shopping centre. The property comprises communal entrance hall, own entrance hall, living room with bay window and archway to mode...
Property Oracle says ..
This property is a one-bedroom flat located in Dartford, Kent. The flat itself appears to be in good condition, recently decorated with modern fixtures and fittings. The kitchen and bathroom are clean and contemporary. There is a small amount of communal outside space, but no private garden. The location is convenient, with nearby schools and transportation links. However, the average house price in the area is significantly higher than the list price of this property, suggesting it may be undervalued. More information on the property size would be needed for a complete assessment.
Therefore, we give this property 6 / 10. *Disclaimer: This is our option and does constitute a recommendation or financial advice. Do your own research. *
- Price
- 8
- Condition
- 9
- Location
- 7
- Land
- 3
- Bedrooms
- 1
- Bathrooms
- 1
- Sqft (est)
- 870.80
The heatmap indicates the level of crime in the area. The color of the heatmap indicates the crime severity and recency.
Metrics Year-on-Year
- Average area value
- 680,617.00 £Decreased by 16.07 %
- Est sale value
- 390,118.40 £Decreased by 14.18 %
- Average area rental value
- 1,914.00 £/moIncreased by 14.68 %
- Est letting value
- 870.80 £/moUnchanged by 0.00 %
- Est rental Yield
- 3.37 %Increased by 36.44 %
- Crime Rate
- 27.00 %Unchanged by 0.00 %
Agent Activity
eXp UK created the listing.
Nearby Schools
| Name | Type | Ofsted | Distance |
|---|---|---|---|
| The Gateway Primary Academy | Academy Converter | Good | 0.49 KM |
| St Anselm'S Catholic Primary School | Voluntary Aided School | Good | 0.84 KM |
| The Brent Primary School | Academy Converter | Outstanding | 0.98 KM |
| Stone Lodge School | Free Schools | 1.06 KM | |
| Temple Hill Children'S Centre | Children's Centre | 1.12 KM |
Images
Nearby Streets
| Name | Average Price | Average Sqft | Distance |
|---|---|---|---|
| Brentfield Road | £ 426,250 | 0 | 0.00 KM |
| Masefield Road | £ 0 | 0 | 0.00 KM |
| Coleridge Road | £ 200,000 | 0 | 0.00 KM |
| Bob Dunn Way | £ 0 | 0 | 0.00 KM |
| Rochester Road | £ 0 | 0 | 0.00 KM |
Nearby Transport
| Name | NLC | TLC | Distance |
|---|---|---|---|
| Dartford | 5101 | DFD | 2.08 KM |
| Stone Crossing | 5248 | SCG | 2.88 KM |
| Purfleet | 7453 | PFL | 3.81 KM |
| Greenhithe For Bluewater | 5138 | GNH | 4.68 KM |
| Farningham Road | 5105 | FNR | 5.04 KM |
Nearby Listings
| Address | Price | Type | Score | Distance |
|---|---|---|---|---|
| Osbourne Road, Dartford, DA2 6RH | £ 179,995 | BUY | 6 / 10 | 0.00 KM |
| Osbourne Road, Dartford, Kent, DA2 | £ 180,000 | BUY | 6 / 10 | 0.01 KM |
| Osbourne Road, Dartford, Kent, DA2 | £ 175,000 | BUY | 6 / 10 | 0.04 KM |
| Barnard Court, Osbourne Road, Dartford, Kent, DA2 | £ 175,000 | BUY | 6 / 10 | 0.04 KM |
| Grange Crescent, Dartford, Kent | £ 230,000 | BUY | Unknown | 0.05 KM |
Nearby Properties
| Address | Price | Distance |
|---|---|---|
| 1 The Oaks | £ 380,000 | 0.13 KM |
| 9 The Oaks | £ 375,000 | 0.13 KM |
| 7 The Oaks | £ 531,000 | 0.13 KM |
| 2 The Oaks | £ 290,000 | 0.13 KM |
| 4 The Oaks | £ 275,000 | 0.13 KM |