Francis Street, FLEUR DE LIS, NP12
By Cariad Property
£ 140,000
Reviews
2 out of 5 stars
Cariad Property says ..
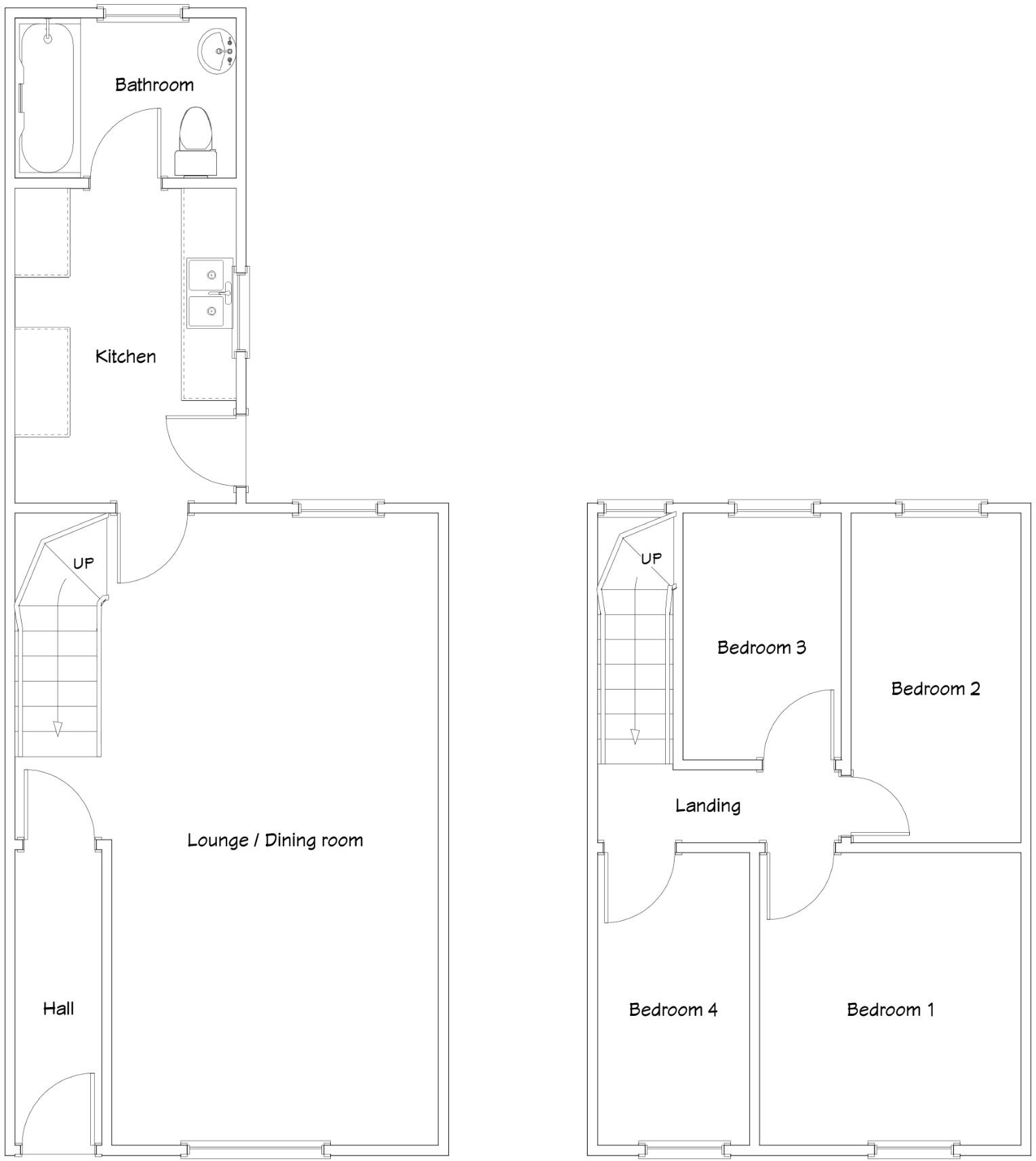
PERFECT FIRST TIME HOME, popular position with a private garden, it has four bedrooms! So ideal for a young family too, modern interior décor, fitted kitchen and bathroom, no chain, a real gem.
Property Oracle says ..
This four-bedroom terraced house in Pengam, Caerphilly is listed at £140,000. While the property is conveniently located near schools and transportation (Pengam train station is 1.67km away), the provided images suggest it is in need of some modernisation. The bathroom and kitchen appear dated, and while the living areas are presented neatly, a more thorough renovation might enhance the property’s overall appeal. The lack of information regarding plot size and square footage makes it difficult to definitively assess the value for money. However, comparing the list price to nearby properties, which range from £79,000 to £160,000, suggests the £140,000 asking price is at the higher end of the spectrum for similar properties in the area. The average house price in the area is £226,000, significantly higher than the list price, but this average may be skewed by larger or more modern properties. More information on the property’s size and condition would be needed to give a conclusive assessment of its value.
Therefore, we give this property 5 / 10. *Disclaimer: This is our option and does constitute a recommendation or financial advice. Do your own research. *
- Price
- 5
- Condition
- 6
- Location
- 7
- Land
- 3
- Bedrooms
- 4
- Bathrooms
- 1
The heatmap indicates the level of crime in the area. The color of the heatmap indicates the crime severity and recency.
Metrics Year-on-Year
- Average area value
- 277,488.00 £Increased by 36.96 %
- Average area rental value
- 975.00 £/moIncreased by 31.40 %
- Est rental Yield
- 4.22 %Decreased by 3.87 %
- Crime Rate
- 12.00 %Unchanged by 0.00 %
Agent Activity
Cariad Property created the listing.
Nearby Schools
| Name | Type | Ofsted | Distance |
|---|---|---|---|
| Ysgol Gyfun Cwm Rhymni | Welsh Establishment | 0.24 KM | |
| Fleur-De-Lys Primary School | Welsh Establishment | 0.46 KM | |
| Ysgol Gymraeg Trelyn | Welsh Establishment | 0.99 KM | |
| Pengam Primary School | Welsh Establishment | 0.99 KM | |
| Cefn Fforest Primary School | Welsh Establishment | 1.29 KM |
Images
Nearby Streets
| Name | Average Price | Average Sqft | Distance |
|---|---|---|---|
| Fair View | £ 140,000 | 0 | 0.00 KM |
| Woodland Place | £ 0 | 0 | 0.00 KM |
| Railway View | £ 0 | 0 | 0.00 KM |
| Victoria Road | £ 235,000 | 0 | 0.00 KM |
| Hawtin Park | £ 0 | 0 | 0.00 KM |
Nearby Transport
| Name | NLC | TLC | Distance |
|---|---|---|---|
| Pengam | 4021 | PGM | 1.67 KM |
| Hengoed | 4028 | HNG | 1.76 KM |
| Gilfach Fargoed | 4022 | GFF | 2.67 KM |
| Ystrad Mynach | 4026 | YSM | 3.49 KM |
| Bargoed | 4011 | BGD | 3.63 KM |
Nearby Listings
| Address | Price | Type | Score | Distance |
|---|---|---|---|---|
| Francis Street, FLEUR DE LIS, NP12 | £ 140,000 | BUY | 5 / 10 | 0.00 KM |
| Warne Street, Fleur de Lys , Blackwood | £ 139,995 | BUY | 6 / 10 | 0.09 KM |
| Edward Street, Fairview, NP12 | £ 260,000 | BUY | 7 / 10 | 0.29 KM |
| Mount Pleasant, Fleur de Lis, Blackwood, NP12 | £ 375,000 | BUY | 6 / 10 | 0.30 KM |
| Gellihaf Road, Fleur De Lis, Blackwood | £ 375,000 | BUY | 6 / 10 | 0.32 KM |
Nearby Properties
| Address | Price | Distance |
|---|---|---|
| 4 Francis Street | £ 100,000 | 0.00 KM |
| 17 Francis Street | £ 99,950 | 0.00 KM |
| 5 Francis Street | £ 97,000 | 0.00 KM |
| 18 Francis Street | £ 79,000 | 0.00 KM |
| 13 Francis Street | £ 87,000 | 0.00 KM |