Bright Street, East Ardsley, Wakefield, West Yorkshire
By Manning Stainton
£ 170,000
Reviews
3 out of 5 stars
Manning Stainton says ..
This beautiful two bedroom terrace property is presented to a fantastic standard and enjoys a brilliant location with great motorway links! Having a brilliant and easy to maintain rear garden, call our Morley Office to view.
Property Oracle says ..
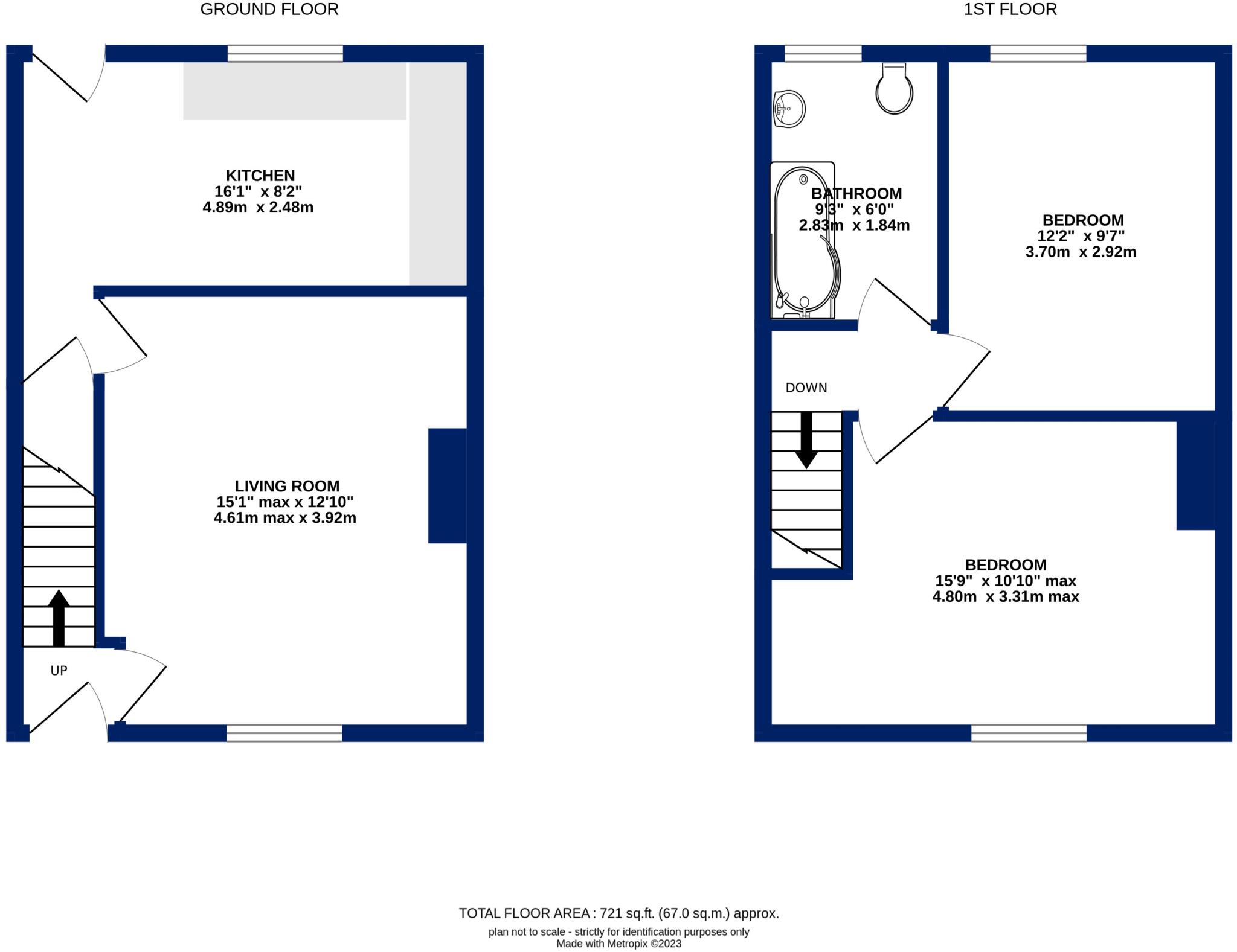
This property is a 2 bedroom, 1 bathroom terraced house located in East Ardsley, Wakefield. The property is situated in a convenient location with nearby schools, transportation links, and local amenities. While the average house price in the area is significantly higher, this property is priced competitively. The property has recently undergone some modernisation and is presented in good condition. There is a small, decked garden area to the rear of the property.
Therefore, we give this property 6 / 10. *Disclaimer: This is our option and does constitute a recommendation or financial advice. Do your own research. *
- Price
- 7
- Condition
- 8
- Location
- 7
- Land
- 3
- Bedrooms
- 2
- Bathrooms
- 1
- Sqft (est)
- 721.18
The heatmap indicates the level of crime in the area. The color of the heatmap indicates the crime severity and recency.
Metrics Year-on-Year
- Average area value
- 310,999.00 £Increased by 1.83 %
- Est sale value
- 263,951.88 £Increased by 46.99 %
- Average area rental value
- 1,395.00 £/moIncreased by 38.39 %
- Est letting value
- 721.18 £/mo
- Est rental Yield
- 5.38 %Increased by 35.86 %
- Crime Rate
- 33.00 %Unchanged by 0.00 %
Agent Activity
Manning Stainton created the listing.
Nearby Schools
| Name | Type | Ofsted | Distance |
|---|---|---|---|
| East Ardsley Primary Academy | Academy Converter | Good | 0.34 KM |
| Thorpe Primary School | Community School | Good | 1.12 KM |
| Elements Primary School | Free Schools | 2.10 KM | |
| Middleton Children'S Centre | Children's Centre | 2.29 KM | |
| Cockburn Laurence Calvert Academy | Free Schools | 2.31 KM |
Images
Nearby Streets
| Name | Average Price | Average Sqft | Distance |
|---|---|---|---|
| Oxford Street | £ 0 | 0 | 0.00 KM |
| Back Gordon Street | £ 0 | 0 | 0.00 KM |
| Skipton Close | £ 218,498 | 0 | 0.00 KM |
| Stanhope Road | £ 0 | 0 | 0.00 KM |
| Stanhope Gardens | £ 0 | 0 | 0.00 KM |
Nearby Transport
| Name | NLC | TLC | Distance |
|---|---|---|---|
| Outwood | 8309 | OUT | 2.72 KM |
| Wakefield Westgate | 8591 | WKF | 5.67 KM |
| Morley | 8504 | MLY | 7.00 KM |
| Wakefield Kirkgate | 8584 | WKK | 7.21 KM |
| Cottingley | 8505 | COT | 7.65 KM |
Nearby Listings
| Address | Price | Type | Score | Distance |
|---|---|---|---|---|
| Bright Street, East Ardsley, Wakefield, West Yorkshire | £ 170,000 | BUY | 6 / 10 | 0.00 KM |
| Bright Street, East Ardsley, Wakefield, West Yorkshire | £ 170,000 | BUY | 7 / 10 | 0.01 KM |
| Queen Street, East Ardsley, Wakefield, West Yorkshire | £ 174,995 | BUY | 6 / 10 | 0.04 KM |
| Queen Street, Wakefield | £ 189,950 | BUY | 7 / 10 | 0.05 KM |
| Queen Street, East Ardsley, Wakefield | £ 180,000 | BUY | 7 / 10 | 0.06 KM |
Nearby Properties
| Address | Price | Distance |
|---|---|---|
| 8 Bright Street | £ 125,000 | 0.04 KM |
| 40 Bright Street | £ 108,500 | 0.04 KM |
| 38 Bright Street | £ 81,000 | 0.04 KM |
| 14 Bright Street | £ 160,000 | 0.04 KM |
| 6 Bright Street | £ 123,500 | 0.04 KM |