Sunnycroft, Wiltown, Curry Rivel, Langport, Somerset, TA10
By English Homes
£ 425,000
Reviews
3 out of 5 stars
English Homes says ..
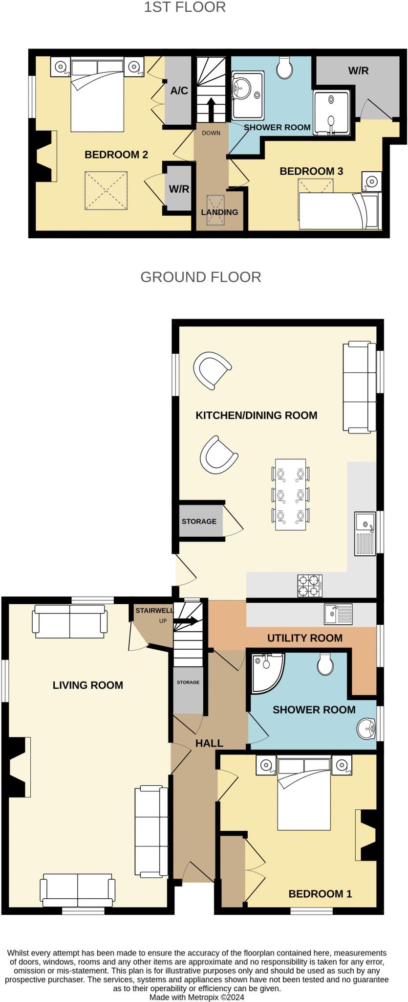
A deceptively spacious detached chalet bungalow which has come to the market with no onward chain. Don't just drive by this property, internal viewing is a must to appreciate the size and character this property has to offer. The garden is larger than average and is well landscaped with a variet...
Property Oracle says ..
This property is a 3 bedroom, 2 bathroom bungalow located in Curry Rivel, Somerset. The asking price of £425,000 is slightly above the average price for the area (£412,727), however, given the lack of information regarding the size of the plot and the condition of the property, it is difficult to definitively comment on the value for money. The property appears to be well maintained, though some aspects may benefit from modernisation. The location is in a quiet village with a primary school nearby. More information is needed to provide a full and accurate assessment.
Therefore, we give this property 6 / 10. *Disclaimer: This is our option and does constitute a recommendation or financial advice. Do your own research. *
- Price
- 6
- Condition
- 7
- Location
- 7
- Land
- 6
- Bedrooms
- 3
- Bathrooms
- 2
- Sqft (est)
- 1,295.00
The heatmap indicates the level of crime in the area. The color of the heatmap indicates the crime severity and recency.
Metrics Year-on-Year
- Average area value
- 432,500.00 £Increased by 25.16 %
- Est sale value
- 439,005.00 £Increased by 10.78 %
- Average area rental value
- 1,323.00 £/moDecreased by 16.90 %
- Est letting value
- 1,295.00 £/moUnchanged by 0.00 %
- Est rental Yield
- 3.67 %Decreased by 33.63 %
- Crime Rate
- 12.00 %Unchanged by 0.00 %
Agent Activity
English Homes created the listing.
Nearby Schools
| Name | Type | Ofsted | Distance |
|---|---|---|---|
| Curry Rivel Church Of England Vc Primary School | Voluntary Controlled School | Requires improvement | 0.25 KM |
| Hambridge Community Primary School | Academy Converter | Good | 3.85 KM |
| Huish Episcopi Primary School | Academy Converter | Good | 5.22 KM |
| Langport Building | Children's Centre Linked Site | 5.46 KM | |
| Huish Episcopi Academy | Academy Converter | Good | 5.99 KM |
Images
Nearby Streets
| Name | Average Price | Average Sqft | Distance |
|---|---|---|---|
| Church Street | £ 390,000 | 0 | 0.00 KM |
| The Green | £ 285,000 | 0 | 0.00 KM |
| Bawler's Lane | £ 0 | 0 | 0.00 KM |
| Butt Lane | £ 0 | 0 | 0.00 KM |
| Church Road | £ 0 | 0 | 0.00 KM |
Nearby Listings
| Address | Price | Type | Score | Distance |
|---|---|---|---|---|
| Sunnycroft, Wiltown, Curry Rivel, Langport, Somerset, TA10 | £ 425,000 | BUY | 6 / 10 | 0.00 KM |
| Wiltown, Curry Rivel, Langport, Somerset, TA10 | £ 365,000 | BUY | 6 / 10 | 0.07 KM |
| The Manse & The URC, Wiltown, Curry Rivel, Langport, Somerset, TA10 | £ 545,000 | BUY | 6 / 10 | 0.07 KM |
| Wiltown, Curry Rivel, Langport, Somerset, TA10 | £ 180,000 | BUY | 5 / 10 | 0.08 KM |
| Wiltown, Curry Rivel, Langport, Somerset, TA10 | £ 375,000 | BUY | 7 / 10 | 0.11 KM |
Nearby Properties
| Address | Price | Distance |
|---|---|---|
| Eastleigh | £ 540,000 | 0.04 KM |
| Middlethorpe House | £ 590,000 | 0.04 KM |
| Broadleys | £ 129,500 | 0.04 KM |
| Elmsmead | £ 291,000 | 0.04 KM |
| The Old Manse | £ 232,500 | 0.04 KM |