Keith Ashton says ..
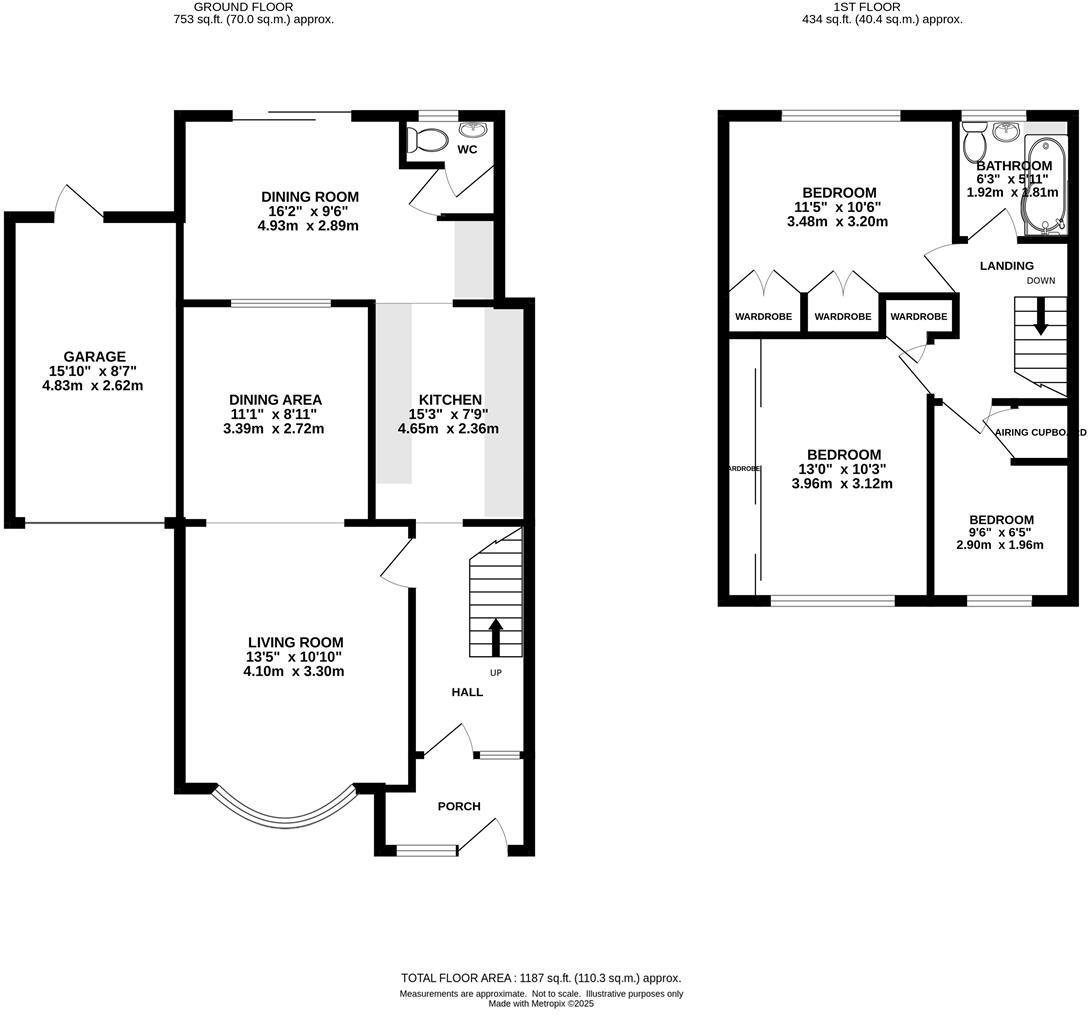
** Guide Price £525,000 - £550,000 ** Situated in a popular cul-de-sac backing onto woodland, this well-maintained three-bedroom semi-detached family home offers convenient access to Shenfield and Brentwood town centres, as well as their mainline railway stations. Boasting generous ground floor l...
Property Oracle says ..
This property is located in Hutton South, Brentwood, Essex. It is a 3-bedroom house with 1 bathroom and a significant plot size. The property appears to be well-maintained and in good condition, with a modern kitchen and updated bathroom. The garden is a particular highlight, offering ample space for outdoor activities and relaxation. The location is desirable, with proximity to several highly-rated schools and convenient access to transportation links such as Shenfield and Brentwood train stations. However, there is a lack of information regarding the average price per square foot in the area, making it difficult to definitively assess the value for money. More information on comparable properties would be needed to fully evaluate the price.
Therefore, we give this property 8 / 10. *Disclaimer: This is our option and does constitute a recommendation or financial advice. Do your own research. *
- Price
- 7
- Condition
- 8
- Location
- 8
- Land
- 9
- Bedrooms
- 3
- Bathrooms
- 1
- Sqft (est)
- 1,187.00
The heatmap indicates the level of crime in the area. The color of the heatmap indicates the crime severity and recency.
Metrics Year-on-Year
- Average area value
- 547,000.00 £Decreased by 8.72 %
- Est sale value
- 458,182.00 £Decreased by 5.62 %
- Average area rental value
- 1,401.00 £/moDecreased by 1.27 %
- Est letting value
- 0.00 £/mo
- Est rental Yield
- 3.07 %Increased by 8.10 %
- Crime Rate
- 9.00 %Unchanged by 0.00 %
Agent Activity
Keith Ashton created the listing.
Nearby Schools
| Name | Type | Ofsted | Distance |
|---|---|---|---|
| The Endeavour Co-Operative Academy | Academy Special Converter | 1.47 KM | |
| St Martin'S School Brentwood | Academy Converter | Good | 1.56 KM |
| Hogarth Primary School And Nursery | Community School | Good | 1.63 KM |
| Shenfield St. Mary'S Church Of England Primary School | Academy Converter | 2.17 KM | |
| Long Ridings Primary School | Community School | Good | 2.18 KM |
Images
Nearby Streets
| Name | Average Price | Average Sqft | Distance |
|---|---|---|---|
| Saxon Close | £ 260,000 | 0 | 0.00 KM |
| Aspen Court | £ 0 | 0 | 0.00 KM |
| The Limes | £ 0 | 0 | 0.00 KM |
| Greyfriars | £ 2,150,000 | 0 | 0.00 KM |
| Baymans Woods | £ 1,000,000 | 0 | 0.00 KM |
Nearby Transport
| Name | NLC | TLC | Distance |
|---|---|---|---|
| Shenfield | 6888 | SNF | 1.60 KM |
| Brentwood | 6872 | BRE | 3.59 KM |
| West Horndon | 7466 | WHR | 5.50 KM |
| Ingatestone | 6882 | INT | 8.06 KM |
| Billericay | 6871 | BIC | 9.69 KM |
Nearby Listings
| Address | Price | Type | Score | Distance |
|---|---|---|---|---|
| Brocksparkwood, Brentwood | £ 525,000 | BUY | 8 / 10 | 0.00 KM |
| Brocksparkwood, BRENTWOOD, Essex, CM13 | £ 600,000 | BUY | 7 / 10 | 0.03 KM |
| Brocksparkwood, Brentwood, CM13 | £ 425,000 | BUY | 7 / 10 | 0.04 KM |
| Brocksparkwood, Brentwood, CM13 | £ 450,000 | BUY | 6 / 10 | 0.04 KM |
| Brocksparkwood, Brentwood, CM13 | £ 550,000 | BUY | 7 / 10 | 0.05 KM |
Nearby Properties
| Address | Price | Distance |
|---|---|---|
| 46 Brocksparkwood | £ 270,000 | 0.03 KM |
| 48 Brocksparkwood | £ 272,000 | 0.03 KM |
| 59 Brocksparkwood | £ 525,000 | 0.03 KM |
| 74 Brocksparkwood | £ 433,000 | 0.03 KM |
| 53 Brocksparkwood | £ 377,000 | 0.03 KM |