AbbotFox says ..
abbotFox presents this chain-free detached bungalow. Located within the highly desirable residential area of Thorpe St Andrew, this home occupies an exceptional plot on a popular road. Offering a high degree of flexibility in its layout, this home represents an ideal opportunity for any...
Property Oracle says ..
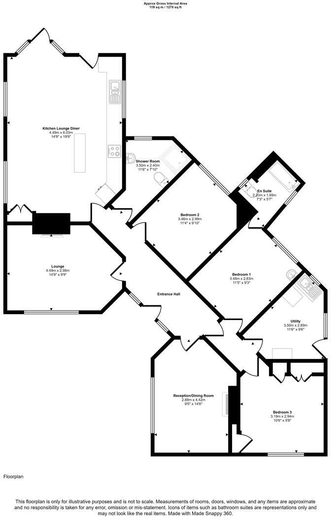
This three-bedroom, two-bathroom detached bungalow is located in Thorpe St Andrew, a sought-after suburb of Norwich. The property benefits from a relatively central location within the suburb, offering proximity to local schools like St William’s Primary School (rated ‘Good’ by Ofsted) and Heartsease Primary Academy (‘Outstanding’). Norwich city centre is also within a reasonable commuting distance (approximately 2.91 km). The property includes a good-sized garden, an important feature for many buyers. The bungalow appears to be structurally sound but requires some interior modernisation. The décor and fixtures are dated, and improvements could significantly enhance its appeal and market value. The images suggest a need for refurbishment in the kitchen and bathrooms, in particular. More information concerning the plot size, and recent local comparable property sales data, would be helpful in accurately assessing the property’s value. The asking price of £450,000 sits within the range of other nearby properties, although a lack of precise square footage data makes a truly precise comparison difficult. Overall, this property offers potential but requires investment to maximise its worth.
Therefore, we give this property 6 / 10. *Disclaimer: This is our option and does constitute a recommendation or financial advice. Do your own research. *
- Price
- 7
- Condition
- 5
- Location
- 7
- Land
- 6
- Bedrooms
- 3
- Bathrooms
- 2
- Sqft (est)
- 1,278.00
The heatmap indicates the level of crime in the area. The color of the heatmap indicates the crime severity and recency.
Metrics Year-on-Year
- Average area value
- 226,667.00 £Decreased by 28.04 %
- Est sale value
- 433,242.00 £Increased by 12.25 %
- Average area rental value
- 1,050.00 £/moDecreased by 20.27 %
- Est letting value
- 1,278.00 £/moUnchanged by 0.00 %
- Est rental Yield
- 5.56 %Increased by 10.76 %
- Crime Rate
- 0.00 %
Agent Activity
AbbotFox marked this listing as sold.
AbbotFox created the listing.
Nearby Schools
| Name | Type | Ofsted | Distance |
|---|---|---|---|
| St William'S Primary School | Community School | Good | 0.67 KM |
| Heartsease Primary Academy | Academy Converter | Outstanding | 0.80 KM |
| Dussindale Children'S Centre | Children's Centre | 0.92 KM | |
| The Open Academy | Academy Sponsor Led | Requires improvement | 1.32 KM |
| Lionwood Junior School | Academy Converter | Good | 1.60 KM |
Images
Nearby Streets
| Name | Average Price | Average Sqft | Distance |
|---|---|---|---|
| Harvey Close | £ 362,500 | 0 | 0.00 KM |
| Saint Williams Way | £ 0 | 0 | 0.00 KM |
| Lime Tree Avenue | £ 265,000 | 0 | 0.00 KM |
| Orchard Close | £ 300,833 | 0 | 0.00 KM |
| Vancouver Road | £ 0 | 0 | 0.00 KM |
Nearby Transport
| Name | NLC | TLC | Distance |
|---|---|---|---|
| Norwich | 7309 | NRW | 2.91 KM |
| Salhouse | 7318 | SAH | 8.00 KM |
| Brundall Gardens | 7006 | BGA | 9.63 KM |
Nearby Listings
| Address | Price | Type | Score | Distance |
|---|---|---|---|---|
| Gordon Avenue, Norwich | £ 450,000 | BUY | 6 / 10 | 0.00 KM |
| Gordon Avenue, Thorpe St Andrew, Norwich, Norfolk, NR7 | £ 350,000 | BUY | 7 / 10 | 0.06 KM |
| Gordon Avenue, Norwich, NR7 | £ 450,000 | BUY | 7 / 10 | 0.07 KM |
| Harvey Close, Norwich, Norfolk, NR7 | £ 345,000 | BUY | Unknown | 0.11 KM |
| Pilling Road, Thorpe St Andrew, NR7 | £ 325,000 | BUY | 6 / 10 | 0.12 KM |
Nearby Properties
| Address | Price | Distance |
|---|---|---|
| 38 Gordon Avenue | £ 243,000 | 0.09 KM |
| 27 Gordon Avenue | £ 233,000 | 0.09 KM |
| 21 Gordon Avenue | £ 250,000 | 0.09 KM |
| 19 Gordon Avenue | £ 250,000 | 0.09 KM |
| 17 Gordon Avenue | £ 282,500 | 0.09 KM |