Harrogate Road, Apperley Bridge, Bradford, West Yorkshire, BD10
By Hardisty & co
£ 170,000
Reviews
3 out of 5 stars
Hardisty & co says ..
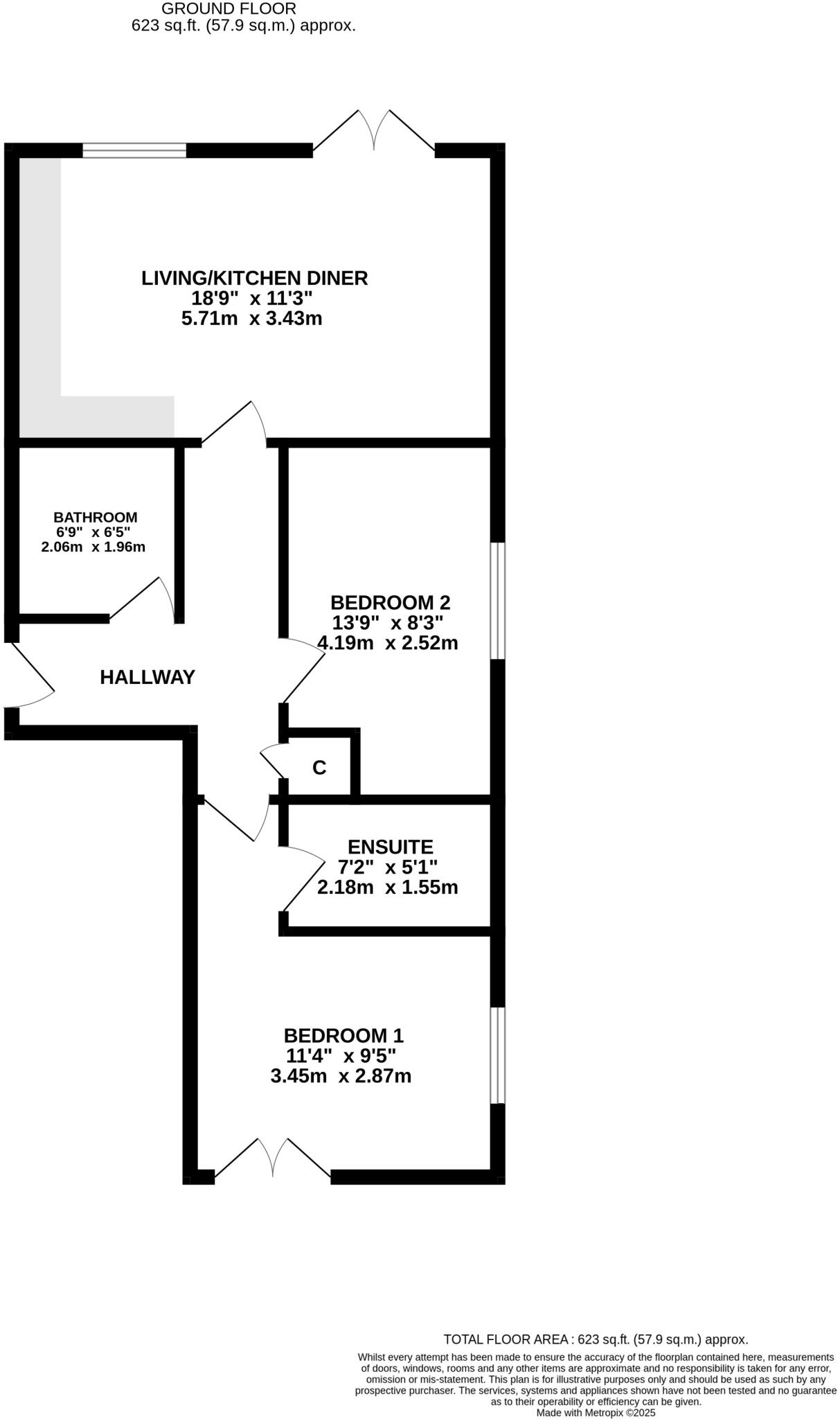
Exciting opportunity! Perfect 1st home or for those downsizing! This lovely 2 double bedroom, ground flr., apartment sits in the corner of this much sought after, canalside development & boasts well tended communal gardens, secure intercom entry system, EV charging point, cycle storage & ...
Property Oracle says ..
This is a well-presented two-bedroom flat in a popular residential area. The property is in good condition and benefits from communal gardens and good transport links. The flat is located on Harrogate Road in Apperley Bridge, Bradford. Apperley Bridge is a desirable residential area with good access to local amenities, schools, and transportation links, including the Apperley Bridge train station. The property is also situated near the Leeds and Liverpool Canal, offering pleasant surroundings. The property appears to be in excellent condition, with modern fixtures and fittings throughout. The kitchen and bathrooms are well-maintained, and the living spaces are clean and well-presented. There is no visible evidence of any disrepair or damage. The property benefits from communal garden space, which provides residents with access to outdoor areas. While the property doesn’t have its own private garden, the communal gardens offer a pleasant and well-maintained green space. The property is listed at £170,000.
Therefore, we give this property 7 / 10. *Disclaimer: This is our option and does constitute a recommendation or financial advice. Do your own research. *
- Price
- 7
- Condition
- 9
- Location
- 7
- Land
- 6
- Bedrooms
- 2
- Bathrooms
- 2
- Sqft (est)
- 510.64
The heatmap indicates the level of crime in the area. The color of the heatmap indicates the crime severity and recency.
Metrics Year-on-Year
- Average area value
- 236,407.00 £Decreased by 2.23 %
- Est sale value
- 147,574.96 £Increased by 23.50 %
- Average area rental value
- 978.00 £/moDecreased by 5.69 %
- Est letting value
- 510.64 £/moUnchanged by 0.00 %
- Est rental Yield
- 4.96 %Decreased by 3.69 %
- Crime Rate
- 13.00 %Unchanged by 0.00 %
Agent Activity
Hardisty & co created the listing.
Nearby Schools
| Name | Type | Ofsted | Distance |
|---|---|---|---|
| Greengates Primary Academy | Academy Converter | 0.63 KM | |
| Woodhouse Grove School | Other Independent School | 0.90 KM | |
| Parkland Children'S Centre | Children's Centre | 1.30 KM | |
| Holybrook Primary School | Academy Sponsor Led | 1.35 KM | |
| Co-Op Academy Parkland | Academy Sponsor Led | 1.41 KM |
Images
Nearby Streets
| Name | Average Price | Average Sqft | Distance |
|---|---|---|---|
| Valley View Drive | £ 364,991 | 0 | 0.00 KM |
| Church Close | £ 0 | 0 | 0.00 KM |
| Fraser Road | £ 325,000 | 0 | 0.00 KM |
| Calverley Cutting | £ 475,000 | 0 | 0.00 KM |
| Tannery Court | £ 485,000 | 0 | 0.00 KM |
Nearby Transport
| Name | NLC | TLC | Distance |
|---|---|---|---|
| Apperley Bridge | 8562 | APY | 0.74 KM |
| New Pudsey | 8506 | NPD | 4.46 KM |
| Guiseley | 8567 | GSY | 4.63 KM |
| Baildon | 8552 | BLD | 5.45 KM |
| Bradford Forster Square | 8346 | BDQ | 6.65 KM |
Nearby Listings
| Address | Price | Type | Score | Distance |
|---|---|---|---|---|
| Harrogate Road, Apperley Bridge, Bradford, West Yorkshire, BD10 | £ 170,000 | BUY | 7 / 10 | 0.00 KM |
| Waterside View, Harrogate Road, Bradford, West Yorkshire, BD10 | £ 180,000 | BUY | 7 / 10 | 0.00 KM |
| Waterside View, Apartment 306, Harrogate Road Bradford, BD10 0FR | £ 185,000 | BUY | 8 / 10 | 0.03 KM |
| Eleanor Close, Apperley Bridge, West Yorkshire | £ 425,000 | BUY | 6 / 10 | 0.05 KM |
| Dyehouse Court, Bradford, West Yorkshire | £ 300,000 | BUY | 7 / 10 | 0.08 KM |
Nearby Properties
| Address | Price | Distance |
|---|---|---|
| 1021d Harrogate Road | £ 110,000 | 0.12 KM |
| 1019d Harrogate Road | £ 190,000 | 0.12 KM |
| 1017c Harrogate Road | £ 136,000 | 0.12 KM |
| 1017f Harrogate Road | £ 172,500 | 0.12 KM |
| 1021f Harrogate Road | £ 180,000 | 0.12 KM |