Wrens Avenue, Ashford, TW15
By Henleys Estates Ltd
£ 589,950
Reviews
3 out of 5 stars
Henleys Estates Ltd says ..
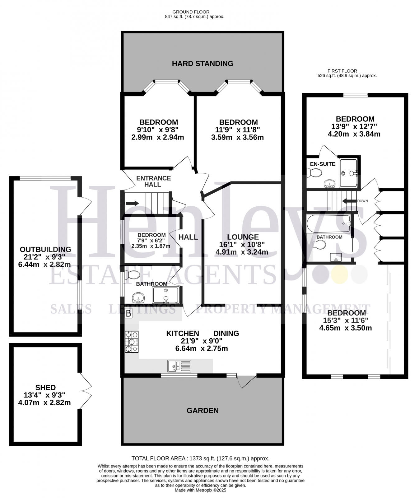
Cul-de-sac within walking distance of Ashford's top schools, Deceptively spacious, extended detached chalet bungalow, Five bedrooms, Three bathrooms, including a downstairs bathroom and an upstairs en-suite bathrooms, Own drive with ample off-road parking, Large rear garden
Property Oracle says ..
This property is a 5-bedroom, 3-bathroom detached bungalow located in Ashford, Surrey. The location benefits from being relatively close to several schools, including The Echelford Primary School (rated Good by Ofsted) and Fairholme Primary School (also rated Good), and several train stations providing links to London. The property itself appears to have undergone some modernisation, with a recently updated kitchen and bathrooms visible in the provided images. However, the exterior and some aspects of the interior suggest that some areas may require further attention or updating. The plot size is not specified, limiting the assessment of available land. Compared to the average price per square foot in the area (£439), the listed price of £589,950 for a 1,373.48 sqft property seems slightly above average, potentially reflecting the desirable location and the extent of the recent renovations. More information on the plot size would be beneficial to a more comprehensive evaluation.
Therefore, we give this property 6 / 10. *Disclaimer: This is our option and does constitute a recommendation or financial advice. Do your own research. *
- Price
- 6
- Condition
- 7
- Location
- 8
- Land
- 3
- Bedrooms
- 5
- Bathrooms
- 3
- Sqft (est)
- 1,373.48
The heatmap indicates the level of crime in the area. The color of the heatmap indicates the crime severity and recency.
Metrics Year-on-Year
- Average area value
- 462,850.00 £Decreased by 5.15 %
- Est sale value
- 762,281.40 £Decreased by 11.06 %
- Average area rental value
- 2,383.00 £/moIncreased by 36.48 %
- Est letting value
- 2,746.96 £/moUnchanged by 0.00 %
- Est rental Yield
- 6.18 %Increased by 44.06 %
- Crime Rate
- 6.00 %Unchanged by 0.00 %
Agent Activity
Henleys Estates Ltd created the listing.
Nearby Schools
| Name | Type | Ofsted | Distance |
|---|---|---|---|
| The Echelford Primary School | Academy Sponsor Led | Good | 0.74 KM |
| Meadhurst Primary School | Academy Sponsor Led | 0.98 KM | |
| Spelthorne School & Sure Start Children'S Centre | Children's Centre | 1.18 KM | |
| Ashford Cofe Primary School | Voluntary Aided School | Requires improvement | 1.20 KM |
| Fairholme Primary School | Community School | Good | 1.87 KM |
Images
Nearby Streets
| Name | Average Price | Average Sqft | Distance |
|---|---|---|---|
| Beaumont Drive | £ 0 | 0 | 0.00 KM |
| Saint Paul's Close | £ 695,000 | 0 | 0.00 KM |
| South Gate Avenue | £ 500,000 | 0 | 0.00 KM |
| Romney Close | £ 417,500 | 0 | 0.00 KM |
| Bridge Gardens | £ 0 | 0 | 0.00 KM |
Nearby Transport
| Name | NLC | TLC | Distance |
|---|---|---|---|
| Upper Halliford | 5613 | UPH | 2.48 KM |
| Heathrow Terminal 4 | 7091 | HAF | 2.90 KM |
| Ashford (Surrey) | 5667 | AFS | 2.94 KM |
| Sunbury | 5608 | SUU | 3.09 KM |
| Kempton Park Racecourse | 5678 | KMP | 3.77 KM |
Nearby Listings
| Address | Price | Type | Score | Distance |
|---|---|---|---|---|
| Wrens Avenue, Ashford, TW15 | £ 589,950 | BUY | 6 / 10 | 0.00 KM |
| Wrens Avenue, Ashford, Greater London, TW15 | £ 550,000 | BUY | 6 / 10 | 0.00 KM |
| Feltham Road, Ashford | £ 535,000 | BUY | 7 / 10 | 0.04 KM |
| Feltham Road, Ashford, Surrey, TW15 1BB | £ 525,000 | BUY | 5 / 10 | 0.06 KM |
| Feltham Road, Ashford | £ 295,000 | BUY | 7 / 10 | 0.09 KM |
Nearby Properties
| Address | Price | Distance |
|---|---|---|
| 9 Wrens Avenue | £ 513,000 | 0.08 KM |
| 6 Wrens Avenue | £ 340,000 | 0.08 KM |
| 18 Wrens Avenue | £ 365,000 | 0.08 KM |
| 27 Wrens Avenue | £ 599,995 | 0.08 KM |
| 12 Wrens Avenue | £ 360,000 | 0.08 KM |