Chancellors says ..
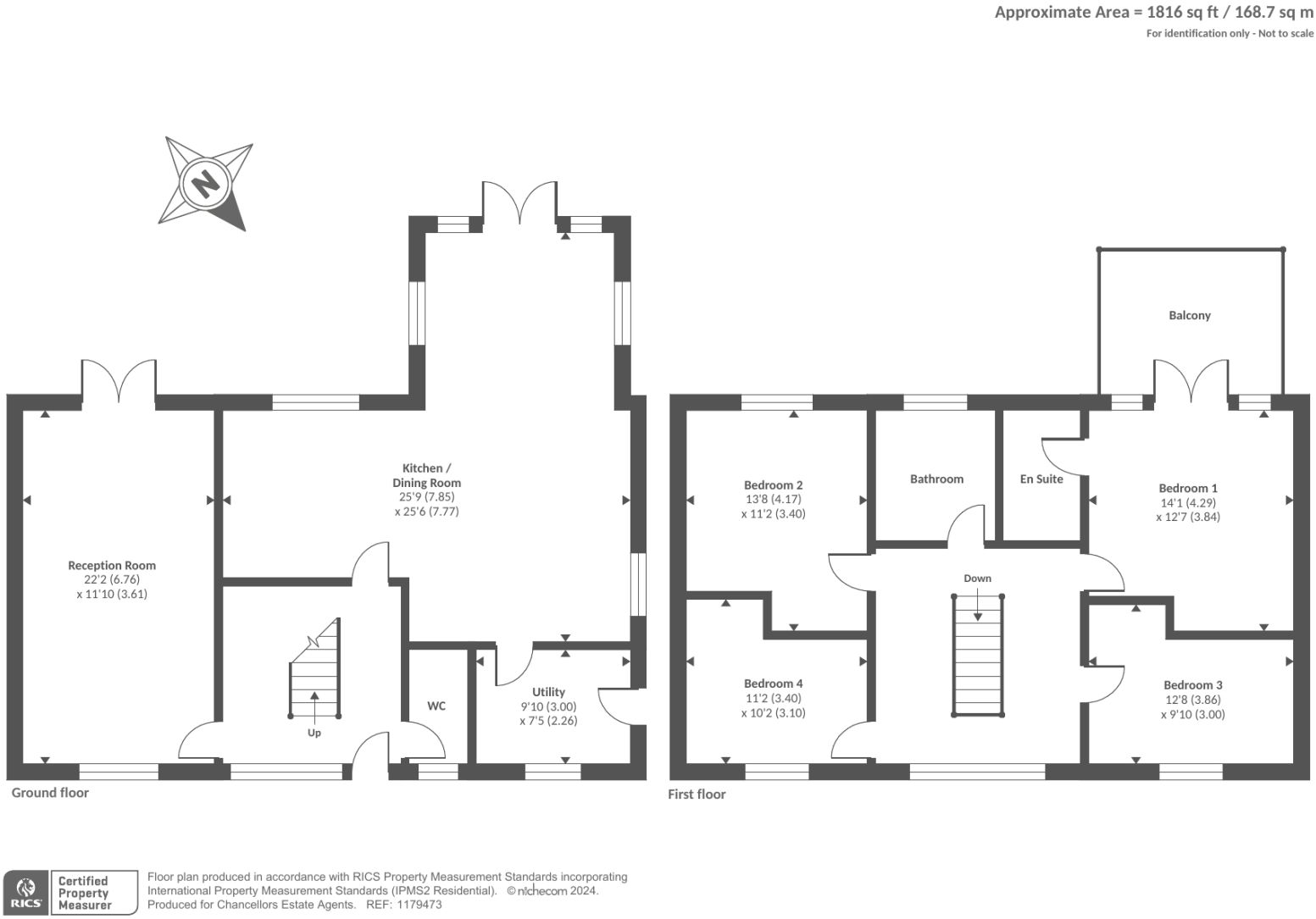
Located within the hamlet of Broome is this opportunity to purchase a high quality four double bedroom detached property offering a well-designed living space with private gardens, a garage, timber frame double carport and driveway parking
Property Oracle says ..
Therefore, we give this property 7 / 10. *Disclaimer: This is our option and does constitute a recommendation or financial advice. Do your own research. *
- Price
- 7
- Condition
- 9
- Location
- 7
- Land
- 8
- Bedrooms
- 4
- Bathrooms
- 2
- Sqft (est)
- 1,565.31
The heatmap indicates the level of crime in the area. The color of the heatmap indicates the crime severity and recency.
Metrics Year-on-Year
- Average area value
- 480,355.00 £Increased by 12.09 %
- Est sale value
- 84,526.74 £Decreased by 61.70 %
- Average area rental value
- 900.00 £/moIncreased by 15.98 %
- Est letting value
- 0.00 £/mo
- Est rental Yield
- 2.25 %Increased by 3.69 %
- Crime Rate
- 43.00 %Unchanged by 0.00 %
from 428,527.00 £
from 220,708.71 £
from 776.00 £/mo
from 0.00 £/mo
from 2.17 %
from 43.00 %
Agent Activity
Chancellors created the listing.
Nearby Schools
| Name | Type | Ofsted | Distance |
|---|---|---|---|
| Clunbury Cofe Primary School | Voluntary Aided School | Good | 4.60 KM |
| Craven Arms Children'S Centre Delivery Point | Children's Centre Linked Site | 5.81 KM | |
| Stokesay Primary School | Academy Sponsor Led | Requires improvement | 5.88 KM |
| Leintwardine Endowed Ce Primary School | Voluntary Aided School | Good | 6.70 KM |
| Wistanstow Cofe Primary School | Voluntary Controlled School | Good | 6.98 KM |
Images
Nearby Streets
| Name | Average Price | Average Sqft | Distance |
|---|---|---|---|
| Broome Farm Barns | £ 0 | 0 | 0.00 KM |
| B4367 | £ 0 | 0 | 0.00 KM |
| Redwood Drive | £ 0 | 0 | 0.00 KM |
Nearby Transport
| Name | NLC | TLC | Distance |
|---|---|---|---|
| Broome | 4175 | BME | 0.18 KM |
| Hopton Heath | 4189 | HPT | 4.73 KM |
| Craven Arms | 3634 | CRV | 5.54 KM |
Nearby Listings
| Address | Price | Type | Score | Distance |
|---|---|---|---|---|
| Broome, Shropshire, SY7 | £ 625,000 | BUY | 7 / 10 | 0.00 KM |
| Broome, Shropshire, SY7 | £ 625,000 | BUY | 8 / 10 | 0.01 KM |
| Broome, Shropshire, SY7 | £ 600,000 | BUY | 8 / 10 | 0.01 KM |
| Broome, Aston-on-Clun, Craven Arms, Shropshire | £ 600,000 | BUY | 6 / 10 | 0.04 KM |
| Broome, Aston-on-Clun, Craven Arms, Shropshire | £ 640,000 | BUY | 7 / 10 | 0.04 KM |
Nearby Properties
| Address | Price | Distance |
|---|---|---|
| 6 Broome | £ 390,000 | 0.14 KM |
| Arbour Tree Bungalow | £ 245,000 | 1.36 KM |
| Millfield Corner | £ 300,000 | 1.36 KM |
| Trenwyth | £ 100,000 | 1.36 KM |
| Turramurra | £ 270,000 | 1.36 KM |