Oxford Road, Enfield, EN3
By Filey Properties
£ 400,000
Reviews
3 out of 5 stars
Filey Properties says ..
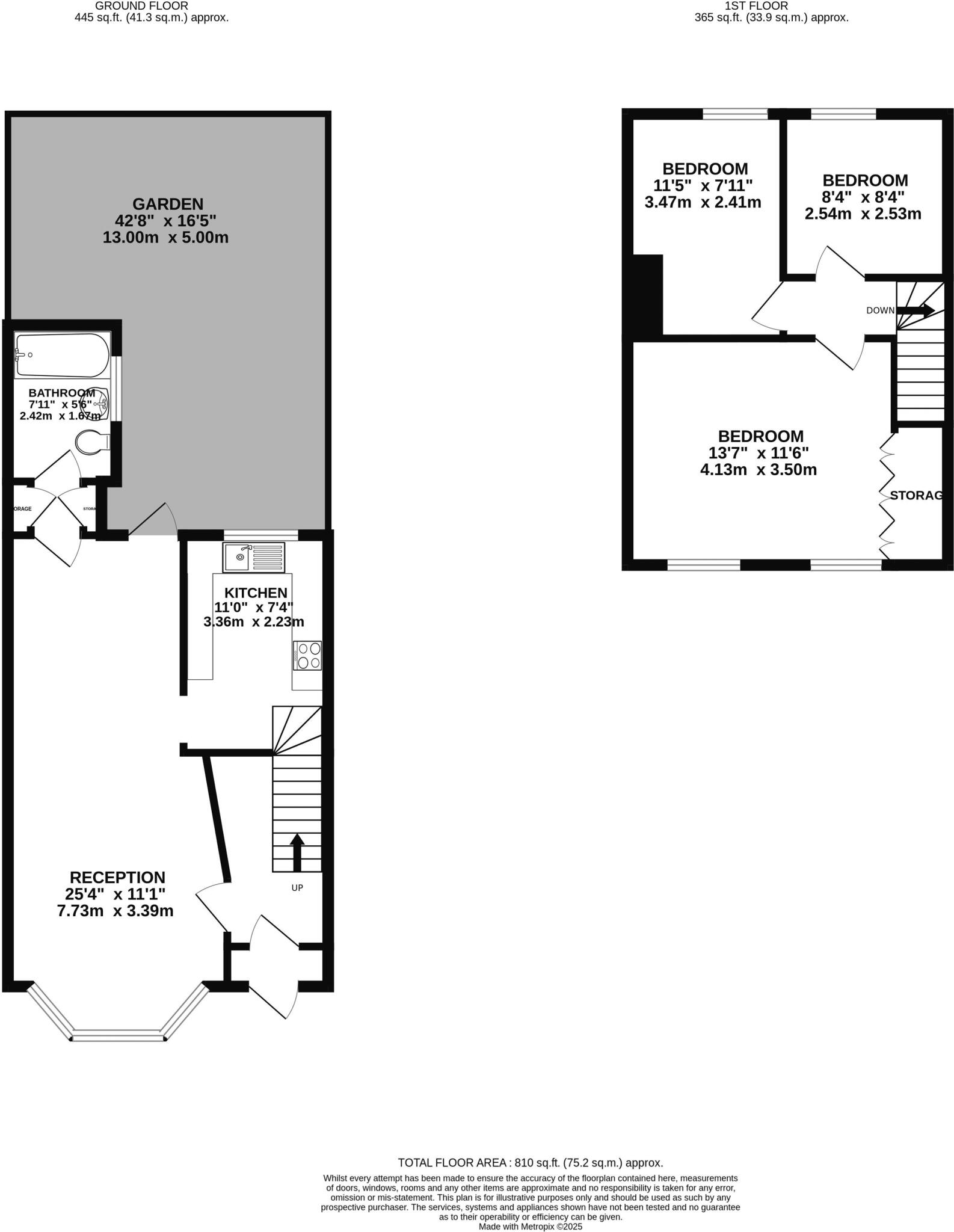
Filey Properties are delighted to offer this Three Bedroom Terraced House, situated on the ever-popular Oxford Road, Enfield, EN3.The property comprises a Spacious Reception/Through Lounge, providing an excellent open-plan living and dining area filled with natural light. A Fitted Kitchen, Three-...
Property Oracle says ..
This is a three-bedroom terraced house on Oxford Road, Enfield. The property is in a convenient location, close to schools and transportation links. The interior appears to be in good condition, with a modern kitchen and bathroom. The garden, however, requires some attention. The asking price of £400,000 seems reasonable for the area and the property’s features. It would be ideal for a small family or first-time buyers looking for a home in Enfield.
Therefore, we give this property 6 / 10. *Disclaimer: This is our option and does constitute a recommendation or financial advice. Do your own research. *
- Price
- 7
- Condition
- 7
- Location
- 7
- Land
- 6
- Bedrooms
- 3
- Bathrooms
- 1
- Sqft (est)
- 809.45
The heatmap indicates the level of crime in the area. The color of the heatmap indicates the crime severity and recency.
Metrics Year-on-Year
- Average area value
- 240,000.00 £Decreased by 38.64 %
- Est sale value
- 392,583.25 £Increased by 29.33 %
- Average area rental value
- 1,713.00 £/moDecreased by 9.46 %
- Est letting value
- 2,428.35 £/moIncreased by 200.00 %
- Est rental Yield
- 8.57 %Increased by 47.76 %
- Crime Rate
- 6.00 %Unchanged by 0.00 %
Agent Activity
Filey Properties created the listing.
Nearby Schools
| Name | Type | Ofsted | Distance |
|---|---|---|---|
| Heron Hall Academy | Free Schools | Good | 0.36 KM |
| One Degree Academy | Free Schools | Outstanding | 0.36 KM |
| St Alpheges Children'S Centre | Children's Centre Linked Site | 0.60 KM | |
| Southbury Primary School | Community School | Good | 0.86 KM |
| Galliard Children'S Centre | Children's Centre | 0.92 KM |
Images
Nearby Streets
| Name | Average Price | Average Sqft | Distance |
|---|---|---|---|
| Lincoln Road | £ 0 | 0 | 0.00 KM |
| Mansfield Close | £ 425,000 | 0 | 0.00 KM |
| Scarborough Road | £ 0 | 0 | 0.00 KM |
| Brecon Road | £ 450,000 | 0 | 0.00 KM |
| Clifford Road | £ 0 | 0 | 0.00 KM |
Nearby Transport
| Name | NLC | TLC | Distance |
|---|---|---|---|
| Southbury | 6947 | SBU | 0.62 KM |
| Bush Hill Park | 6913 | BHK | 1.84 KM |
| Ponders End | 6819 | PON | 1.95 KM |
| Edmonton Green | 6941 | EDR | 2.23 KM |
| Brimsdown | 6810 | BMD | 2.79 KM |
Nearby Listings
| Address | Price | Type | Score | Distance |
|---|---|---|---|---|
| Oxford Road, Enfield | £ 389,950 | BUY | Unknown | 0.00 KM |
| Oxford Road, Enfield, EN3 | £ 400,000 | BUY | 6 / 10 | 0.00 KM |
| Oxford Road, Enfield, EN3 | £ 450,000 | BUY | 5 / 10 | 0.04 KM |
| Norfolk Road, Enfield | £ 369,950 | BUY | 7 / 10 | 0.10 KM |
| Norfolk Road, Enfield, EN3 | £ 450,000 | BUY | 5 / 10 | 0.10 KM |
Nearby Properties
| Address | Price | Distance |
|---|---|---|
| 42 Oxford Road | £ 25,000 | 0.01 KM |
| 16 Oxford Road | £ 405,000 | 0.01 KM |
| 26 Oxford Road | £ 355,000 | 0.01 KM |
| 38 Oxford Road | £ 370,000 | 0.01 KM |
| 10 Oxford Road | £ 385,000 | 0.01 KM |