BR
Aldershot Road, Church Crookham, Fleet, Hampshire, GU52
By Bridges Estate Agents
£ 400,000
Reviews
3 out of 5 stars
Bridges Estate Agents says ..
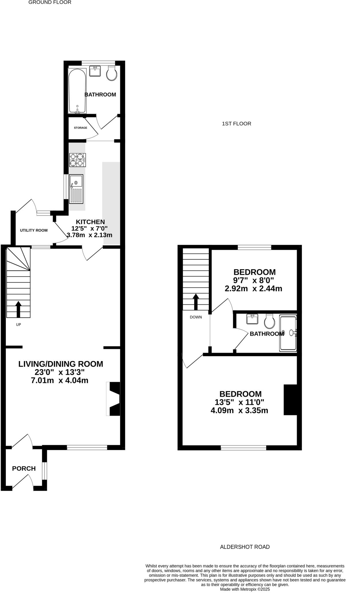
Offered to the market in immaculate condition, full of character and in a fantastic location, is this two-bedroom property in Aldershot Road. The living area is spacious, with room for corner sofa and dining table whilst boasting a feature brick fireplace, in keeping with the properties style. Th...
Property Oracle says ..
Therefore, we give this property 7 / 10. *Disclaimer: This is our option and does constitute a recommendation or financial advice. Do your own research. *
- Price
- 6
- Condition
- 8
- Location
- 8
- Land
- 8
- Bedrooms
- 2
- Bathrooms
- 2
The heatmap indicates the level of crime in the area. The color of the heatmap indicates the crime severity and recency.
Metrics Year-on-Year
- Average area value
- 239,000.00 £Increased by 24.44 %
- Average area rental value
- 850.00 £/moDecreased by 8.60 %
- Est rental Yield
- 4.27 %Decreased by 26.51 %
- Crime Rate
- 10.00 %Unchanged by 0.00 %
from 192,055.00 £
from 930.00 £/mo
from 5.81 %
from 10.00 %
Agent Activity
Bridges Estate Agents created the listing.
Nearby Schools
| Name | Type | Ofsted | Distance |
|---|---|---|---|
| Tweseldown Infant School | Community School | Outstanding | 0.41 KM |
| Wild Rose Children'S Centre | Children's Centre Linked Site | 0.41 KM | |
| Church Crookham Junior School | Community School | Outstanding | 0.51 KM |
| Velmead Junior School | Community School | Good | 1.31 KM |
| Fleet Infant School | Community School | Outstanding | 1.36 KM |
Images
Nearby Streets
| Name | Average Price | Average Sqft | Distance |
|---|---|---|---|
| Redwoods Lane | £ 0 | 0 | 0.00 KM |
| Kenmore Close | £ 925,000 | 0 | 0.00 KM |
| Foxcroft | £ 0 | 0 | 0.00 KM |
| Gordon Avenue | £ 550,000 | 0 | 0.00 KM |
| Hamilton Road | £ 0 | 0 | 0.00 KM |
Nearby Transport
| Name | NLC | TLC | Distance |
|---|---|---|---|
| Fleet | 5522 | FLE | 3.09 KM |
| Farnham | 5545 | FNH | 7.00 KM |
| Aldershot | 5623 | AHT | 7.92 KM |
| Winchfield | 5528 | WNF | 8.91 KM |
| Farnborough (Main) | 5521 | FNB | 8.98 KM |
Nearby Listings
| Address | Price | Type | Score | Distance |
|---|---|---|---|---|
| Aldershot Road, Church Crookham, Fleet, Hampshire, GU52 | £ 400,000 | BUY | 7 / 10 | 0.00 KM |
| Aldershot Road, Church Crookham, Fleet, Hampshire, GU52 | £ 400,000 | BUY | 8 / 10 | 0.02 KM |
| Aldershot Road, Church Crookham, Fleet | £ 425,000 | BUY | 7 / 10 | 0.04 KM |
| Aldershot Road, Church Crookham, GU52 | £ 425,000 | BUY | Unknown | 0.04 KM |
| Compton Road, Church Crookham, Fleet | £ 575,000 | BUY | 7 / 10 | 0.07 KM |
Nearby Properties
| Address | Price | Distance |
|---|---|---|
| 191 Aldershot Road | £ 588,888 | 0.01 KM |
| 183 Aldershot Road | £ 399,950 | 0.01 KM |
| 185 Aldershot Road | £ 385,000 | 0.01 KM |
| 175 Aldershot Road | £ 450,000 | 0.01 KM |
| 149a Aldershot Road | £ 316,000 | 0.01 KM |