Chancellors says ..
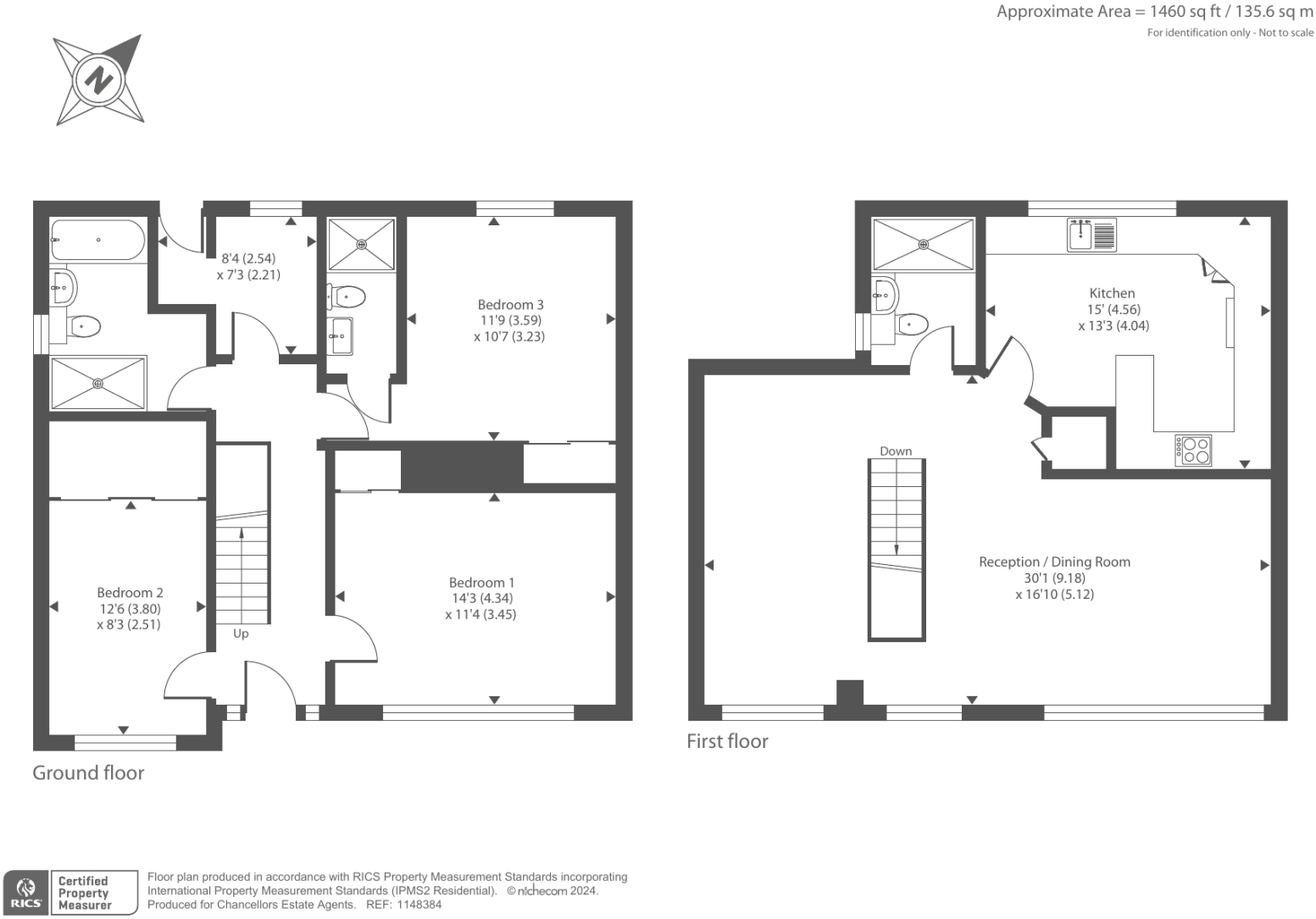
Detached three bedroom property for sale in a small cul-de-sac off Venns Lane, Hereford. Contact branch for further details.
Property Oracle says ..
This property is a 3 bedroom detached house located in Hereford. It is in excellent condition and has been recently renovated to a high standard. The property benefits from a modern kitchen and bathrooms, and a large garden. The location is excellent, with good schools and transport links nearby. The price is reasonable considering the condition, location and size of the property.
Therefore, we give this property 8 / 10. *Disclaimer: This is our option and does constitute a recommendation or financial advice. Do your own research. *
- Price
- 8
- Condition
- 10
- Location
- 9
- Land
- 8
- Bedrooms
- 3
- Bathrooms
- 0
- Sqft (est)
- 1,023.00
- Lot (est)
- 1,460.00
The heatmap indicates the level of crime in the area. The color of the heatmap indicates the crime severity and recency.
Metrics Year-on-Year
- Average area value
- 366,367.00 £Decreased by 13.34 %
- Est sale value
- 350,889.00 £Increased by 0.29 %
- Average area rental value
- 1,298.00 £/moIncreased by 6.13 %
- Est letting value
- 1,023.00 £/mo
- Est rental Yield
- 4.25 %Increased by 22.48 %
- Crime Rate
- 2.00 %Unchanged by 0.00 %
Agent Activity
Chancellors created the listing.
Nearby Schools
| Name | Type | Ofsted | Distance |
|---|---|---|---|
| Royal National College For The Blind | Special Post 16 Institution | Good | 0.55 KM |
| Hereford Sixth Form College | Academy 16-19 Converter | Outstanding | 0.57 KM |
| Barrs Court School | Academy Special Converter | Outstanding | 0.59 KM |
| Herefordshire, Ludlow And North Shropshire College | Further Education | 0.64 KM | |
| St Francis Xavier'S Primary School | Voluntary Aided School | Outstanding | 0.65 KM |
Images
Nearby Streets
| Name | Average Price | Average Sqft | Distance |
|---|---|---|---|
| Churchill Close | £ 0 | 0 | 0.00 KM |
| Venn's Lane | £ 199,950 | 0 | 0.00 KM |
| Cypress Gardens | £ 750,000 | 0 | 0.00 KM |
| Farm House Close | £ 0 | 0 | 0.00 KM |
| Rockfield Road | £ 547,250 | 0 | 0.00 KM |
Nearby Transport
| Name | NLC | TLC | Distance |
|---|---|---|---|
| Hereford | 3607 | HFD | 0.72 KM |
Nearby Listings
| Address | Price | Type | Score | Distance |
|---|---|---|---|---|
| Off Venns Lane, Hereford, HR1 | £ 450,000 | BUY | 8 / 10 | 0.00 KM |
| Venns Lane, Hereford, HR1 | £ 965,000 | BUY | 7 / 10 | 0.11 KM |
| Venns Lane, Hereford, HR1 | £ 365,000 | BUY | Unknown | 0.11 KM |
| Courtnay Rise, Aylestone Hill, Hereford | £ 350,000 | BUY | 7 / 10 | 0.12 KM |
| Venns Lane, Hereford, HR1 | £ 295,000 | BUY | Unknown | 0.13 KM |
Nearby Properties
| Address | Price | Distance |
|---|---|---|
| 4 Burwood Close | £ 205,000 | 0.03 KM |
| 19 Burwood Close | £ 480,000 | 0.03 KM |
| 17 Burwood Close | £ 233,500 | 0.03 KM |
| 7 Burwood Close | £ 211,000 | 0.03 KM |
| 13 Burwood Close | £ 226,500 | 0.03 KM |