Marsh & Parsons says ..
This beautifully renovated family home strikes the perfect harmony between stylish living and practical everyday functionality.
Property Oracle says ..
Therefore, we give this property 7 / 10. *Disclaimer: This is our option and does constitute a recommendation or financial advice. Do your own research. *
- Price
- 5
- Condition
- 9
- Location
- 9
- Land
- 7
- Bedrooms
- 5
- Bathrooms
- 3
- Sqft (est)
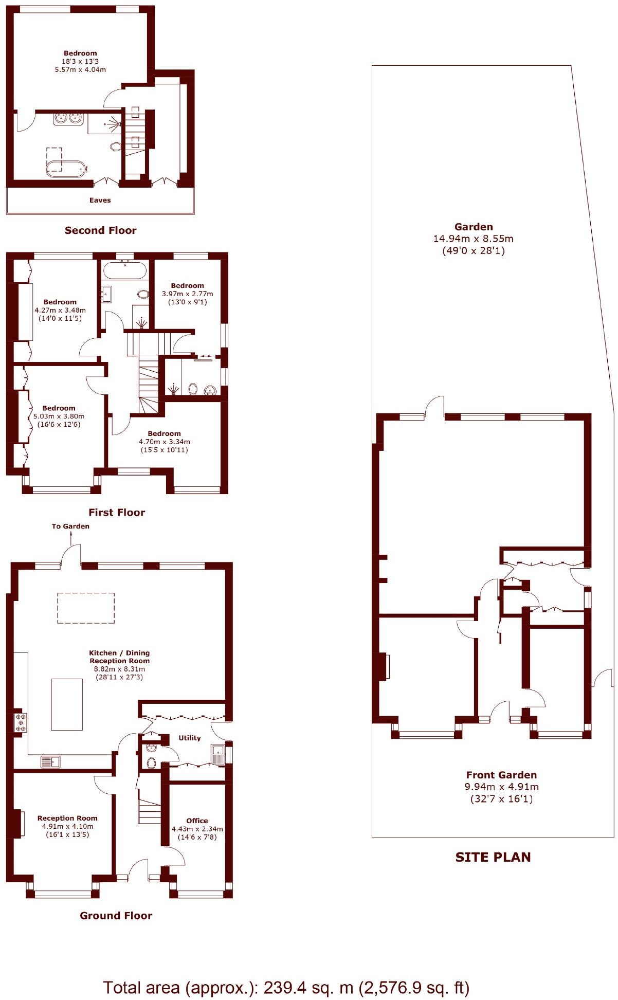
- 2,576.88
- Lot (est)
- 1,375.52
The heatmap indicates the level of crime in the area. The color of the heatmap indicates the crime severity and recency.
Metrics Year-on-Year
- Average area value
- 566,772.00 £Decreased by 52.41 %
- Est sale value
- 927,676.80 £Decreased by 49.72 %
- Average area rental value
- 3,583.00 £/moIncreased by 12.28 %
- Est letting value
- 5,153.76 £/moIncreased by 100.00 %
- Est rental Yield
- 7.59 %Increased by 135.71 %
- Crime Rate
- 0.00 %
from 1,190,957.00 £
from 1,845,046.08 £
from 3,191.00 £/mo
from 2,576.88 £/mo
from 3.22 %
from 0.00 %
Agent Activity
Marsh & Parsons created the listing.
Nearby Schools
| Name | Type | Ofsted | Distance |
|---|---|---|---|
| Barnes Children'S Centre | Children's Centre | 0.38 KM | |
| Lowther Primary School | Community School | Good | 0.45 KM |
| The Harrodian School | Other Independent School | Good | 0.64 KM |
| The Swedish School | Other Independent School | Outstanding | 0.77 KM |
| St Osmund'S Catholic Primary School | Voluntary Aided School | Good | 0.85 KM |
Images
Nearby Streets
| Name | Average Price | Average Sqft | Distance |
|---|---|---|---|
| Ironmongers Mews | £ 0 | 0 | 0.00 KM |
| Glebe Road | £ 2,175,000 | 0 | 0.00 KM |
| Small Profits Dock | £ 0 | 0 | 0.00 KM |
| Chiswick Lane South | £ 0 | 0 | 0.00 KM |
| Mawson Lane | £ 0 | 0 | 0.00 KM |
Nearby Transport
| Name | NLC | TLC | Distance |
|---|---|---|---|
| Barnes | 5551 | BNS | 1.46 KM |
| Barnes Bridge | 5580 | BNI | 1.61 KM |
| Chiswick | 5583 | CHK | 3.01 KM |
| Mortlake | 5600 | MTL | 3.22 KM |
| Putney | 5603 | PUT | 3.40 KM |
Nearby Listings
| Address | Price | Type | Score | Distance |
|---|---|---|---|---|
| Ullswater Road, Barnes | £ 3,299,000 | BUY | 7 / 10 | 0.00 KM |
| Ullswater Road, North Barnes, SW13 | £ 1,600,000 | BUY | Unknown | 0.07 KM |
| Suffolk Road, Barnes, SW13 | £ 2,100,000 | BUY | 7 / 10 | 0.12 KM |
| Washington Road, Barnes | £ 1,000,000 | BUY | 7 / 10 | 0.14 KM |
| Madrid Road | £ 2,350,000 | BUY | Unknown | 0.20 KM |
Nearby Properties
| Address | Price | Distance |
|---|---|---|
| 31 Ullswater Road | £ 782,500 | 0.01 KM |
| 9 Ullswater Road | £ 1,780,000 | 0.01 KM |
| 7 Ullswater Road | £ 1,750,000 | 0.01 KM |
| 54 Ferry Road | £ 123,000 | 0.10 KM |
| 56 Ferry Road | £ 2,250,000 | 0.10 KM |