Pickles Lane, Horton Bank Top, Bradford, BD7
By Robert Watts
£ 450,000
Reviews
3 out of 5 stars
Robert Watts says ..
** THIS LOT HAS IT ALL!** VERY RARLEY SEEN ON THE OPEN MARKET **** STRICTLY VIEWINGS ARE BY APPOINTMENT ** LARGE DETACHED DORMER BUNGALOW WITH ADDITIONAL PLANNING PERMISSION FOR A 4 BED PROPERTY ** SAT WITHIN ITS OWN GROUNDS WITH LARGE GROUNDS TO THE REAR ** AN EXTREMELY RARE OPPORTUNITY HAS ARIS...
Property Oracle says ..
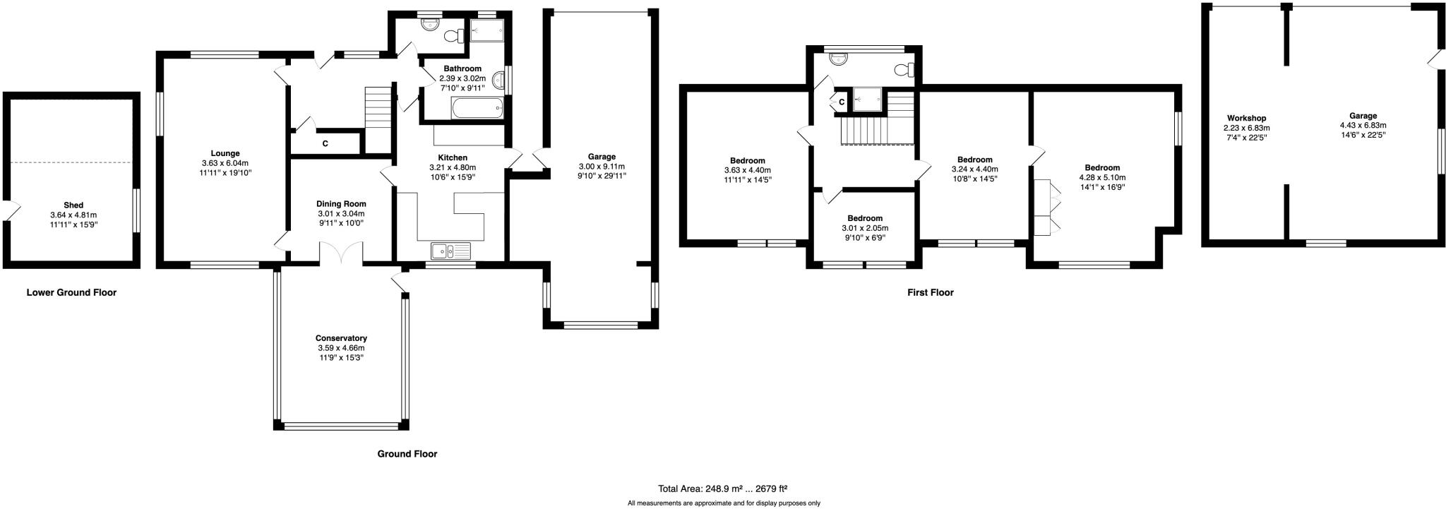
This property is a 4-bedroom, 2-bathroom bungalow located in Horton Bank Top, Bradford. The location offers proximity to several primary schools, with Brackenhill Primary School being the closest at 0.57km. Train stations such as Bradford Forster Square are within a reasonable distance (approximately 5km). The property itself boasts a significant plot size of 2,679 sqft, including a sizable garden and detached double garage. The bungalow appears to be in relatively good condition, although some aspects suggest it may benefit from some modernisation. The interior shows signs of age but is generally well-maintained. The kitchen and bathrooms are dated but functional. The list price of £450,000 is higher than the average price for the area (£617,618) but this is likely due to the larger plot size and the detached double garage. The average price per sqft in the area is £592, while this property is listed at a lower price per sqft. Considering the location, size, and condition, the property represents reasonable value for money, although potential buyers should factor in the cost of potential modernisation.
Therefore, we give this property 7 / 10. *Disclaimer: This is our option and does constitute a recommendation or financial advice. Do your own research. *
- Price
- 7
- Condition
- 7
- Location
- 7
- Land
- 8
- Bedrooms
- 4
- Bathrooms
- 2
- Sqft (est)
- 2,175.40
- Lot (est)
- 2,679.00
The heatmap indicates the level of crime in the area. The color of the heatmap indicates the crime severity and recency.
Metrics Year-on-Year
- Average area value
- 856,250.00 £Increased by 15.74 %
- Est sale value
- 1,544,534.00 £Increased by 21.37 %
- Average area rental value
- 2,000.00 £/moDecreased by 15.25 %
- Est letting value
- 2,175.40 £/moUnchanged by 0.00 %
- Est rental Yield
- 2.80 %Decreased by 26.89 %
- Crime Rate
- 4.00 %Unchanged by 0.00 %
Agent Activity
Robert Watts marked this listing as sold.
Robert Watts created the listing.
Nearby Schools
| Name | Type | Ofsted | Distance |
|---|---|---|---|
| Brackenhill Primary School | Community School | Good | 0.57 KM |
| Reevy Hill Children'S Centre | Children's Centre | 0.78 KM | |
| Reevy Hill Primary School | Academy Sponsor Led | Good | 0.91 KM |
| Buttershaw Business & Enterprise College Academy | Academy Sponsor Led | Requires improvement | 1.01 KM |
| Hollingwood Primary School | Academy Converter | 1.13 KM |
Images
Nearby Streets
| Name | Average Price | Average Sqft | Distance |
|---|---|---|---|
| Beacon Grove | £ 0 | 0 | 0.00 KM |
| Kenley Avenue | £ 0 | 0 | 0.00 KM |
| Farhills | £ 145,000 | 0 | 0.00 KM |
| Highlands Close | £ 0 | 0 | 0.00 KM |
| Blacksmith Fold | £ 400,000 | 0 | 0.00 KM |
Nearby Transport
| Name | NLC | TLC | Distance |
|---|---|---|---|
| Bradford Forster Square | 8346 | BDQ | 5.09 KM |
| Bradford Interchange | 8345 | BDI | 5.15 KM |
| Low Moor | 8416 | LMR | 5.16 KM |
| Frizinghall | 8556 | FZH | 5.77 KM |
| Shipley (Yorks) | 8347 | SHY | 6.88 KM |
Nearby Listings
| Address | Price | Type | Score | Distance |
|---|---|---|---|---|
| Pickles Lane, Horton Bank Top, Bradford, BD7 | £ 450,000 | BUY | 7 / 10 | 0.00 KM |
| Pickles Lane, Horton Bank Top, Bradford, BD7 | £ 165,000 | BUY | 6 / 10 | 0.05 KM |
| Pickles Lane, Bradford, BD7 | £ 185,000 | BUY | 6 / 10 | 0.06 KM |
| Lesmere Grove, Bradford, BD7 4JY | £ 180,000 | BUY | 7 / 10 | 0.07 KM |
| Ashtree Grove, Bradford, BD7 | £ 260,000 | BUY | Unknown | 0.07 KM |
Nearby Properties
| Address | Price | Distance |
|---|---|---|
| 52 Pickles Lane | £ 120,000 | 0.06 KM |
| 25 Pickles Lane | £ 132,000 | 0.06 KM |
| 59 Pickles Lane | £ 59,000 | 0.06 KM |
| 36 Pickles Lane | £ 39,950 | 0.06 KM |
| 47 Pickles Lane | £ 104,950 | 0.06 KM |