Crandon Drive, East Didsbury
By Gascoigne Halman
£ 425,000
Reviews
3 out of 5 stars
Gascoigne Halman says ..
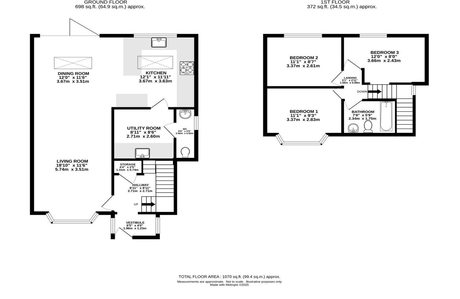
A well appointed, spacious and tastefully extended bay fronted three double bedroom semi detached property located on a quiet cul-de-sac but in close proximity to excellent transport links and local amenities. Having been extended and refurbished by the current owners throughout, this property bo...
Property Oracle says ..
This property is a 3-bedroom semi-detached house located in East Didsbury, Manchester. The property has undergone a significant extension and renovation, resulting in a modern, open-plan kitchen and living area with bi-fold doors leading to a garden. The kitchen features contemporary units and integrated appliances. The property also benefits from a newly fitted bathroom and what appears to be a recently added utility room. The location is desirable, being close to excellent schools and transport links. However, the plot size is relatively small compared to other properties in the area. The list price is slightly below the average price for the area, but this may be due to the smaller plot size. Overall, the property presents well and is likely to appeal to families seeking a modern home in a convenient location.
Therefore, we give this property 7 / 10. *Disclaimer: This is our option and does constitute a recommendation or financial advice. Do your own research. *
- Price
- 7
- Condition
- 9
- Location
- 9
- Land
- 4
- Bedrooms
- 3
- Bathrooms
- 1
- Sqft (est)
- 1,026.00
- Lot (est)
- 1,070.00
The heatmap indicates the level of crime in the area. The color of the heatmap indicates the crime severity and recency.
Metrics Year-on-Year
- Average area value
- 533,583.00 £Increased by 11.40 %
- Est sale value
- 562,248.00 £Increased by 25.98 %
- Average area rental value
- 1,591.00 £/moIncreased by 15.54 %
- Est letting value
- 1,026.00 £/moUnchanged by 0.00 %
- Est rental Yield
- 3.58 %Increased by 3.77 %
- Crime Rate
- 0.00 %
Agent Activity
Gascoigne Halman created the listing.
Nearby Schools
| Name | Type | Ofsted | Distance |
|---|---|---|---|
| Parrs Wood High School | Academy Converter | Good | 0.34 KM |
| Broad Oak Primary School | Community School | Good | 0.54 KM |
| The Barlow Rc High School And Specialist Science College | Voluntary Aided School | Good | 1.12 KM |
| Didsbury Park | Children's Centre | 1.17 KM | |
| St Catherine'S Rc Primary School | Voluntary Aided School | Outstanding | 1.19 KM |
Images
Nearby Streets
| Name | Average Price | Average Sqft | Distance |
|---|---|---|---|
| Drayton Manor | £ 330,000 | 0 | 0.00 KM |
| Parrs Wood View | £ 0 | 0 | 0.00 KM |
| Kingston Avenue | £ 0 | 0 | 0.00 KM |
| M60 | £ 0 | 0 | 0.00 KM |
| Sandhurst Road | £ 550,000 | 0 | 0.00 KM |
Nearby Transport
| Name | NLC | TLC | Distance |
|---|---|---|---|
| East Didsbury | 2949 | EDY | 0.41 KM |
| Gatley | 2953 | GTY | 1.71 KM |
| Burnage | 2945 | BNA | 1.89 KM |
| Mauldeth Road | 2867 | MAU | 3.38 KM |
| Heald Green | 2860 | HDG | 4.33 KM |
Nearby Listings
| Address | Price | Type | Score | Distance |
|---|---|---|---|---|
| Crandon Drive, East Didsbury | £ 425,000 | BUY | 7 / 10 | 0.00 KM |
| Avalon Drive, East Didsbury | £ 300,000 | BUY | 6 / 10 | 0.04 KM |
| Kingsway, Manchester, Greater Manchester, M20 | £ 425,000 | BUY | 7 / 10 | 0.04 KM |
| Avalon Drive, Didsbury, Manchester, Greater Manchester, M20 | £ 300,000 | BUY | 6 / 10 | 0.05 KM |
| Kingsway, East Didsbury, Manchester, M20 | £ 450,000 | BUY | 6 / 10 | 0.07 KM |
Nearby Properties
| Address | Price | Distance |
|---|---|---|
| 882 Kingsway | £ 136,000 | 0.07 KM |
| 878 Kingsway | £ 145,000 | 0.07 KM |
| 2 Crandon Drive | £ 81,618 | 0.07 KM |
| 6 Crandon Drive | £ 185,000 | 0.07 KM |
| 866 Kingsway | £ 167,000 | 0.07 KM |