Building Plot - Jubilee Road, Street
HO

Building Plot - Jubilee Road, Street

By holland & odam

£ 185,000

Reviews

3 out of 5 stars

holland & odam says ..

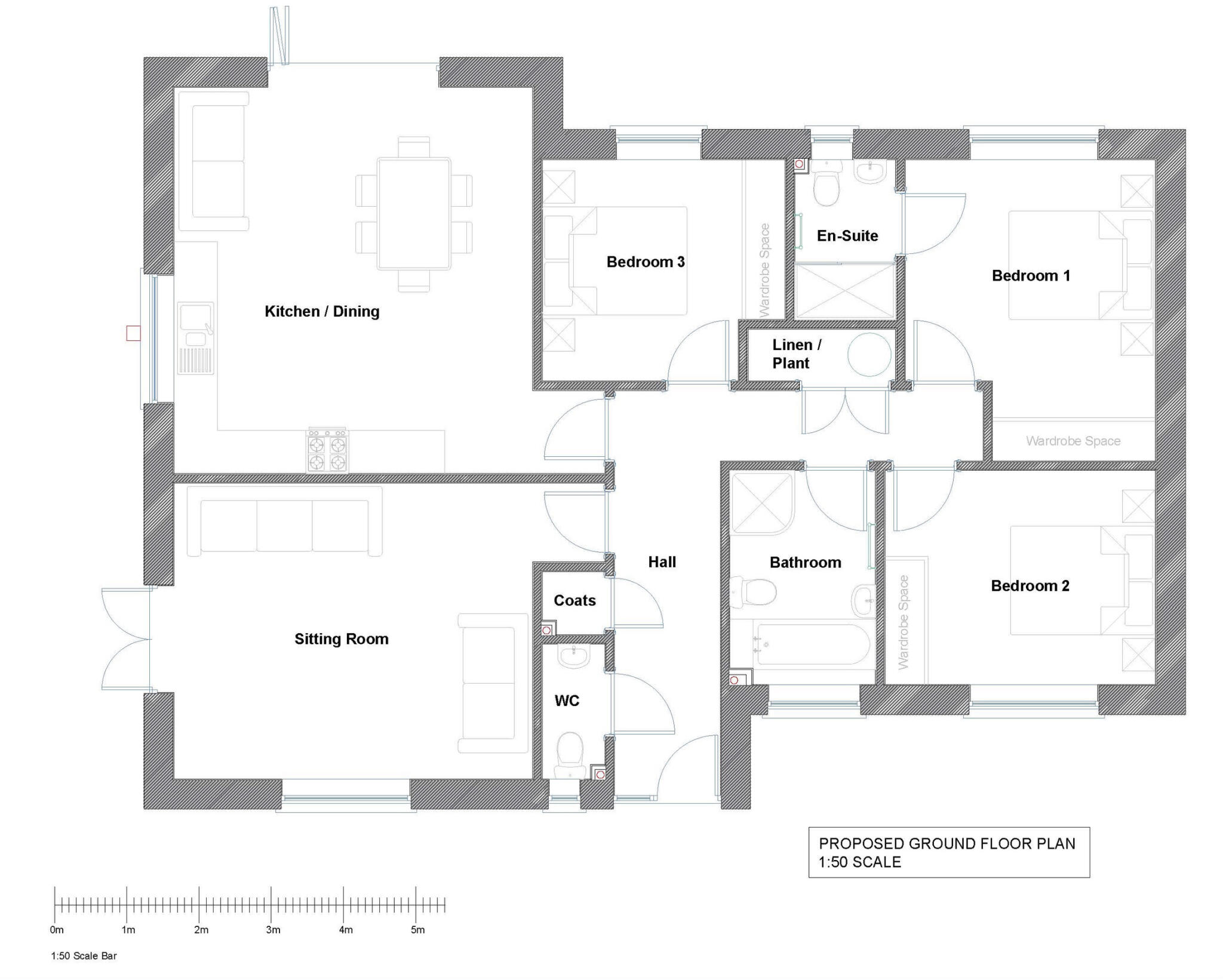
An increasingly rare to find opportunity to construct a generously proportioned detached bungalow to your specification and free of all usual significant preliminary costs of Community Infrastructure Levy and Phosphate Mitigation requirements. This is an 'oven ready' consented site (one of two si...

Property Oracle says ..

This is a building plot located in Street South, Mendip, Somerset. The plot size is 1,044.10 sqft. The property is located close to Brookside Community Primary School and Avalon School, both of which are rated ‘Good’. The list price is £185,000, which seems reasonable given that this is a building plot.

Therefore, we give this property 6 / 10. *Disclaimer: This is our option and does constitute a recommendation or financial advice. Do your own research. *

Price
8
Condition
1
Location
7
Land
9
Bedrooms
0
Bathrooms
0
Sqft (est)
1,044.10

The heatmap indicates the level of crime in the area. The color of the heatmap indicates the crime severity and recency.

Metrics Year-on-Year

Average area value
211,990.00 £
Decreased by 57.21 %
from 495,407.00 £
Est sale value
306,965.40 £
Decreased by 9.82 %
from 340,376.60 £
Average area rental value
1,750.00 £/mo
Increased by 95.75 %
from 894.00 £/mo
Est letting value
2,088.20 £/mo
from 0.00 £/mo
Est rental Yield
9.91 %
Increased by 356.68 %
from 2.17 %
Crime Rate
6.00 %
Unchanged by 0.00 %
from 6.00 %

Agent Activity

  • holland & odam created the listing.

Nearby Schools

NameTypeOfstedDistance
Street BuildingChildren's Centre Linked Site0.66 KM
Brookside Community Primary SchoolAcademy ConverterGood0.75 KM
Avalon SchoolCommunity Special SchoolGood0.78 KM
Hindhayes Infant SchoolCommunity SchoolGood0.85 KM
Elmhurst Junior SchoolCommunity SchoolRequires improvement1.39 KM

Images

TEK HiRes 250918 048 PROPOSED_SITE_PLAN-1411581 2 PROPOSED_PLANNING_PLOT_2-1411583 2 TEK HiRes 250918 008 TEK HiRes 250918 010 TEK HiRes 250918 003 TEK HiRes 250918 011 TEK HiRes 250918 014 TEK HiRes 250918 015 TEK HiRes 250918 016 TEK HiRes 250918 017 TEK HiRes 250918 019 TEK HiRes 250918 021 TEK HiRes 250918 025

Nearby Streets

NameAverage PriceAverage SqftDistance
Park Road £ 000.00 KM
Oriel Road £ 000.00 KM
Springfield £ 000.00 KM
Beech Road £ 000.00 KM
Elgin Close £ 000.00 KM

Nearby Listings

AddressPriceTypeScoreDistance
Building Plot - Jubilee Road, Street £ 185,000BUY6 / 100.00 KM
Building Plot - Jubilee Road, Street £ 185,000BUY5 / 100.10 KM
Jubilee Road, Street £ 409,950BUY6 / 100.10 KM
Leigh Furlong Road, Street, Somerset, BA16 £ 275,000BUY7 / 100.14 KM
Jubilee Road, Street £ 269,950BUY7 / 100.15 KM

Nearby Properties

AddressPriceDistance
37 Green Lane £ 412,5000.09 KM
34 Green Lane £ 277,5000.09 KM
33 Green Lane £ 346,0000.09 KM
38 Green Lane £ 370,0000.09 KM
Tarakhai £ 340,0000.09 KM